Nel 2025, la casa è stata una questione di significato: non possiamo dire che quest’anno abbia portato grandi cambi di rotta nel modo di concepire la casa, ma di sicuro lungo i mesi abbiamo visto molte case acquisire un nuovo significato, che si trattasse di quella degli Eames riaperta dopo gli incendi a Los Angeles, di quelle firmate Wright e restaurate da Diane Keaton, o di quella piccola, rosa e carichissima di messaggio calata da Bad Bunny in mezzo ai suoi live.
Il mercato continua a essere l’arena più calda su cui si gioca la partita dell’abitare: “possiamo davvero comprare case su Amazon?”, ci si chiede, mentre città come Milano continuano a far salire i valori, e mentre fasce di popolazione sempre più ampie sono escluse dall’accesso alla casa. Nel frattempo, sul mercato si sono presentate – alcune per la prima volta – moltissime icone moderne, aprendo nuovi capitoli per architetture Bauhaus, per ville di Wright, appartamenti di Le Corbusier, senza dimenticare la Bubble House a New York o un manifesto losangeleno come la Stahl House.
Nel frattempo, anche il cinema ha spinto in avanti gli immaginari, con interni “parlanti” come quelli di Guadagnino per Queer e After the Hunt, e gli appuntamenti internazionali di una comunità sempre più trasversale riunita attorno al design ci hanno portat ad esplorare case che stavano a metà tra il sorprenderci e l’interrogarci, a Venezia in Biennale come a Lisbona in Triennale, in Design Week a Milano con l’apertura della Villa Borsani – diventata a pagamento – o quella della Villa Pestarini di Albini, annunciata per il 2026. Ma soprattutto resta il significato che i nuovi progetti selezionati e pubblicati da Domus quest’anno hanno voluto dare alla casa contemporanea: sensibile, sostenibile, interspecie, sempre più spesso nata dal dialogo con la città, col paesaggio, con architetture esistenti che vengono ascoltate e riattivate.
Per questo nella nostra selezione per il 2025 troverete case che hanno avuto un nuovo significato per tutt noi quest’anno, e case che sono nate per continuare un lavoro costante dove il significato si costruisce, prima ancora dei muri e delle porte.
La Eames House riaperta dopo gli incendi di Los Angeles
Domus ha incontrato Eames Demetrios e Adrienne Luce della Eames Foundation per riscoprire come questa “icona anti-iconica” del California Modern stia ispirando anche il futuro per una città in ripresa, in un modo diverso da quello che vi aspettereste. Continua a leggere
La casa veneziana trasformata da Tolia Astakhishvili durante Biennale
View gallery
Tolia Astakhishvili, each year, the same season, 2025
Tolia Astakhishvili,“to love and devour”, 7 maggio - 23 novembre 2025, Nicoletta Fiorucci Foundation, Venezia, Italia.
Nicoletta Fiorucci Foundation, Venezia, Italia
Tolia Astakhishvili,“to love and devour”, 7 maggio - 23 novembre 2025, Nicoletta Fiorucci Foundation, Venezia, Italia.
Foto Marco Cappelletti
Dettaglio: I love seeing myself through the eyes of others, 2025
Tolia Astakhishvili,“to love and devour”, 7 maggio - 23 novembre 2025, Nicoletta Fiorucci Foundation, Venezia, Italia.
Tolia Astakhishvili, a timeline of physical attributes, 2025
Tolia Astakhishvili,“to love and devour”, 7 maggio - 23 novembre 2025, Nicoletta Fiorucci Foundation, Venezia, Italia.
Tolia Astakhishvili, to love and devour, 2025
Tolia Astakhishvili,“to love and devour”, 7 maggio - 23 novembre 2025, Nicoletta Fiorucci Foundation, Venezia, Italia.
Tolia Astakhishvili, to love and devour, 2025
Tolia Astakhishvili,“to love and devour”, 7 maggio - 23 novembre 2025, Nicoletta Fiorucci Foundation, Venezia, Italia.
Tolia Astakhishvili, forbidden place, 2025
Tolia Astakhishvili,“to love and devour”, 7 maggio - 23 novembre 2025, Nicoletta Fiorucci Foundation, Venezia, Italia.
Tolia Astakhishvili, my emptiness, 2025
Tolia Astakhishvili,“to love and devour”, 7 maggio - 23 novembre 2025, Nicoletta Fiorucci Foundation, Venezia, Italia.
Tolia Astakhishvili, to love and devour, 2025
Tolia Astakhishvili,“to love and devour”, 7 maggio - 23 novembre 2025, Nicoletta Fiorucci Foundation, Venezia, Italia.
Tolia Astakishvili, universe, 2025
Tolia Astakhishvili,“to love and devour”, 7 maggio - 23 novembre 2025, Nicoletta Fiorucci Foundation, Venezia, Italia.
Tolia Astakhishvili, each year, the same season, 2025
Tolia Astakhishvili,“to love and devour”, 7 maggio - 23 novembre 2025, Nicoletta Fiorucci Foundation, Venezia, Italia.
Nicoletta Fiorucci Foundation, Venezia, Italia
Tolia Astakhishvili,“to love and devour”, 7 maggio - 23 novembre 2025, Nicoletta Fiorucci Foundation, Venezia, Italia.
Foto Marco Cappelletti
Dettaglio: I love seeing myself through the eyes of others, 2025
Tolia Astakhishvili,“to love and devour”, 7 maggio - 23 novembre 2025, Nicoletta Fiorucci Foundation, Venezia, Italia.
Tolia Astakhishvili, a timeline of physical attributes, 2025
Tolia Astakhishvili,“to love and devour”, 7 maggio - 23 novembre 2025, Nicoletta Fiorucci Foundation, Venezia, Italia.
Tolia Astakhishvili, to love and devour, 2025
Tolia Astakhishvili,“to love and devour”, 7 maggio - 23 novembre 2025, Nicoletta Fiorucci Foundation, Venezia, Italia.
Tolia Astakhishvili, to love and devour, 2025
Tolia Astakhishvili,“to love and devour”, 7 maggio - 23 novembre 2025, Nicoletta Fiorucci Foundation, Venezia, Italia.
Tolia Astakhishvili, forbidden place, 2025
Tolia Astakhishvili,“to love and devour”, 7 maggio - 23 novembre 2025, Nicoletta Fiorucci Foundation, Venezia, Italia.
Tolia Astakhishvili, my emptiness, 2025
Tolia Astakhishvili,“to love and devour”, 7 maggio - 23 novembre 2025, Nicoletta Fiorucci Foundation, Venezia, Italia.
Tolia Astakhishvili, to love and devour, 2025
Tolia Astakhishvili,“to love and devour”, 7 maggio - 23 novembre 2025, Nicoletta Fiorucci Foundation, Venezia, Italia.
Tolia Astakishvili, universe, 2025
Tolia Astakhishvili,“to love and devour”, 7 maggio - 23 novembre 2025, Nicoletta Fiorucci Foundation, Venezia, Italia.
L’artista georgiana Tolia Astakhishvili ha trasformato nel corso di quattro mesi una casa veneziana che risale al ’400, ora sede veneziana della Nicoletta Fiorucci Foundation, rendendola un’opera d’arte totale. Il risultato è da brividi. Continua a leggere
La Casita Rosa di Bad Bunny
Costruita per la residenza di Bad Bunny a Porto Rico, la Casita si è trasformata in simbolo della diaspora latina con riproduzioni a Miami e New York. Continua a leggere
Le case firmate Lloyd Wright restaurate da Diane Keaton
Artista a tutto tondo, la grande attrice e regista recentemente scomparsa ha ricostruito gli interni perduti di una casa anni ’20 a Los Feliz, e poi ha abitato quelli di una residenza anni ’50 alle Pacific Palisades. Continua a leggere
Erwan Bouroullec e la sua casa nella campagna francese
View gallery
LVA Architects, Erwan Bouroullec, La Grange, Borgogna, Francia
Foto Philippe Thibault e Charles Petillon
LVA Architects, Erwan Bouroullec, La Grange, Borgogna, Francia
Foto Philippe Thibault e Charles Petillon
LVA Architects, Erwan Bouroullec, La Grange, Borgogna, Francia
Foto Philippe Thibault e Charles Petillon
LVA Architects, Erwan Bouroullec, La Grange, Borgogna, Francia
Foto Philippe Thibault e Charles Petillon
LVA Architects, Erwan Bouroullec, La Grange, Borgogna, Francia
Foto Philippe Thibault e Charles Petillon
LVA Architects, Erwan Bouroullec, La Grange, Borgogna, Francia
Foto Philippe Thibault e Charles Petillon
LVA Architects, Erwan Bouroullec, La Grange, Borgogna, Francia
Foto Philippe Thibault e Charles Petillon
LVA Architects, Erwan Bouroullec, La Grange, Borgogna, Francia, ante operam
Foto Charlotte Vuarnesson
LVA Architects, Erwan Bouroullec, La Grange, Borgogna, Francia
Foto Philippe Thibault e Charles Petillon
LVA Architects, Erwan Bouroullec, La Grange, Borgogna, Francia
Foto Philippe Thibault e Charles Petillon
LVA Architects, Erwan Bouroullec, La Grange, Borgogna, Francia
Foto Philippe Thibault e Charles Petillon
LVA Architects, Erwan Bouroullec, La Grange, Borgogna, Francia
Foto Philippe Thibault e Charles Petillon
LVA Architects, Erwan Bouroullec, La Grange, Borgogna, Francia
Foto Philippe Thibault e Charles Petillon
LVA Architects, Erwan Bouroullec, La Grange, Borgogna, Francia
Foto Philippe Thibault e Charles Petillon
LVA Architects, Erwan Bouroullec, La Grange, Borgogna, Francia
Foto Philippe Thibault e Charles Petillon
LVA Architects, Erwan Bouroullec, La Grange, Borgogna, Francia, ante operam
Foto Charlotte Vuarnesson
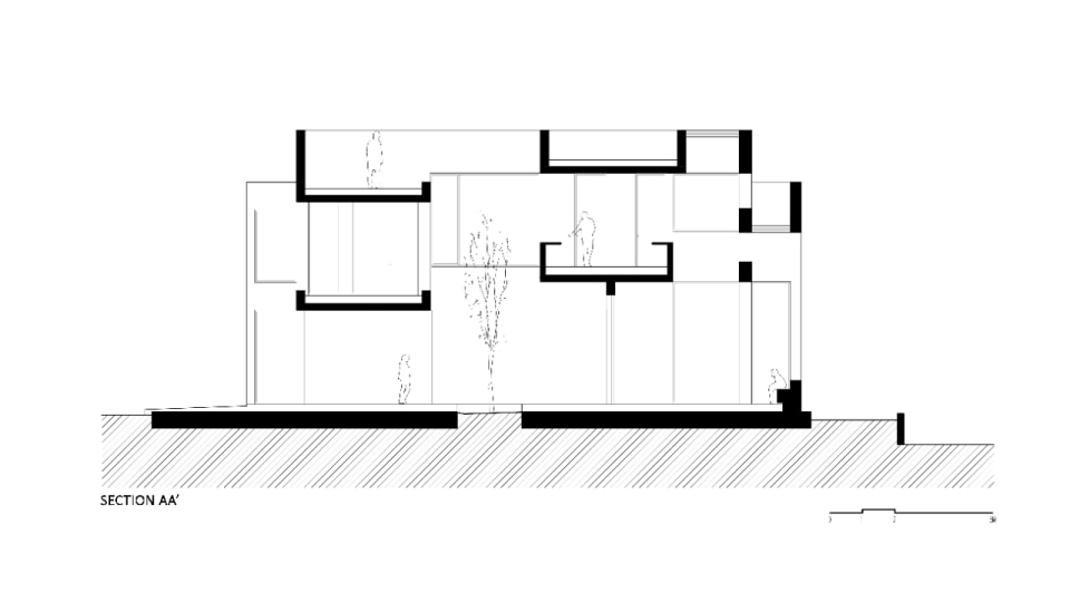
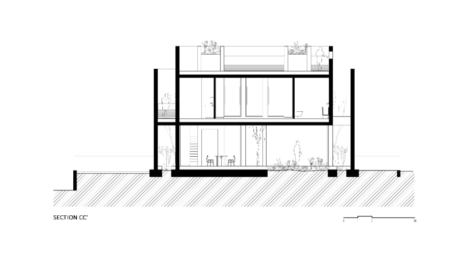
Il designer francese racconta una ristrutturazione che ha il valore di un manifesto per il design: la ricerca di un “grado zero”, di una nuova semplicità, dopo i primi 25 anni della sua carriera. Continua a leggere
L’Esagono e il Dinosauro di Vittorio Giorgini, visti da Domus
View gallery
Con i due progetti nel Golfo di Baratti in Toscana, tra i pochi realizzati della sua carriera, l’architetto fiorentino metteva a punto la costruzione della sua idea di architettura, in una originale sintesi fra natura e tecnica. Continua a leggere
La casa post-brutalista di Mario Galvagni nelle colline liguri, vista da Domus
View gallery
Domus ritorna a Carbuta, entroterra della riviera di Ponente, dove a fine ’60 l’architetto-pittore aveva creato la sua casa studio. Un dialogo che supera il brutalismo, tra forme organiche di cemento grezzo, forma del paesaggio e l’architettura di un vecchio frantoio. Continua a leggere
Una scultura razionale di cemento a Cipro
View gallery
Studio Kyriakos Miltiadou, Domus Aer, Nicosia, Cipro 2025
Photo Maria Efthymiou (Creative Photo Room)
Studio Kyriakos Miltiadou, Domus Aer, Nicosia, Cipro 2025
Photo Maria Efthymiou (Creative Photo Room)
Studio Kyriakos Miltiadou, Domus Aer, Nicosia, Cipro 2025
Photo Maria Efthymiou (Creative Photo Room)
Studio Kyriakos Miltiadou, Domus Aer, Nicosia, Cipro 2025
Photo Maria Efthymiou (Creative Photo Room)
Studio Kyriakos Miltiadou, Domus Aer, Nicosia, Cipro 2025
Photo Maria Efthymiou (Creative Photo Room)
Studio Kyriakos Miltiadou, Domus Aer, Nicosia, Cipro 2025
Photo Maria Efthymiou (Creative Photo Room)
Studio Kyriakos Miltiadou, Domus Aer, Nicosia, Cipro 2025
Photo Maria Efthymiou (Creative Photo Room)
Studio Kyriakos Miltiadou, Domus Aer, Nicosia, Cipro 2025
Photo Maria Efthymiou (Creative Photo Room)
Studio Kyriakos Miltiadou, Domus Aer, Nicosia, Cipro 2025
Photo Maria Efthymiou (Creative Photo Room)
Studio Kyriakos Miltiadou, Domus Aer, Nicosia, Cipro 2025
Photo Maria Efthymiou (Creative Photo Room)
Studio Kyriakos Miltiadou, Domus Aer, Nicosia, Cipro 2025
Photo Maria Efthymiou (Creative Photo Room)
Studio Kyriakos Miltiadou, Domus Aer, Nicosia, Cipro 2025
Photo Maria Efthymiou (Creative Photo Room)
Studio Kyriakos Miltiadou, Domus Aer, Nicosia, Cipro 2025
Photo Maria Efthymiou (Creative Photo Room)
Studio Kyriakos Miltiadou, Domus Aer, Nicosia, Cipro 2025
Photo Maria Efthymiou (Creative Photo Room)
Studio Kyriakos Miltiadou, Domus Aer, Nicosia, Cipro 2025
Photo Maria Efthymiou (Creative Photo Room)
Studio Kyriakos Miltiadou, Domus Aer, Nicosia, Cipro 2025
Photo Maria Efthymiou (Creative Photo Room)
Studio Kyriakos Miltiadou, Domus Aer, Nicosia, Cipro 2025
Photo Maria Efthymiou (Creative Photo Room)
Studio Kyriakos Miltiadou, Domus Aer, Nicosia, Cipro 2025
Photo Maria Efthymiou (Creative Photo Room)
Studio Kyriakos Miltiadou, Domus Aer, Nicosia, Cipro 2025
Photo Maria Efthymiou (Creative Photo Room)
Studio Kyriakos Miltiadou, Domus Aer, Nicosia, Cipro 2025
Photo Maria Efthymiou (Creative Photo Room)
Studio Kyriakos Miltiadou, Domus Aer, Nicosia, Cipro 2025
Photo Maria Efthymiou (Creative Photo Room)
Studio Kyriakos Miltiadou, Domus Aer, Nicosia, Cipro 2025
Photo Maria Efthymiou (Creative Photo Room)
Studio Kyriakos Miltiadou, Domus Aer, Nicosia, Cipro 2025
Photo Maria Efthymiou (Creative Photo Room)
Studio Kyriakos Miltiadou, Domus Aer, Nicosia, Cipro 2025
Photo Maria Efthymiou (Creative Photo Room)
Studio Kyriakos Miltiadou, Domus Aer, Nicosia, Cipro 2025
Photo Maria Efthymiou (Creative Photo Room)
Studio Kyriakos Miltiadou, Domus Aer, Nicosia, Cipro 2025
Photo Maria Efthymiou (Creative Photo Room)
Studio Kyriakos Miltiadou ha progettato una casa come una scatola nella scatola che si decostruisce internamente, all’insegna di un concept abitativo introverso ma articolato e vissuto. Continua a leggere
Un fienile in Germania trasformato in una casa dagli interni radicali
View gallery
Non solo elementi tradizionali recuperati: Büro Mühlbauer inserisce calcestruzzo e vetrocemento nella ristrutturazione di un ex fienile a Ingolstadt, creando un interno dagli echi brutalisti. Continua a leggere
La villa mediterranea ripensata in una casa in Catalogna
View gallery
Twobo Arquitectura ha sviluppato questa casa vicino a Girona come un sistema di patii e padiglioni, che invitano al movimento e alla sosta come nuovi rituali domestici tra ceramiche, cemento a vista e gelosie in terracotta. Continua a leggere
Un’architettura contemporanea scolpita sulle pendici di un vulcano
View gallery
Nelle Ande, a oltre 3.200 metri di altitudine, questa villa progettata da Diez + Muller Arquitectos si inserisce nel paesaggio interpretandone la topografia. Continua a leggere
Una villa in Kuwait nata come un’oasi tra Golfo e deserto
View gallery
Nel progetto di Taep/Aap, spazi aperti e raccolti si inseguono all’interno di una lunga striscia che unisce deserto e mare, radunandosi attorno a una torre da cui poterli contemplare. Continua a leggere
Un habitat multispecie in una casa-serra a Berlino
View gallery
supertype group, Winter Garden House, Berlino, 2024
Scenari di utilizzo. Courtesy supertype group
supertype group, Winter Garden House, Berlino, 2024
Elaborato di progetto. Courtesy supertype group
supertype group, Winter Garden House, Berlino, 2024
Elaborato di progetto. Courtesy supertype group
supertype group, Winter Garden House, Berlino, 2024
Elaborato di progetto. Courtesy supertype group
supertype group, Winter Garden House, Berlino, 2024
Scenari di utilizzo. Courtesy supertype group
supertype group, Winter Garden House, Berlino, 2024
Elaborato di progetto. Courtesy supertype group
supertype group, Winter Garden House, Berlino, 2024
Elaborato di progetto. Courtesy supertype group
supertype group, Winter Garden House, Berlino, 2024
Elaborato di progetto. Courtesy supertype group
Supertype group ha ampliato un edificio storico con una struttura aperta e ibrida, dove spazi abitativi e giardino si possono inserire e combinare come moduli plug-in. Continua a leggere
A Maiorca, un progetto per unire due case con un lungo patio
View gallery
Isla Architects ha tradotto il carattere locale delle Baleari in un dialogo di terra, pietre e interni bianchi riuniti attorno ad uno spazio aperto lineare. Continua a leggere
Una casa anni ‘60 in Belgio che conserva il suo temperamento brutalista
View gallery
Lo studio Kaai 7 trasforma uno studio dentistico in un'abitazione, attraverso un intervento di ristrutturazione e ampliamento che riafferma scrupolosamente (e giocosamente) il carattere brutalista degli ambienti. Continua a leggere
Il vernacolare contemporaneo di una casa sul lago, in Argentina
View gallery
Nel cuore della Sierra di Córdoba, lo studio vbrügg firma il progetto di una residenza che accosta un corpo architettonico leggero e contemporaneo a una torre massiva in cemento. Continua a leggere
Una casa monolitica che fluttua nei boschi del Portogallo
View gallery
Il progetto di Ooda è un volume di cemento armato dalle suggestioni brutaliste che fluttua su una fascia trasparente in vetro e legno e, abbracciando un piccolo pendio, crea un’oasi privata in armonia col paesaggio. Continua a leggere
Un appartamento nella Milano del primo ‘900 che recupera i suoi elementi originali
View gallery
La ristrutturazione firmata da Noe9 reinterpreta textures e materiali storici, per creare un contrasto di trame geometriche optical, superfici neutre e icone di design. Continua a leggere
... e uno ad Atene, dove la casa giapponese incontra la Grecia moderna
View gallery
Portando alla luce il cemento delle strutture, e sostituendo le partizioni in muratura con il traslucido tipico degli shoji, questa ristrutturazione nel quartiere di Exarcheia interpreta l’architettura della Atene moderna con uno spazio minimale e flessibile. Continua a leggere
Cemento, piastrelle e design industriale: un open space contemporaneo a Santander
View gallery
Una nuova organizzazione degli spazi e una scelta eccentrica di finiture e colori portano uno stile di vita contemporaneo dentro un appartamento affacciato sulla baia della città spagnola, restaurato da Bian Office. Continua a leggere
