Original stone facade and neutral tones
View gallery
Original stones on the facade and spaces defined by the neutral tones of white and wood: Studio XM transforms the building in Vaucluse underlining the value of craftsmanship. Read full article here.
White lime and external staircase
View gallery
The single-family residence designed by Grupo Boreal is a lime-coated construction that offers a up-to-date transposition of a classic Mediterranean building typology. Read full article here.
Mashrabiyas and floor resin
View gallery
The Italian architects renovate a rural architecture combining traditional techniques and markedly contemporary signs. Read full article here.
External coating and geometric rigour
View gallery
For Studio Archisbang, the thickening of an existing building due to its external insulation coating is the occasion for a reflection on the architectural languages and masses. Read full article here.
Glass facade and wooden frames
View gallery
Jorge Ramón Giacometti Architecture Workshop, Avocados House, Puembo, Ecuador, 2020
Photo Juan Alberto Andrade
Jorge Ramón Giacometti Architecture Workshop, Avocados House, Puembo, Ecuador, 2020
Photo Juan Alberto Andrade
Jorge Ramón Giacometti Architecture Workshop, Avocados House, Puembo, Ecuador, 2020
Photo Juan Alberto Andrade
Jorge Ramón Giacometti Architecture Workshop, Avocados House, Puembo, Ecuador, 2020
Photo Juan Alberto Andrade
Jorge Ramón Giacometti Architecture Workshop, Avocados House, Puembo, Ecuador, 2020
Photo Juan Alberto Andrade
Jorge Ramón Giacometti Architecture Workshop, Avocados House, Puembo, Ecuador, 2020
Photo Juan Alberto Andrade
Jorge Ramón Giacometti Architecture Workshop, Avocados House, Puembo, Ecuador, 2020
Photo Juan Alberto Andrade
Jorge Ramón Giacometti Architecture Workshop, Avocados House, Puembo, Ecuador, 2020
Photo Juan Alberto Andrade
Jorge Ramón Giacometti Architecture Workshop, Avocados House, Puembo, Ecuador, 2020
Photo Juan Alberto Andrade
Jorge Ramón Giacometti Architecture Workshop, Avocados House, Puembo, Ecuador, 2020
Photo Juan Alberto Andrade
Jorge Ramón Giacometti Architecture Workshop, Avocados House, Puembo, Ecuador, 2020
Photo Juan Alberto Andrade
Jorge Ramón Giacometti Architecture Workshop, Avocados House, Puembo, Ecuador, 2020
Photo Juan Alberto Andrade
Jorge Ramón Giacometti Architecture Workshop, Avocados House, Puembo, Ecuador, 2020
Photo Juan Alberto Andrade
Jorge Ramón Giacometti Architecture Workshop, Avocados House, Puembo, Ecuador, 2020
Photo Juan Alberto Andrade
Jorge Ramón Giacometti Architecture Workshop, Avocados House, Puembo, Ecuador, 2020
Photo Juan Alberto Andrade
Jorge Ramón Giacometti Architecture Workshop, Avocados House, Puembo, Ecuador, 2020
Photo Juan Alberto Andrade
Jorge Ramón Giacometti Architecture Workshop, Avocados House, Puembo, Ecuador, 2020
Photo Juan Alberto Andrade
Jorge Ramón Giacometti Architecture Workshop, Avocados House, Puembo, Ecuador, 2020
Photo Juan Alberto Andrade
Jorge Ramón Giacometti Architecture Workshop, Avocados House, Puembo, Ecuador, 2020
Photo Juan Alberto Andrade
Jorge Ramón Giacometti Architecture Workshop, Avocados House, Puembo, Ecuador, 2020
Photo Juan Alberto Andrade
Jorge Ramón Giacometti Architecture Workshop, Avocados House, Puembo, Ecuador, 2020
Photo Juan Alberto Andrade
Jorge Ramón Giacometti Architecture Workshop, Avocados House, Puembo, Ecuador, 2020
Constructive axonomy
Jorge Ramón Giacometti Architecture Workshop, Avocados House, Puembo, Ecuador, 2020
Constructive axonomy
Jorge Ramón Giacometti Architecture Workshop, Avocados House, Puembo, Ecuador, 2020
Site plan
Jorge Ramón Giacometti Architecture Workshop, Avocados House, Puembo, Ecuador, 2020
Former Ground floor
Jorge Ramón Giacometti Architecture Workshop, Avocados House, Puembo, Ecuador, 2020
Former First Floor
Jorge Ramón Giacometti Architecture Workshop, Avocados House, Puembo, Ecuador, 2020
Project, ground floor
Jorge Ramón Giacometti Architecture Workshop, Avocados House, Puembo, Ecuador, 2020
Project, first floor
Jorge Ramón Giacometti Architecture Workshop, Avocados House, Puembo, Ecuador, 2020
Front
Jorge Ramón Giacometti Architecture Workshop, Avocados House, Puembo, Ecuador, 2020
Former Front
Jorge Ramón Giacometti Architecture Workshop, Avocados House, Puembo, Ecuador, 2020
Photo Juan Alberto Andrade
Jorge Ramón Giacometti Architecture Workshop, Avocados House, Puembo, Ecuador, 2020
Photo Juan Alberto Andrade
Jorge Ramón Giacometti Architecture Workshop, Avocados House, Puembo, Ecuador, 2020
Photo Juan Alberto Andrade
Jorge Ramón Giacometti Architecture Workshop, Avocados House, Puembo, Ecuador, 2020
Photo Juan Alberto Andrade
Jorge Ramón Giacometti Architecture Workshop, Avocados House, Puembo, Ecuador, 2020
Photo Juan Alberto Andrade
Jorge Ramón Giacometti Architecture Workshop, Avocados House, Puembo, Ecuador, 2020
Photo Juan Alberto Andrade
Jorge Ramón Giacometti Architecture Workshop, Avocados House, Puembo, Ecuador, 2020
Photo Juan Alberto Andrade
Jorge Ramón Giacometti Architecture Workshop, Avocados House, Puembo, Ecuador, 2020
Photo Juan Alberto Andrade
Jorge Ramón Giacometti Architecture Workshop, Avocados House, Puembo, Ecuador, 2020
Photo Juan Alberto Andrade
Jorge Ramón Giacometti Architecture Workshop, Avocados House, Puembo, Ecuador, 2020
Photo Juan Alberto Andrade
Jorge Ramón Giacometti Architecture Workshop, Avocados House, Puembo, Ecuador, 2020
Photo Juan Alberto Andrade
Jorge Ramón Giacometti Architecture Workshop, Avocados House, Puembo, Ecuador, 2020
Photo Juan Alberto Andrade
Jorge Ramón Giacometti Architecture Workshop, Avocados House, Puembo, Ecuador, 2020
Photo Juan Alberto Andrade
Jorge Ramón Giacometti Architecture Workshop, Avocados House, Puembo, Ecuador, 2020
Photo Juan Alberto Andrade
Jorge Ramón Giacometti Architecture Workshop, Avocados House, Puembo, Ecuador, 2020
Photo Juan Alberto Andrade
Jorge Ramón Giacometti Architecture Workshop, Avocados House, Puembo, Ecuador, 2020
Photo Juan Alberto Andrade
Jorge Ramón Giacometti Architecture Workshop, Avocados House, Puembo, Ecuador, 2020
Photo Juan Alberto Andrade
Jorge Ramón Giacometti Architecture Workshop, Avocados House, Puembo, Ecuador, 2020
Photo Juan Alberto Andrade
Jorge Ramón Giacometti Architecture Workshop, Avocados House, Puembo, Ecuador, 2020
Photo Juan Alberto Andrade
Jorge Ramón Giacometti Architecture Workshop, Avocados House, Puembo, Ecuador, 2020
Photo Juan Alberto Andrade
Jorge Ramón Giacometti Architecture Workshop, Avocados House, Puembo, Ecuador, 2020
Photo Juan Alberto Andrade
Jorge Ramón Giacometti Architecture Workshop, Avocados House, Puembo, Ecuador, 2020
Constructive axonomy
Jorge Ramón Giacometti Architecture Workshop, Avocados House, Puembo, Ecuador, 2020
Constructive axonomy
Jorge Ramón Giacometti Architecture Workshop, Avocados House, Puembo, Ecuador, 2020
Site plan
Jorge Ramón Giacometti Architecture Workshop, Avocados House, Puembo, Ecuador, 2020
Former Ground floor
Jorge Ramón Giacometti Architecture Workshop, Avocados House, Puembo, Ecuador, 2020
Former First Floor
Jorge Ramón Giacometti Architecture Workshop, Avocados House, Puembo, Ecuador, 2020
Project, ground floor
Jorge Ramón Giacometti Architecture Workshop, Avocados House, Puembo, Ecuador, 2020
Project, first floor
Jorge Ramón Giacometti Architecture Workshop, Avocados House, Puembo, Ecuador, 2020
Front
Jorge Ramón Giacometti Architecture Workshop, Avocados House, Puembo, Ecuador, 2020
Former Front
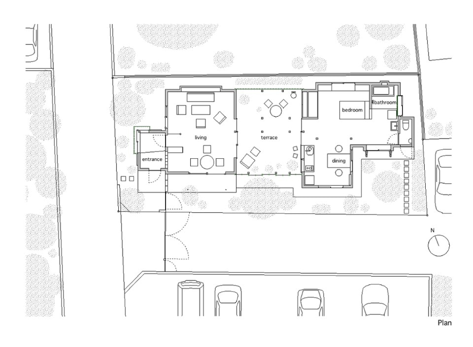
The wide glass surfaces and natural materials introduced by Jorge Ramón Giacometti in a traditional Ecuadorian home define an intimate relationship of continuity between the interior and the natural landscape surrounding it. Read full article here.
Exposesd concrete addition
View gallery
A few kilometers from Malaga, studio Fuertespenedo Arquitectos builds the extension of a rural house, enhancing traditional materials and space. Read full article here.
Austere wood and pitched roof
View gallery
A residential building in Monza
architect Gino Guarnieri, Studio a Milano
photo Simone Bossi
A residential building in Monza
architect Gino Guarnieri, Studio a Milano
photo Simone Bossi
A residential building in Monza
architect Gino Guarnieri, Studio a Milano
photo Simone Bossi
A residential building in Monza
architect Gino Guarnieri, Studio a Milano
photo Simone Bossi
A residential building in Monza
architect Gino Guarnieri, Studio a Milano
photo Simone Bossi
A residential building in Monza
architect Gino Guarnieri, Studio a Milano
photo Simone Bossi
A residential building in Monza
architect Gino Guarnieri, Studio a Milano
photo Simone Bossi
A residential building in Monza
architect Gino Guarnieri, Studio a Milano
photo Simone Bossi
A residential building in Monza
architect Gino Guarnieri, Studio a Milano
photo Simone Bossi
A residential building in Monza
architect Gino Guarnieri, Studio a Milano
photo Simone Bossi
A residential building in Monza
architect Gino Guarnieri, Studio a Milano
photo Simone Bossi
A residential building in Monza
architect Gino Guarnieri, Studio a Milano
photo Simone Bossi
A residential building in Monza
architect Gino Guarnieri, Studio a Milano
photo Simone Bossi
A residential building in Monza
architect Gino Guarnieri, Studio a Milano
photo Simone Bossi
A residential building in Monza
architect Gino Guarnieri, Studio a Milano
photo Simone Bossi
A residential building in Monza
architect Gino Guarnieri, Studio a Milano
photo Simone Bossi
A residential building in Monza
architect Gino Guarnieri, Studio a Milano
photo Simone Bossi
A residential building in Monza
architect Gino Guarnieri, Studio a Milano
photo Simone Bossi
A residential building in Monza
architect Gino Guarnieri, Studio a Milano
photo Simone Bossi
A residential building in Monza
architect Gino Guarnieri, Studio a Milano
photo Simone Bossi
A residential building in Monza
architect Gino Guarnieri, Studio a Milano
photo Simone Bossi
A residential building in Monza
architect Gino Guarnieri, Studio a Milano
photo Simone Bossi
A residential building in Monza
architect Gino Guarnieri, Studio a Milano
photo Simone Bossi
A residential building in Monza
architect Gino Guarnieri, Studio a Milano
photo Simone Bossi
A residential building in Monza
architect Gino Guarnieri, Studio a Milano
photo Simone Bossi
A residential building in Monza
architect Gino Guarnieri, Studio a Milano
photo Simone Bossi
A residential building in Monza
architect Gino Guarnieri, Studio a Milano
photo Simone Bossi
A residential building in Monza
architect Gino Guarnieri, Studio a Milano
photo Simone Bossi
A residential building in Monza
architect Gino Guarnieri, Studio a Milano
photo Simone Bossi
A residential building in Monza
architect Gino Guarnieri, Studio a Milano
photo Simone Bossi
A residential building in Monza
architect Gino Guarnieri, Studio a Milano
photo Simone Bossi
A residential building in Monza
architect Gino Guarnieri, Studio a Milano
photo Simone Bossi
Set in a lot adjoining a railway axis, the residential building designed by Studio a Milano recreates the configuration of the typical Lombard agricultural courtyard, while offering a renewed view to travellers observing the construction from the train. Read full article here.
Roof garden and rough wood
View gallery
Mork-Ulnes Architects, Skigard Hytte, Kvitfjell Resort, Fåvang, Norway, 2020
Photo Bruce Damonte
Mork-Ulnes Architects, Skigard Hytte, Kvitfjell Resort, Fåvang, Norway, 2020
Photo Bruce Damonte
Mork-Ulnes Architects, Skigard Hytte, Kvitfjell Resort, Fåvang, Norway, 2020
Photo Bruce Damonte
Mork-Ulnes Architects, Skigard Hytte, Kvitfjell Resort, Fåvang, Norway, 2020
Photo Bruce Damonte
Mork-Ulnes Architects, Skigard Hytte, Kvitfjell Resort, Fåvang, Norway, 2020
Photo Bruce Damonte
Mork-Ulnes Architects, Skigard Hytte, Kvitfjell Resort, Fåvang, Norway, 2020
Photo Bruce Damonte
Mork-Ulnes Architects, Skigard Hytte, Kvitfjell Resort, Fåvang, Norway, 2020
Photo Bruce Damonte
Mork-Ulnes Architects, Skigard Hytte, Kvitfjell Resort, Fåvang, Norway, 2020
Photo Bruce Damonte
Mork-Ulnes Architects, Skigard Hytte, Kvitfjell Resort, Fåvang, Norway, 2020
Photo Bruce Damonte
Mork-Ulnes Architects, Skigard Hytte, Kvitfjell Resort, Fåvang, Norway, 2020
Photo Bruce Damonte
Mork-Ulnes Architects, Skigard Hytte, Kvitfjell Resort, Fåvang, Norway, 2020
Photo Bruce Damonte
Mork-Ulnes Architects, Skigard Hytte, Kvitfjell Resort, Fåvang, Norway, 2020
Photo Bruce Damonte
Mork-Ulnes Architects, Skigard Hytte, Kvitfjell Resort, Fåvang, Norway, 2020
Photo Bruce Damonte
Mork-Ulnes Architects, Skigard Hytte, Kvitfjell Resort, Fåvang, Norway, 2020
Photo Bruce Damonte
Mork-Ulnes Architects, Skigard Hytte, Kvitfjell Resort, Fåvang, Norway, 2020
Photo Bruce Damonte
Mork-Ulnes Architects, Skigard Hytte, Kvitfjell Resort, Fåvang, Norway, 2020
Photo Bruce Damonte
Mork-Ulnes Architects, Skigard Hytte, Kvitfjell Resort, Fåvang, Norway, 2020
Photo Bruce Damonte
Mork-Ulnes Architects, Skigard Hytte, Kvitfjell Resort, Fåvang, Norway, 2020
Photo Bruce Damonte
Mork-Ulnes Architects, Skigard Hytte, Kvitfjell Resort, Fåvang, Norway, 2020
Photo Bruce Damonte
Mork-Ulnes Architects, Skigard Hytte, Kvitfjell Resort, Fåvang, Norway, 2020
Photo Bruce Damonte
Mork-Ulnes Architects, Skigard Hytte, Kvitfjell Resort, Fåvang, Norway, 2020
Photo Bruce Damonte
Mork-Ulnes Architects, Skigard Hytte, Kvitfjell Resort, Fåvang, Norway, 2020
Photo Bruce Damonte
Mork-Ulnes Architects, Skigard Hytte, Kvitfjell Resort, Fåvang, Norway, 2020
Photo Bruce Damonte
Mork-Ulnes Architects, Skigard Hytte, Kvitfjell Resort, Fåvang, Norway, 2020
Photo Bruce Damonte
Mork-Ulnes Architects, Skigard Hytte, Kvitfjell Resort, Fåvang, Norway, 2020
Photo Bruce Damonte
Mork-Ulnes Architects, Skigard Hytte, Kvitfjell Resort, Fåvang, Norway, 2020
Photo Bruce Damonte
Mork-Ulnes Architects, Skigard Hytte, Kvitfjell Resort, Fåvang, Norway, 2020
Photo Bruce Damonte
Mork-Ulnes Architects, Skigard Hytte, Kvitfjell Resort, Fåvang, Norway, 2020
Photo Bruce Damonte
Mork-Ulnes Architects, Skigard Hytte, Kvitfjell Resort, Fåvang, Norway, 2020
Photo Bruce Damonte
Mork-Ulnes Architects, Skigard Hytte, Kvitfjell Resort, Fåvang, Norway, 2020
Photo Bruce Damonte
Mork-Ulnes Architects, Skigard Hytte, Kvitfjell Resort, Fåvang, Norway, 2020
Photo Bruce Damonte
Mork-Ulnes Architects, Skigard Hytte, Kvitfjell Resort, Fåvang, Norway, 2020
Photo Bruce Damonte
Mork-Ulnes Architects, Skigard Hytte, Kvitfjell Resort, Fåvang, Norway, 2020
Photo Bruce Damonte
Mork-Ulnes Architects, Skigard Hytte, Kvitfjell Resort, Fåvang, Norway, 2020
Photo Bruce Damonte
Mork-Ulnes Architects, Skigard Hytte, Kvitfjell Resort, Fåvang, Norway, 2020
Photo Bruce Damonte
Mork-Ulnes Architects, Skigard Hytte, Kvitfjell Resort, Fåvang, Norway, 2020
Photo Bruce Damonte
Mork-Ulnes Architects, Skigard Hytte, Kvitfjell Resort, Fåvang, Norway, 2020
Photo Bruce Damonte
Mork-Ulnes Architects, Skigard Hytte, Kvitfjell Resort, Fåvang, Norway, 2020
Photo Bruce Damonte
Mork-Ulnes Architects, Skigard Hytte, Kvitfjell Resort, Fåvang, Norway, 2020
Photo Bruce Damonte
Mork-Ulnes Architects, Skigard Hytte, Kvitfjell Resort, Fåvang, Norway, 2020
Photo Bruce Damonte
Mork-Ulnes Architects, Skigard Hytte, Kvitfjell Resort, Fåvang, Norway, 2020
Photo Bruce Damonte
Mork-Ulnes Architects, Skigard Hytte, Kvitfjell Resort, Fåvang, Norway, 2020
Photo Bruce Damonte
Mork-Ulnes Architects, Skigard Hytte, Kvitfjell Resort, Fåvang, Norway, 2020
Photo Bruce Damonte
Mork-Ulnes Architects, Skigard Hytte, Kvitfjell Resort, Fåvang, Norway, 2020
Photo Bruce Damonte
Mork-Ulnes Architects, Skigard Hytte, Kvitfjell Resort, Fåvang, Norway, 2020
Photo Bruce Damonte
Mork-Ulnes Architects, Skigard Hytte, Kvitfjell Resort, Fåvang, Norway, 2020
Photo Bruce Damonte
Mork-Ulnes Architects, Skigard Hytte, Kvitfjell Resort, Fåvang, Norway, 2020
Photo Bruce Damonte
Mork-Ulnes Architects, Skigard Hytte, Kvitfjell Resort, Fåvang, Norway, 2020
Photo Bruce Damonte
Mork-Ulnes Architects, Skigard Hytte, Kvitfjell Resort, Fåvang, Norway, 2020
Photo Bruce Damonte
Mork-Ulnes Architects, Skigard Hytte, Kvitfjell Resort, Fåvang, Norway, 2020
Photo Bruce Damonte
Mork-Ulnes Architects studies traditional techniques and environmental conditions to give shape to a mountain house that seems hiding in nature. Read full article here.
Cork walls and solar panels
View gallery
The Casa Quattro by LCA architetti in Magnano is a successful experiment on the topic of energy efficiency and its diverse possible aesthetics. Read full article here.
Full height double view and reed walls
View gallery
Designed by the Spanish studio Ohlab, Casa Palerm is conceived as a device that allows to live indoor and outdoor spaces in absolute continuity, making the most of natural ventilation and respecting the island's local identity. Read full article here.
Roof addition and spare units
View gallery
Paulo Merlini Architects rediscovered the original tripartite form of Casa Rio during demolition and took it as a starting point for a contemporary reinterpretation of the old farmhouse. Read full article here.
Original envelope and double height interiors
View gallery
ORA reconverts a 17th century rural building, maintaining the brick shell but completely transforming its interiors. Read full article here.
Wooden ornamental sunshades
View gallery
LCA architetti distances its new building from vernacular mountain constructions, and it stands out as an elegant catalogue of contemporary wooden facades. Read full article here.
Wild plants inside, outside and above
View gallery
Michaelis Boyd Associates designed Arijiju House combining African and European architecture: rooms, terraces and green roofs develop around a central courtyard and overlook the savannah. Read full article here.
Wooden walkways and glass verandas
View gallery
Edoardo Milesi & ARCHOS’s project for a private house in the countryside of Lombardy reflects on the relationship between the restoration of an existing building and its adaptation to today’s life. Read full article here.
Beams and curtain walls revisited
View gallery
Takeshi Yamagata Architects combine contemporary living spaces made of air and light with the traditional features of Japanese wooden houses. Read full article here.
Brick pastiche and sculptural skylight
View gallery
Two-Bo Arquitectura and Luis Twose redesign a farm in Catalonia by inserting in the garden an underground walkway that comes to embrace the walls of the old cistern. Read full article here.
