Austeri, materici, in trasformazione: ecco una selezione di quindici interni pubblicati quest’anno su domusweb. Dall’Italia al Giappone sono protagonisti gli spazi.
Una stanza nascosta e flessibile in un appartamento ristrutturato a Padova
View gallery
Collaboratorio, Ristrutturazone di un appartamento a Padova
Foto Simone Bossi Photographer
Collaboratorio, Ristrutturazone di un appartamento a Padova
Foto Simone Bossi Photographer
Collaboratorio, Ristrutturazone di un appartamento a Padova
Foto Simone Bossi Photographer
Collaboratorio, Ristrutturazone di un appartamento a Padova
Foto Simone Bossi Photographer
Collaboratorio, Ristrutturazone di un appartamento a Padova
Foto Simone Bossi Photographer
Collaboratorio, Ristrutturazone di un appartamento a Padova
Foto Simone Bossi Photographer
Collaboratorio, Ristrutturazone di un appartamento a Padova
Foto Simone Bossi Photographer
Collaboratorio, Ristrutturazone di un appartamento a Padova
Foto Simone Bossi Photographer
Collaboratorio, Ristrutturazone di un appartamento a Padova
Foto Simone Bossi Photographer
Collaboratorio, Ristrutturazone di un appartamento a Padova
Foto Simone Bossi Photographer
Collaboratorio, Ristrutturazone di un appartamento a Padova
Foto Simone Bossi Photographer
Collaboratorio, Ristrutturazone di un appartamento a Padova
Foto Simone Bossi Photographer
Collaboratorio, Ristrutturazone di un appartamento a Padova
Foto Simone Bossi Photographer
Collaboratorio, Ristrutturazone di un appartamento a Padova
Foto Simone Bossi Photographer
Collaboratorio, Ristrutturazone di un appartamento a Padova
Foto Simone Bossi Photographer
Collaboratorio, Ristrutturazone di un appartamento a Padova
Foto Simone Bossi Photographer
Collaboratorio, Ristrutturazone di un appartamento a Padova
Foto Simone Bossi Photographer
Collaboratorio, Ristrutturazone di un appartamento a Padova
Foto Simone Bossi Photographer
Collaboratorio, Ristrutturazone di un appartamento a Padova
Foto Simone Bossi Photographer
Collaboratorio, Ristrutturazone di un appartamento a Padova
Foto Simone Bossi Photographer
Collaboratorio, Ristrutturazone di un appartamento a Padova
Foto Simone Bossi Photographer
Collaboratorio, Ristrutturazone di un appartamento a Padova
Foto Simone Bossi Photographer
Collaboratorio, Ristrutturazone di un appartamento a Padova
Foto Simone Bossi Photographer
Collaboratorio, Ristrutturazone di un appartamento a Padova
Foto Simone Bossi Photographer
Collaboratorio, Ristrutturazone di un appartamento a Padova
Foto Simone Bossi Photographer
Collaboratorio, Ristrutturazone di un appartamento a Padova
Foto Simone Bossi Photographer
Collaboratorio, Ristrutturazone di un appartamento a Padova
Foto Simone Bossi Photographer
Collaboratorio, Ristrutturazone di un appartamento a Padova
Foto Simone Bossi Photographer
Collaboratorio, Ristrutturazone di un appartamento a Padova
Foto Simone Bossi Photographer
Collaboratorio, Ristrutturazone di un appartamento a Padova
Foto Simone Bossi Photographer
Collaboratorio, Ristrutturazone di un appartamento a Padova
Foto Simone Bossi Photographer
Collaboratorio, Ristrutturazone di un appartamento a Padova
Foto Simone Bossi Photographer
Collaboratorio, Ristrutturazone di un appartamento a Padova
Foto Simone Bossi Photographer
Collaboratorio, Ristrutturazone di un appartamento a Padova
Foto Simone Bossi Photographer
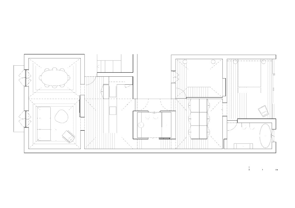
In un appartamento situato nel cuore storico di Padova, lo studio italo-finlandese Collaboratorio ha dato forma a uno spazio funzionale per una giovane coppia, progettato per adattarsi e trasformarsi. La casa, diventata un ufficio negli anni ‘80, è oggi un ambiente luminoso che propone una diversa suddivisione degli spazi. Leggi l’articolo completo
La rigorosa trasformazione di un bilocale a Milano
View gallery
Multiply
Enrico Forestieri, Milano, 2020
Foto Allegra Martin
Disegni e modello Enrico Forestieri
Multiply
Enrico Forestieri, Milano, 2020
Foto Allegra Martin
Disegni e modello Enrico Forestieri
Multiply
Enrico Forestieri, Milano, 2020
Foto Allegra Martin
Disegni e modello Enrico Forestieri
Multiply
Enrico Forestieri, Milano, 2020
Foto Allegra Martin
Disegni e modello Enrico Forestieri
Multiply
Enrico Forestieri, Milano, 2020
Foto Allegra Martin
Disegni e modello Enrico Forestieri
Multiply
Enrico Forestieri, Milano, 2020
Foto Allegra Martin
Disegni e modello Enrico Forestieri
Multiply
Enrico Forestieri, Milano, 2020
Foto Allegra Martin
Disegni e modello Enrico Forestieri
Multiply
Enrico Forestieri, Milano, 2020
Foto Allegra Martin
Disegni e modello Enrico Forestieri
Multiply
Enrico Forestieri, Milano, 2020
Foto Allegra Martin
Disegni e modello Enrico Forestieri
Multiply
Enrico Forestieri, Milano, 2020
Foto Allegra Martin
Disegni e modello Enrico Forestieri
Multiply
Enrico Forestieri, Milano, 2020
Foto Allegra Martin
Disegni e modello Enrico Forestieri
Multiply
Enrico Forestieri, Milano, 2020
Foto Allegra Martin
Disegni e modello Enrico Forestieri
Multiply
Enrico Forestieri, Milano, 2020
Foto Allegra Martin
Disegni e modello Enrico Forestieri
Multiply
Enrico Forestieri, Milano, 2020
Foto Allegra Martin
Disegni e modello Enrico Forestieri
Multiply
Enrico Forestieri, Milano, 2020
Foto Allegra Martin
Disegni e modello Enrico Forestieri
Multiply
Enrico Forestieri, Milano, 2020
Foto Allegra Martin
Disegni e modello Enrico Forestieri
Multiply
Enrico Forestieri, Milano, 2020
Foto Allegra Martin
Disegni e modello Enrico Forestieri
Multiply
Enrico Forestieri, Milano, 2020
Foto Allegra Martin
Disegni e modello Enrico Forestieri
Multiply
Enrico Forestieri, Milano, 2020
Foto Allegra Martin
Disegni e modello Enrico Forestieri
Multiply
Enrico Forestieri, Milano, 2020
Foto Allegra Martin
Disegni e modello Enrico Forestieri
Multiply
Enrico Forestieri, Milano, 2020
Foto Allegra Martin
Disegni e modello Enrico Forestieri
Multiply
Enrico Forestieri, Milano, 2020
Foto Allegra Martin
Disegni e modello Enrico Forestieri
Multiply
Enrico Forestieri, Milano, 2020
Foto Allegra Martin
Disegni e modello Enrico Forestieri
Multiply
Enrico Forestieri, Milano, 2020
Foto Allegra Martin
Disegni e modello Enrico Forestieri
Multiply
Enrico Forestieri, Milano, 2020
Foto Allegra Martin
Disegni e modello Enrico Forestieri
Multiply
Enrico Forestieri, Milano, 2020
Foto Allegra Martin
Disegni e modello Enrico Forestieri
Multiply
Enrico Forestieri, Milano, 2020
Foto Allegra Martin
Disegni e modello Enrico Forestieri
Multiply
Enrico Forestieri, Milano, 2020
Foto Allegra Martin
Disegni e modello Enrico Forestieri
Multiply
Enrico Forestieri, Milano, 2020
Foto Allegra Martin
Disegni e modello Enrico Forestieri
Multiply
Enrico Forestieri, Milano, 2020
Foto Allegra Martin
Disegni e modello Enrico Forestieri
Liberare gli spazi da ogni fronzolo e mostrare i materiali da costruzione, utilizzare un linguaggio austero e un po’ grezzo, ottimizzare i pochi spazi disponibili. Con il progetto Multiply, l’architetto Enrico Forestieri esplora le potenzialità di trasformazione spaziale e percettiva di una piccola residenza poco “milanese”. Leggi l’articolo completo
Un appartamento in Portogallo dai tratti puliti e morbidi
View gallery
Un appartamento ad Amarante, in Portogallo, all’interno di un edificio sulla strada, è stato trasformato in uno spazio ben suddiviso che sembra essere sospeso e quasi in movimento. Il progetto di ristrutturazione è firmato dallo studio Fala, che ha rinnovato gli interni e le facciate provando a preservare la storia e le caratteristiche originali del palazzo, aggiungendo al tempo stesso tratti nuovi. Leggi l’articolo completo
Angoli in costante trasformazione in un appartamento a Taranto
View gallery
Un appartamento a Taranto è stato trasformato da studio biro+, che ha organizzato gli ambienti in uno schema funzionale, sfruttando l’orientamento in modo ottimale e puntando in particolare sull’utilizzo del colore e dell’arredo fisso. Leggi l’articolo completo
Continuità di spazi e tempi in un interno romano
View gallery
Appartamento sul Colle Oppio, Roma
PuntoZero Architetti
Foto Yara Bonanni, Stylist Alessandra Orzali
Appartamento sul Colle Oppio, Roma
PuntoZero Architetti
Foto Yara Bonanni, Stylist Alessandra Orzali
Appartamento sul Colle Oppio, Roma
PuntoZero Architetti
Foto Yara Bonanni, Stylist Alessandra Orzali
Appartamento sul Colle Oppio, Roma
PuntoZero Architetti
Foto Yara Bonanni, Stylist Alessandra Orzali
Appartamento sul Colle Oppio, Roma
PuntoZero Architetti
Foto Yara Bonanni, Stylist Alessandra Orzali
Appartamento sul Colle Oppio, Roma
PuntoZero Architetti
Foto Yara Bonanni, Stylist Alessandra Orzali
Appartamento sul Colle Oppio, Roma
PuntoZero Architetti
Foto Yara Bonanni, Stylist Alessandra Orzali
Appartamento sul Colle Oppio, Roma
PuntoZero Architetti
Foto Yara Bonanni, Stylist Alessandra Orzali
Appartamento sul Colle Oppio, Roma
PuntoZero Architetti
Foto Yara Bonanni, Stylist Alessandra Orzali
Appartamento sul Colle Oppio, Roma
PuntoZero Architetti
Foto Yara Bonanni, Stylist Alessandra Orzali
Appartamento sul Colle Oppio, Roma
PuntoZero Architetti
Foto Yara Bonanni, Stylist Alessandra Orzali
Appartamento sul Colle Oppio, Roma
PuntoZero Architetti
Foto Yara Bonanni, Stylist Alessandra Orzali
Appartamento sul Colle Oppio, Roma
PuntoZero Architetti
Foto Yara Bonanni, Stylist Alessandra Orzali
Appartamento sul Colle Oppio, Roma
PuntoZero Architetti
Foto Yara Bonanni, Stylist Alessandra Orzali
Appartamento sul Colle Oppio, Roma
PuntoZero Architetti
Foto Yara Bonanni, Stylist Alessandra Orzali
Appartamento sul Colle Oppio, Roma
PuntoZero Architetti
Foto Yara Bonanni, Stylist Alessandra Orzali
Appartamento sul Colle Oppio, Roma
PuntoZero Architetti
Foto Yara Bonanni, Stylist Alessandra Orzali
Appartamento sul Colle Oppio, Roma
PuntoZero Architetti
Foto Yara Bonanni, Stylist Alessandra Orzali
Appartamento sul Colle Oppio, Roma
PuntoZero Architetti
Foto Yara Bonanni, Stylist Alessandra Orzali
Appartamento sul Colle Oppio, Roma
PuntoZero Architetti
Foto Yara Bonanni, Stylist Alessandra Orzali
Appartamento sul Colle Oppio, Roma
PuntoZero Architetti
Foto Yara Bonanni, Stylist Alessandra Orzali
Appartamento sul Colle Oppio, Roma
PuntoZero Architetti
Foto Yara Bonanni, Stylist Alessandra Orzali
Appartamento sul Colle Oppio, Roma
PuntoZero Architetti
Foto Yara Bonanni, Stylist Alessandra Orzali
Appartamento sul Colle Oppio, Roma
PuntoZero Architetti
Foto Yara Bonanni, Stylist Alessandra Orzali
Appartamento sul Colle Oppio, Roma
PuntoZero Architetti
Foto Yara Bonanni, Stylist Alessandra Orzali
Appartamento sul Colle Oppio, Roma
PuntoZero Architetti
Foto Yara Bonanni, Stylist Alessandra Orzali
Appartamento sul Colle Oppio, Roma
PuntoZero Architetti
Foto Yara Bonanni, Stylist Alessandra Orzali
Appartamento sul Colle Oppio, Roma
PuntoZero Architetti
Foto Yara Bonanni, Stylist Alessandra Orzali
Appartamento sul Colle Oppio, Roma
PuntoZero Architetti
Foto Yara Bonanni, Stylist Alessandra Orzali
Appartamento sul Colle Oppio, Roma
PuntoZero Architetti
Foto Yara Bonanni, Stylist Alessandra Orzali
La ristrutturazione di un appartamento sul Colle Oppio, a Roma, ha permesso allo studio PuntoZero di creare l’atmosfera di buen retiro cercata dai committenti combinando suggestioni cromatiche tipicamente locali con una matericità di forme elegante e sobria. Leggi l’articolo completo
Casa Maz a Palermo, da sartoria ad appartamento
View gallery
Una casa un tempo adibita a sartoria, nel centro di Palermo, è stata trasformata in un appartamento aperto e luminoso. Le nuove aggiunte architettoniche di Casa Maz firmate da La Leta Architettura si distinguono per le linee nette, quasi severe, e dialogano con le preesistenze storiche come il pavimento di maiolica e graniglia colorata, che è stato preservato, e i soffitti caratterizzati da volte a padiglione. Leggi l’articolo completo
Una ristrutturazione a Madrid segue una logica matematica
View gallery
P+S Estudio de Arquitectura (Francisco Parada e Laura R. Salvador), Multiple House
Foto Imagen Subliminal (Miguel de Guzmán + Rocío Romero)
P+S Estudio de Arquitectura (Francisco Parada e Laura R. Salvador), Multiple House
Foto Imagen Subliminal (Miguel de Guzmán + Rocío Romero)
P+S Estudio de Arquitectura (Francisco Parada e Laura R. Salvador), Multiple House
Foto Imagen Subliminal (Miguel de Guzmán + Rocío Romero)
P+S Estudio de Arquitectura (Francisco Parada e Laura R. Salvador), Multiple House
Foto Imagen Subliminal (Miguel de Guzmán + Rocío Romero)
P+S Estudio de Arquitectura (Francisco Parada e Laura R. Salvador), Multiple House
Foto Imagen Subliminal (Miguel de Guzmán + Rocío Romero)
P+S Estudio de Arquitectura (Francisco Parada e Laura R. Salvador), Multiple House
Foto Imagen Subliminal (Miguel de Guzmán + Rocío Romero)
P+S Estudio de Arquitectura (Francisco Parada e Laura R. Salvador), Multiple House
Foto Imagen Subliminal (Miguel de Guzmán + Rocío Romero)
P+S Estudio de Arquitectura (Francisco Parada e Laura R. Salvador), Multiple House
Foto Imagen Subliminal (Miguel de Guzmán + Rocío Romero)
P+S Estudio de Arquitectura (Francisco Parada e Laura R. Salvador), Multiple House
Foto Imagen Subliminal (Miguel de Guzmán + Rocío Romero)
P+S Estudio de Arquitectura (Francisco Parada e Laura R. Salvador), Multiple House
Foto Imagen Subliminal (Miguel de Guzmán + Rocío Romero)
P+S Estudio de Arquitectura (Francisco Parada e Laura R. Salvador), Multiple House
Foto Imagen Subliminal (Miguel de Guzmán + Rocío Romero)
P+S Estudio de Arquitectura (Francisco Parada e Laura R. Salvador), Multiple House
Foto Imagen Subliminal (Miguel de Guzmán + Rocío Romero)
P+S Estudio de Arquitectura (Francisco Parada e Laura R. Salvador), Multiple House
Foto Imagen Subliminal (Miguel de Guzmán + Rocío Romero)
P+S Estudio de Arquitectura (Francisco Parada e Laura R. Salvador), Multiple House
Foto Imagen Subliminal (Miguel de Guzmán + Rocío Romero)
P+S Estudio de Arquitectura (Francisco Parada e Laura R. Salvador), Multiple House
Foto Imagen Subliminal (Miguel de Guzmán + Rocío Romero)
P+S Estudio de Arquitectura (Francisco Parada e Laura R. Salvador), Multiple House
Foto Imagen Subliminal (Miguel de Guzmán + Rocío Romero)
P+S Estudio de Arquitectura (Francisco Parada e Laura R. Salvador), Multiple House
Foto Imagen Subliminal (Miguel de Guzmán + Rocío Romero)
P+S Estudio de Arquitectura (Francisco Parada e Laura R. Salvador), Multiple House
Foto Imagen Subliminal (Miguel de Guzmán + Rocío Romero)
P+S Estudio de Arquitectura (Francisco Parada e Laura R. Salvador), Multiple House
Foto Imagen Subliminal (Miguel de Guzmán + Rocío Romero)
P+S Estudio de Arquitectura (Francisco Parada e Laura R. Salvador), Multiple House
Foto Imagen Subliminal (Miguel de Guzmán + Rocío Romero)
P+S Estudio de Arquitectura (Francisco Parada e Laura R. Salvador), Multiple House
Foto Imagen Subliminal (Miguel de Guzmán + Rocío Romero)
P+S Estudio de Arquitectura (Francisco Parada e Laura R. Salvador), Multiple House
Dettagli, letto pieghevole.
Foto Imagen Subliminal (Miguel de Guzmán + Rocío Romero)
P+S Estudio de Arquitectura (Francisco Parada e Laura R. Salvador), Multiple House
Assonometria.
Foto Imagen Subliminal (Miguel de Guzmán + Rocío Romero)
P+S Estudio de Arquitectura (Francisco Parada e Laura R. Salvador), Multiple House
Sezione.
Foto Imagen Subliminal (Miguel de Guzmán + Rocío Romero)
P+S Estudio de Arquitectura (Francisco Parada e Laura R. Salvador), Multiple House
Pianta originale.
Foto Imagen Subliminal (Miguel de Guzmán + Rocío Romero)
P+S Estudio de Arquitectura (Francisco Parada e Laura R. Salvador), Multiple House
Foto Imagen Subliminal (Miguel de Guzmán + Rocío Romero)
P+S Estudio de Arquitectura (Francisco Parada e Laura R. Salvador), Multiple House
Foto Imagen Subliminal (Miguel de Guzmán + Rocío Romero)
P+S Estudio de Arquitectura (Francisco Parada e Laura R. Salvador), Multiple House
Foto Imagen Subliminal (Miguel de Guzmán + Rocío Romero)
P+S Estudio de Arquitectura (Francisco Parada e Laura R. Salvador), Multiple House
Foto Imagen Subliminal (Miguel de Guzmán + Rocío Romero)
P+S Estudio de Arquitectura (Francisco Parada e Laura R. Salvador), Multiple House
Foto Imagen Subliminal (Miguel de Guzmán + Rocío Romero)
P+S Estudio de Arquitectura (Francisco Parada e Laura R. Salvador), Multiple House
Foto Imagen Subliminal (Miguel de Guzmán + Rocío Romero)
P+S Estudio de Arquitectura (Francisco Parada e Laura R. Salvador), Multiple House
Foto Imagen Subliminal (Miguel de Guzmán + Rocío Romero)
P+S Estudio de Arquitectura (Francisco Parada e Laura R. Salvador), Multiple House
Foto Imagen Subliminal (Miguel de Guzmán + Rocío Romero)
P+S Estudio de Arquitectura (Francisco Parada e Laura R. Salvador), Multiple House
Foto Imagen Subliminal (Miguel de Guzmán + Rocío Romero)
P+S Estudio de Arquitectura (Francisco Parada e Laura R. Salvador), Multiple House
Foto Imagen Subliminal (Miguel de Guzmán + Rocío Romero)
P+S Estudio de Arquitectura (Francisco Parada e Laura R. Salvador), Multiple House
Foto Imagen Subliminal (Miguel de Guzmán + Rocío Romero)
P+S Estudio de Arquitectura (Francisco Parada e Laura R. Salvador), Multiple House
Foto Imagen Subliminal (Miguel de Guzmán + Rocío Romero)
P+S Estudio de Arquitectura (Francisco Parada e Laura R. Salvador), Multiple House
Foto Imagen Subliminal (Miguel de Guzmán + Rocío Romero)
P+S Estudio de Arquitectura (Francisco Parada e Laura R. Salvador), Multiple House
Foto Imagen Subliminal (Miguel de Guzmán + Rocío Romero)
P+S Estudio de Arquitectura (Francisco Parada e Laura R. Salvador), Multiple House
Foto Imagen Subliminal (Miguel de Guzmán + Rocío Romero)
P+S Estudio de Arquitectura (Francisco Parada e Laura R. Salvador), Multiple House
Foto Imagen Subliminal (Miguel de Guzmán + Rocío Romero)
P+S Estudio de Arquitectura (Francisco Parada e Laura R. Salvador), Multiple House
Foto Imagen Subliminal (Miguel de Guzmán + Rocío Romero)
P+S Estudio de Arquitectura (Francisco Parada e Laura R. Salvador), Multiple House
Foto Imagen Subliminal (Miguel de Guzmán + Rocío Romero)
P+S Estudio de Arquitectura (Francisco Parada e Laura R. Salvador), Multiple House
Foto Imagen Subliminal (Miguel de Guzmán + Rocío Romero)
P+S Estudio de Arquitectura (Francisco Parada e Laura R. Salvador), Multiple House
Foto Imagen Subliminal (Miguel de Guzmán + Rocío Romero)
P+S Estudio de Arquitectura (Francisco Parada e Laura R. Salvador), Multiple House
Foto Imagen Subliminal (Miguel de Guzmán + Rocío Romero)
P+S Estudio de Arquitectura (Francisco Parada e Laura R. Salvador), Multiple House
Dettagli, letto pieghevole.
Foto Imagen Subliminal (Miguel de Guzmán + Rocío Romero)
P+S Estudio de Arquitectura (Francisco Parada e Laura R. Salvador), Multiple House
Assonometria.
Foto Imagen Subliminal (Miguel de Guzmán + Rocío Romero)
P+S Estudio de Arquitectura (Francisco Parada e Laura R. Salvador), Multiple House
Sezione.
Foto Imagen Subliminal (Miguel de Guzmán + Rocío Romero)
P+S Estudio de Arquitectura (Francisco Parada e Laura R. Salvador), Multiple House
Pianta originale.
Foto Imagen Subliminal (Miguel de Guzmán + Rocío Romero)
Un appartamento ristrutturato nel centro storico di Madrid segue una logica matematica che lo rende funzionale nonostante le piccole dimensioni. Lo spazio di 45 mq, progetto di P+S Estudio de Arquitectura (Francisco Parada e Laura R. Salvador) esprime l’idea che la casa può funzionare come un multiplo di se stessa e quindi moltiplicare le funzioni all’interno delle varie aree. Leggi l’articolo completo
La ristrutturazione austera di una casa in Catalogna
View gallery
Vallribera Arquitectes, 105JON – Ristrutturazione di una casa a schiera, Vallès, Barcellona, 2020
Foto: José Hevia
Disegni: Vallribera Arquitectes
Vallribera Arquitectes, 105JON – Ristrutturazione di una casa a schiera, Vallès, Barcellona, 2020
Foto: José Hevia
Disegni: Vallribera Arquitectes
Vallribera Arquitectes, 105JON – Ristrutturazione di una casa a schiera, Vallès, Barcellona, 2020
Foto: José Hevia
Disegni: Vallribera Arquitectes
Vallribera Arquitectes, 105JON – Ristrutturazione di una casa a schiera, Vallès, Barcellona, 2020
Foto: José Hevia
Disegni: Vallribera Arquitectes
Vallribera Arquitectes, 105JON – Ristrutturazione di una casa a schiera, Vallès, Barcellona, 2020
Foto: José Hevia
Disegni: Vallribera Arquitectes
Vallribera Arquitectes, 105JON – Ristrutturazione di una casa a schiera, Vallès, Barcellona, 2020
Foto: José Hevia
Disegni: Vallribera Arquitectes
Vallribera Arquitectes, 105JON – Ristrutturazione di una casa a schiera, Vallès, Barcellona, 2020
Foto: José Hevia
Disegni: Vallribera Arquitectes
Vallribera Arquitectes, 105JON – Ristrutturazione di una casa a schiera, Vallès, Barcellona, 2020
Foto: José Hevia
Disegni: Vallribera Arquitectes
Vallribera Arquitectes, 105JON – Ristrutturazione di una casa a schiera, Vallès, Barcellona, 2020
Foto: José Hevia
Disegni: Vallribera Arquitectes
Vallribera Arquitectes, 105JON – Ristrutturazione di una casa a schiera, Vallès, Barcellona, 2020
Foto: José Hevia
Disegni: Vallribera Arquitectes
Vallribera Arquitectes, 105JON – Ristrutturazione di una casa a schiera, Vallès, Barcellona, 2020
Foto: José Hevia
Disegni: Vallribera Arquitectes
Vallribera Arquitectes, 105JON – Ristrutturazione di una casa a schiera, Vallès, Barcellona, 2020
Foto: José Hevia
Disegni: Vallribera Arquitectes
Vallribera Arquitectes, 105JON – Ristrutturazione di una casa a schiera, Vallès, Barcellona, 2020
Foto: José Hevia
Disegni: Vallribera Arquitectes
Vallribera Arquitectes, 105JON – Ristrutturazione di una casa a schiera, Vallès, Barcellona, 2020
Foto: José Hevia
Disegni: Vallribera Arquitectes
Vallribera Arquitectes, 105JON – Ristrutturazione di una casa a schiera, Vallès, Barcellona, 2020
Foto: José Hevia
Disegni: Vallribera Arquitectes
Vallribera Arquitectes, 105JON – Ristrutturazione di una casa a schiera, Vallès, Barcellona, 2020
Foto: José Hevia
Disegni: Vallribera Arquitectes
\\Vallribera\servidor\_PROJECTES\105-JON\VA_2.0\TREBALL\105JON_Planta Secció i Emplaçament EMPLAÇAMENT (1)
Vallribera Arquitectes, 105JON – Ristrutturazione di una casa a schiera, Vallès, Barcellona, 2020
Foto: José Hevia
Disegni: Vallribera Arquitectes
\\Vallribera\servidor\_PROJECTES\105-JON\VA_2.0\TREBALL\105JON_Planta Secció i Emplaçament PLANTES (1)
Vallribera Arquitectes, 105JON – Ristrutturazione di una casa a schiera, Vallès, Barcellona, 2020
Foto: José Hevia
Disegni: Vallribera Arquitectes
Vallribera Arquitectes, 105JON – Ristrutturazione di una casa a schiera, Vallès, Barcellona, 2020
Foto: José Hevia
Disegni: Vallribera Arquitectes
Vallribera Arquitectes, 105JON – Ristrutturazione di una casa a schiera, Vallès, Barcellona, 2020
Foto: José Hevia
Disegni: Vallribera Arquitectes
Vallribera Arquitectes, 105JON – Ristrutturazione di una casa a schiera, Vallès, Barcellona, 2020
Foto: José Hevia
Disegni: Vallribera Arquitectes
Vallribera Arquitectes, 105JON – Ristrutturazione di una casa a schiera, Vallès, Barcellona, 2020
Foto: José Hevia
Disegni: Vallribera Arquitectes
Vallribera Arquitectes, 105JON – Ristrutturazione di una casa a schiera, Vallès, Barcellona, 2020
Foto: José Hevia
Disegni: Vallribera Arquitectes
Vallribera Arquitectes, 105JON – Ristrutturazione di una casa a schiera, Vallès, Barcellona, 2020
Foto: José Hevia
Disegni: Vallribera Arquitectes
Vallribera Arquitectes, 105JON – Ristrutturazione di una casa a schiera, Vallès, Barcellona, 2020
Foto: José Hevia
Disegni: Vallribera Arquitectes
Vallribera Arquitectes, 105JON – Ristrutturazione di una casa a schiera, Vallès, Barcellona, 2020
Foto: José Hevia
Disegni: Vallribera Arquitectes
Vallribera Arquitectes, 105JON – Ristrutturazione di una casa a schiera, Vallès, Barcellona, 2020
Foto: José Hevia
Disegni: Vallribera Arquitectes
Vallribera Arquitectes, 105JON – Ristrutturazione di una casa a schiera, Vallès, Barcellona, 2020
Foto: José Hevia
Disegni: Vallribera Arquitectes
Vallribera Arquitectes, 105JON – Ristrutturazione di una casa a schiera, Vallès, Barcellona, 2020
Foto: José Hevia
Disegni: Vallribera Arquitectes
Vallribera Arquitectes, 105JON – Ristrutturazione di una casa a schiera, Vallès, Barcellona, 2020
Foto: José Hevia
Disegni: Vallribera Arquitectes
Vallribera Arquitectes, 105JON – Ristrutturazione di una casa a schiera, Vallès, Barcellona, 2020
Foto: José Hevia
Disegni: Vallribera Arquitectes
Vallribera Arquitectes, 105JON – Ristrutturazione di una casa a schiera, Vallès, Barcellona, 2020
Foto: José Hevia
Disegni: Vallribera Arquitectes
Vallribera Arquitectes, 105JON – Ristrutturazione di una casa a schiera, Vallès, Barcellona, 2020
Foto: José Hevia
Disegni: Vallribera Arquitectes
Vallribera Arquitectes, 105JON – Ristrutturazione di una casa a schiera, Vallès, Barcellona, 2020
Foto: José Hevia
Disegni: Vallribera Arquitectes
\\Vallribera\servidor\_PROJECTES\105-JON\VA_2.0\TREBALL\105JON_Planta Secció i Emplaçament EMPLAÇAMENT (1)
Vallribera Arquitectes, 105JON – Ristrutturazione di una casa a schiera, Vallès, Barcellona, 2020
Foto: José Hevia
Disegni: Vallribera Arquitectes
\\Vallribera\servidor\_PROJECTES\105-JON\VA_2.0\TREBALL\105JON_Planta Secció i Emplaçament PLANTES (1)
Vallribera Arquitectes, 105JON – Ristrutturazione di una casa a schiera, Vallès, Barcellona, 2020
Foto: José Hevia
Disegni: Vallribera Arquitectes
Di ristrutturazioni come quella realizzata dallo studio Vallribera Arquitectes ultimamente se ne vedono parecchie, soprattutto a Barcellona e in Catalogna. Lo “stile” è facilmente riconoscibile: valorizzare i materiali da costruzione esistenti come i mattoni delle pareti o il legno del soffitto permette sia di ridurre i costi dell’opera sia di caratterizzare lo spazio. Leggi l'articolo completo
In Belgio un loft dalle pareti grezze con vista panoramica
View gallery
Brutalist duplex apartement in de Riverside Tower
Foto Matthijs van der Burgt
Foto Olmo Peeters
Brutalist duplex apartement in de Riverside Tower
Foto Matthijs van der Burgt
Foto Olmo Peeters
Brutalist duplex apartement in de Riverside Tower
Foto Matthijs van der Burgt
Foto Olmo Peeters
Brutalist duplex apartement in de Riverside Tower
Pianta del primo livello.
Foto Olmo Peeters
Brutalist duplex apartement in de Riverside Tower
Pianta del secondo livello.
Foto Olmo Peeters
Brutalist duplex apartement in de Riverside Tower
Foto Matthijs van der Burgt
Foto Olmo Peeters
Brutalist duplex apartement in de Riverside Tower
Foto Matthijs van der Burgt
Foto Olmo Peeters
Brutalist duplex apartement in de Riverside Tower
Foto Matthijs van der Burgt
Foto Olmo Peeters
Brutalist duplex apartement in de Riverside Tower
Pianta del primo livello.
Foto Olmo Peeters
Brutalist duplex apartement in de Riverside Tower
Pianta del secondo livello.
Foto Olmo Peeters
L’appartamento su due piani situato all’interno della Riverside Tower – edificio degli anni ‘70 progettato da Leon Stynen & Paul De Meyer sul fiume Scheldt, nei pressi di Antwerp –, è un ampio open space con vista panoramica. Lo spazio al 13. piano è stato ristrutturato da Bram Van Cauter di Studio Okami Architects, abbattendo i muri esistenti e togliendo i rivestimenti di pareti e soffitto per lasciare visibile la texture grezza del cemento. Leggi l’articolo completo
Una casa di 5x5 metri vicino a Barcellona
View gallery
Twobo Arquitectura, Casa 5x5, Arenys de Mar, Spagna, 2021
Foto: José Hevia
Disegni: Twobo
Twobo Arquitectura, Casa 5x5, Arenys de Mar, Spagna, 2021
Foto: José Hevia
Disegni: Twobo
Twobo Arquitectura, Casa 5x5, Arenys de Mar, Spagna, 2021
Foto: José Hevia
Disegni: Twobo
Twobo Arquitectura, Casa 5x5, Arenys de Mar, Spagna, 2021
Foto: José Hevia
Disegni: Twobo
Twobo Arquitectura, Casa 5x5, Arenys de Mar, Spagna, 2021
Foto: José Hevia
Disegni: Twobo
Twobo Arquitectura, Casa 5x5, Arenys de Mar, Spagna, 2021
Foto: José Hevia
Disegni: Twobo
Twobo Arquitectura, Casa 5x5, Arenys de Mar, Spagna, 2021
Foto: José Hevia
Disegni: Twobo
Twobo Arquitectura, Casa 5x5, Arenys de Mar, Spagna, 2021
Foto: José Hevia
Disegni: Twobo
Twobo Arquitectura, Casa 5x5, Arenys de Mar, Spagna, 2021
Foto: José Hevia
Disegni: Twobo
Twobo Arquitectura, Casa 5x5, Arenys de Mar, Spagna, 2021
Foto: José Hevia
Disegni: Twobo
Twobo Arquitectura, Casa 5x5, Arenys de Mar, Spagna, 2021
Foto: José Hevia
Disegni: Twobo
Twobo Arquitectura, Casa 5x5, Arenys de Mar, Spagna, 2021
Foto: José Hevia
Disegni: Twobo
Twobo Arquitectura, Casa 5x5, Arenys de Mar, Spagna, 2021
Foto: José Hevia
Disegni: Twobo
Twobo Arquitectura, Casa 5x5, Arenys de Mar, Spagna, 2021
Foto: José Hevia
Disegni: Twobo
Twobo Arquitectura, Casa 5x5, Arenys de Mar, Spagna, 2021
Foto: José Hevia
Disegni: Twobo
Twobo Arquitectura, Casa 5x5, Arenys de Mar, Spagna, 2021
Foto: José Hevia
Disegni: Twobo
Twobo Arquitectura, Casa 5x5, Arenys de Mar, Spagna, 2021
Foto: José Hevia
Disegni: Twobo
Twobo Arquitectura, Casa 5x5, Arenys de Mar, Spagna, 2021
Foto: José Hevia
Disegni: Twobo
Twobo Arquitectura, Casa 5x5, Arenys de Mar, Spagna, 2021
Foto: José Hevia
Disegni: Twobo
Twobo Arquitectura, Casa 5x5, Arenys de Mar, Spagna, 2021
Foto: José Hevia
Disegni: Twobo
Twobo Arquitectura, Casa 5x5, Arenys de Mar, Spagna, 2021
Foto: José Hevia
Disegni: Twobo
Twobo Arquitectura, Casa 5x5, Arenys de Mar, Spagna, 2021
Foto: José Hevia
Disegni: Twobo
Twobo Arquitectura, Casa 5x5, Arenys de Mar, Spagna, 2021
Foto: José Hevia
Disegni: Twobo
Twobo Arquitectura, Casa 5x5, Arenys de Mar, Spagna, 2021
Foto: José Hevia
Disegni: Twobo
Twobo Arquitectura, Casa 5x5, Arenys de Mar, Spagna, 2021
Foto: José Hevia
Disegni: Twobo
Twobo Arquitectura, Casa 5x5, Arenys de Mar, Spagna, 2021
Foto: José Hevia
Disegni: Twobo
Twobo Arquitectura, Casa 5x5, Arenys de Mar, Spagna, 2021
Foto: José Hevia
Disegni: Twobo
Twobo Arquitectura, Casa 5x5, Arenys de Mar, Spagna, 2021
Foto: José Hevia
Disegni: Twobo
Twobo Arquitectura, Casa 5x5, Arenys de Mar, Spagna, 2021
Foto: José Hevia
Disegni: Twobo
Twobo Arquitectura, Casa 5x5, Arenys de Mar, Spagna, 2021
Foto: José Hevia
Disegni: Twobo
Gli architetti dello studio Twobo non vogliono cancellare la storia di abbandono di una piccola casa nel centro della città di Arenys de Mar, sulla costa a nord di Barcellona. Il loro progetto si concentra su uno spazio su più livelli ma con una pianta di soli 5x5 metri, completamente chiuso su tre lati e che affaccia su una strada molto stretta, di soli 3 metri di larghezza. Leggi l’articolo completo
A Roma un appartamento trasformato in un open space dai tagli geometrici
View gallery
Un appartamento nel quartiere Casal Palocco di Roma, all’interno del complesso Le Terrazze degli anni ‘70, è stato ristrutturato trasformando la sequenza delle sue piccole stanze in un open space. Progettata da Studio Strato (Martino Fraschetti e Vincenzo Tattolo), Itaca House si caratterizza per le figure geometriche semplici che nello spazio danno forma ad ambienti complessi. Leggi l’articolo completo
Un mini loft in Francia rimanda a videogiochi, fumetti e serie tv
View gallery
Situato in un vecchio edificio industriale della città di Bagnolet, nei pressi di Parigi, un mini loft è stato ristrutturato proponendo cromie accese e ambienti giocosi. Zyva Studio ha sperimentato con varie geometrie, motivi grafici e materiali. Leggi l’articolo completo
Una casa giapponese ospita un atelier d’arte
View gallery
Situata a Okayama City, una tradizionale casa giapponese con tetto di paglia – il caratteristico Minka – è stata ristrutturata per una famiglia di quattro persone. Le linee pulite e gli ambienti discreti sono il risultato di un attento lavoro di studio Raumus, che ha rivoluzionato gli spazi dividendoli in aree funzionali e preservando al tempo stesso i tratti preesistenti. Leggi l’articolo completo
Minimalismo soft per un resort stellato nella campagna svedese
View gallery
Immersa nel paesaggio rurale del sud-ovest svedese, un po’ inglese e un po’ toscano per livello di antropizzazione e di cura, Ästad Vingård è un resort di fascia alta che associa una serie di programmi non scontata, soprattutto a queste latitudini: una spa, camere e bungalow, una vigna, un bistrot e ANG, un nuovo ristorante con stella Michelin. Leggi l’articolo completo
TiTi Palacio, il locale parigino in stile Gen Z che si ispira al Crystal Palace
View gallery
Progetto emblematico tra le riqualificazioni recentemente portate a termine a Parigi sotto l’egida pubblica, Morland Mixité Capital ha cambiato il volto della vecchia prefettura cittadina – un edificio razionalista anni ’60 caratterizzato da una facciata a griglia, da molti considerato tra i più austeri della capitale – all’insegna della pianificazione urbana a uso misto. Leggi l’articolo completo
