Per il 2023, come fisiologicamente potrebbe essere per gli anni a venire, la selezione degli interni è sempre più vicina a quella delle ristrutturazioni, delle renovations andrebbe detto con un termine più ampio, che abbraccia soprattutto il concetto di riuso. Sempre più raramente sono i progetti ex novo a dettare le tendenze, mentre gli interventi di riuso mostrano due fatti rilevanti: la possibilità dell’architettura di nascere anche là dove non si sviluppano nuove volumetrie – l’architettura di interni esiste, ed è sanissima – e la capacità intrinseca agli spazi esistenti di evolvere con l’evolvere delle persone e della storia che queste si trovano a vivere. Abitazioni trasformate da nuovi “volumi inquilini” col budget di un rifacimento parquet, allestimenti riciclabili in chiese rinascimentali, miniappartamenti dentro megastrutture di Niemeyer, contemporaneo e razionalismo nella stessa cucina: da tutto il mondo, abbiamo selezionato storie di interni in evoluzione.
Un appartamento rinnovato con 10mila euro a Barcellona
View gallery
Lo studio di architettura spagnolo Takk ha completato la ristrutturazione di un appartamento di 50 mq situato a Barcellona con un budget per l’esecuzione materiale totale di soli 10.000 euro. Dopo già diversi esperimenti di ridefinizione dello spazio domestico, lo studio si è orientato nelle scelte con l’obiettivo di aggiornare la casa verso nuovi modelli di utilizzo e di consapevolezza ambientale nel quadro dell'attuale crisi energetica e dei cambiamenti climatici. Continua a leggere
Abitare l’architettura di Niemeyer: un appartamento ristrutturato a Belo Horizonte
View gallery
Biri, Ristrutturazione dell’appartamento nel JK, Belo Horizonte, Brasile 2023
Foto Jomar Bragança
Biri, Ristrutturazione dell’appartamento nel JK, Belo Horizonte, Brasile 2023
Foto Jomar Bragança
Biri, Ristrutturazione dell’appartamento nel JK, Belo Horizonte, Brasile 2023
Foto Jomar Bragança
Biri, Ristrutturazione dell’appartamento nel JK, Belo Horizonte, Brasile 2023
Foto Jomar Bragança
Biri, Ristrutturazione dell’appartamento nel JK, Belo Horizonte, Brasile 2023
Foto Jomar Bragança
Biri, Ristrutturazione dell’appartamento nel JK, Belo Horizonte, Brasile 2023
Foto Jomar Bragança
Biri, Ristrutturazione dell’appartamento nel JK, Belo Horizonte, Brasile 2023
Foto Jomar Bragança
Biri, Ristrutturazione dell’appartamento nel JK, Belo Horizonte, Brasile 2023
Foto Jomar Bragança
Biri, Ristrutturazione dell’appartamento nel JK, Belo Horizonte, Brasile 2023
Foto Jomar Bragança
Biri, Ristrutturazione dell’appartamento nel JK, Belo Horizonte, Brasile 2023
Foto Jomar Bragança
Biri, Ristrutturazione dell’appartamento nel JK, Belo Horizonte, Brasile 2023
Foto Jomar Bragança
Biri, Ristrutturazione dell’appartamento nel JK, Belo Horizonte, Brasile 2023
Foto Jomar Bragança
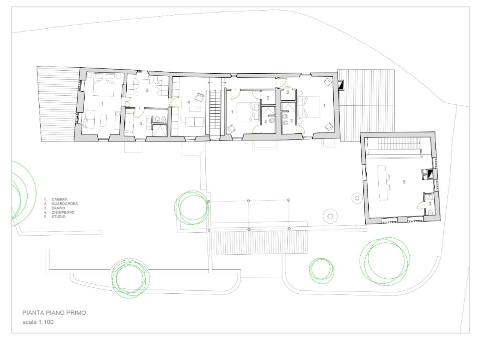
BIRI, Ristrutturazione dell’appartamento nel JK, Belo Horizonte, Brasile 2023.
Elaborato di progetto
BIRI, Ristrutturazione dell’appartamento nel JK, Belo Horizonte, Brasile 2023.
Elaborato di progetto
BIRI, Ristrutturazione dell’appartamento nel JK, Belo Horizonte, Brasile 2023.
Elaborato di progetto
BIRI, Ristrutturazione dell’appartamento nel JK, Belo Horizonte, Brasile 2023.
Elaborato di progetto
BIRI, Ristrutturazione dell’appartamento nel JK, Belo Horizonte, Brasile 2023.
Elaborato di progetto
BIRI, Ristrutturazione dell’appartamento nel JK, Belo Horizonte, Brasile 2023.
Elaborato di progetto
Biri, Ristrutturazione dell’appartamento nel JK, Belo Horizonte, Brasile 2023
Foto Jomar Bragança
Biri, Ristrutturazione dell’appartamento nel JK, Belo Horizonte, Brasile 2023
Foto Jomar Bragança
Biri, Ristrutturazione dell’appartamento nel JK, Belo Horizonte, Brasile 2023
Foto Jomar Bragança
Biri, Ristrutturazione dell’appartamento nel JK, Belo Horizonte, Brasile 2023
Foto Jomar Bragança
Biri, Ristrutturazione dell’appartamento nel JK, Belo Horizonte, Brasile 2023
Foto Jomar Bragança
Biri, Ristrutturazione dell’appartamento nel JK, Belo Horizonte, Brasile 2023
Foto Jomar Bragança
Biri, Ristrutturazione dell’appartamento nel JK, Belo Horizonte, Brasile 2023
Foto Jomar Bragança
Biri, Ristrutturazione dell’appartamento nel JK, Belo Horizonte, Brasile 2023
Foto Jomar Bragança
Biri, Ristrutturazione dell’appartamento nel JK, Belo Horizonte, Brasile 2023
Foto Jomar Bragança
Biri, Ristrutturazione dell’appartamento nel JK, Belo Horizonte, Brasile 2023
Foto Jomar Bragança
Biri, Ristrutturazione dell’appartamento nel JK, Belo Horizonte, Brasile 2023
Foto Jomar Bragança
Biri, Ristrutturazione dell’appartamento nel JK, Belo Horizonte, Brasile 2023
Foto Jomar Bragança
BIRI, Ristrutturazione dell’appartamento nel JK, Belo Horizonte, Brasile 2023.
Elaborato di progetto
BIRI, Ristrutturazione dell’appartamento nel JK, Belo Horizonte, Brasile 2023.
Elaborato di progetto
BIRI, Ristrutturazione dell’appartamento nel JK, Belo Horizonte, Brasile 2023.
Elaborato di progetto
BIRI, Ristrutturazione dell’appartamento nel JK, Belo Horizonte, Brasile 2023.
Elaborato di progetto
BIRI, Ristrutturazione dell’appartamento nel JK, Belo Horizonte, Brasile 2023.
Elaborato di progetto
BIRI, Ristrutturazione dell’appartamento nel JK, Belo Horizonte, Brasile 2023.
Elaborato di progetto
Lo studio brasiliano Biri ha portato a compimento la ristrutturazione di un appartamento nel Juscelino Kubitschek, un complesso abitativo progettato da Oscar Niemeyer più di settanta anni fa. Il progetto mostra un possibile approccio al patrimonio del Moderno, con scelte (e compromessi) che danno vita a un delicato equilibrio tra valori storici e valori d’uso di riegeliana memoria. Continua a leggere
Dialogare col razionalismo in un appartamento a Padova
View gallery
Nella casa As Serena Vianello e Tommaso Gasparin hanno ricercato un’abitazione luminosa e funzionale, a partire dalla ristrutturazione di un appartamento a Padova, dentro un edificio razionalista del 1935, progettato dall’ingegnere Gino Briani. Il progetto di interni, rispetto allo stato di fatto, propone una nuova distribuzione spaziale che permette agli ambienti di dialogare e alla luce naturale di inondarli con facilità. Continua a leggere
Flessibile ed economico: un micro appartamento nella Milano contemporanea
View gallery
Tenet, Casa Celeste, Milano, Italia, 2023
Pianta dell’appartamento prima dell’intervento di ristrutturazione
Tenet, Casa Celeste, Milano, Italia, 2023
Pianta dell’appartamento prima dell’intervento di ristrutturazione
Nella città italiana, come in tutte le grandi metropoli del mondo, i modi dell’abitare sono in rapida trasformazione: in un contesto tanto complesso il progetto di Tenet ha ripensato, con un budget contenuto, uno spazio di 45 mq. Continua a leggere
Una casa colonica in Toscana trasformata in un’abitazione
View gallery
architettura-m, Ristrutturazione di una casa colonica, Impruneta, Toscana, 2022
Foto Niccolò Vonci
architettura-m, Ristrutturazione di una casa colonica, Impruneta, Toscana, 2022
Foto Niccolò Vonci
architettura-m, Ristrutturazione di una casa colonica, Impruneta, Toscana, 2022
Foto Niccolò Vonci
architettura-m, Ristrutturazione di una casa colonica, Impruneta, Toscana, 2022
Foto Niccolò Vonci
architettura-m, Ristrutturazione di una casa colonica, Impruneta, Toscana, 2022
Foto Niccolò Vonci
architettura-m, Ristrutturazione di una casa colonica, Impruneta, Toscana, 2022
Foto Niccolò Vonci
architettura-m, Ristrutturazione di una casa colonica, Impruneta, Toscana, 2022
Foto Niccolò Vonci
architettura-m, Ristrutturazione di una casa colonica, Impruneta, Toscana, 2022
Foto Niccolò Vonci
architettura-m, Ristrutturazione di una casa colonica, Impruneta, Toscana, 2022
Foto Niccolò Vonci
architettura-m, Ristrutturazione di una casa colonica, Impruneta, Toscana, 2022
Foto Niccolò Vonci
architettura-m, Ristrutturazione di una casa colonica, Impruneta, Toscana, 2022
Foto Niccolò Vonci
architettura-m, Ristrutturazione di una casa colonica, Impruneta, Toscana, 2022
Foto Niccolò Vonci
architettura-m, Ristrutturazione di una casa colonica, Impruneta, Toscana, 2022
Foto Niccolò Vonci
architettura-m, Ristrutturazione di una casa colonica, Impruneta, Toscana, 2022
Foto Niccolò Vonci
architettura-m, Ristrutturazione di una casa colonica, Impruneta, Toscana, 2022
Foto Niccolò Vonci
architettura-m, Ristrutturazione di una casa colonica, Impruneta, Toscana, 2022
Foto Niccolò Vonci
architettura-m, Ristrutturazione di una casa colonica, Impruneta, Toscana, 2022
Foto Niccolò Vonci
architettura-m, Ristrutturazione di una casa colonica, Impruneta, Toscana, 2022
Foto Niccolò Vonci
architettura-m, Ristrutturazione di una casa colonica, Impruneta, Toscana, 2022
Foto Niccolò Vonci
architettura-m, Ristrutturazione di una casa colonica, Impruneta, Toscana, 2022
Foto Niccolò Vonci
architettura-m, Ristrutturazione di una casa colonica, Impruneta, Toscana, 2022
Foto Niccolò Vonci
architettura-m, Ristrutturazione di una casa colonica, Impruneta, Toscana, 2022
Foto Niccolò Vonci
architettura-m, Ristrutturazione di una casa colonica, Impruneta, Toscana, 2022
Foto Niccolò Vonci
architettura-m, Ristrutturazione di una casa colonica, Impruneta, Toscana, 2022
Foto Niccolò Vonci
architettura-m, Ristrutturazione di una casa colonica, Impruneta, Toscana, 2022
Foto Niccolò Vonci
architettura-m, Ristrutturazione di una casa colonica, Impruneta, Toscana, 2022
Foto Niccolò Vonci
architettura-m, Ristrutturazione di una casa colonica, Impruneta, Toscana, 2022
Pianta del primo piano.
architettura-m, Ristrutturazione di una casa colonica, Impruneta, Toscana, 2022
Foto Niccolò Vonci
architettura-m, Ristrutturazione di una casa colonica, Impruneta, Toscana, 2022
Foto Niccolò Vonci
architettura-m, Ristrutturazione di una casa colonica, Impruneta, Toscana, 2022
Foto Niccolò Vonci
architettura-m, Ristrutturazione di una casa colonica, Impruneta, Toscana, 2022
Foto Niccolò Vonci
architettura-m, Ristrutturazione di una casa colonica, Impruneta, Toscana, 2022
Foto Niccolò Vonci
architettura-m, Ristrutturazione di una casa colonica, Impruneta, Toscana, 2022
Foto Niccolò Vonci
architettura-m, Ristrutturazione di una casa colonica, Impruneta, Toscana, 2022
Foto Niccolò Vonci
architettura-m, Ristrutturazione di una casa colonica, Impruneta, Toscana, 2022
Foto Niccolò Vonci
architettura-m, Ristrutturazione di una casa colonica, Impruneta, Toscana, 2022
Foto Niccolò Vonci
architettura-m, Ristrutturazione di una casa colonica, Impruneta, Toscana, 2022
Foto Niccolò Vonci
architettura-m, Ristrutturazione di una casa colonica, Impruneta, Toscana, 2022
Foto Niccolò Vonci
architettura-m, Ristrutturazione di una casa colonica, Impruneta, Toscana, 2022
Foto Niccolò Vonci
architettura-m, Ristrutturazione di una casa colonica, Impruneta, Toscana, 2022
Foto Niccolò Vonci
architettura-m, Ristrutturazione di una casa colonica, Impruneta, Toscana, 2022
Foto Niccolò Vonci
architettura-m, Ristrutturazione di una casa colonica, Impruneta, Toscana, 2022
Foto Niccolò Vonci
architettura-m, Ristrutturazione di una casa colonica, Impruneta, Toscana, 2022
Foto Niccolò Vonci
architettura-m, Ristrutturazione di una casa colonica, Impruneta, Toscana, 2022
Foto Niccolò Vonci
architettura-m, Ristrutturazione di una casa colonica, Impruneta, Toscana, 2022
Foto Niccolò Vonci
architettura-m, Ristrutturazione di una casa colonica, Impruneta, Toscana, 2022
Foto Niccolò Vonci
architettura-m, Ristrutturazione di una casa colonica, Impruneta, Toscana, 2022
Foto Niccolò Vonci
architettura-m, Ristrutturazione di una casa colonica, Impruneta, Toscana, 2022
Foto Niccolò Vonci
architettura-m, Ristrutturazione di una casa colonica, Impruneta, Toscana, 2022
Foto Niccolò Vonci
architettura-m, Ristrutturazione di una casa colonica, Impruneta, Toscana, 2022
Foto Niccolò Vonci
architettura-m, Ristrutturazione di una casa colonica, Impruneta, Toscana, 2022
Foto Niccolò Vonci
architettura-m, Ristrutturazione di una casa colonica, Impruneta, Toscana, 2022
Foto Niccolò Vonci
architettura-m, Ristrutturazione di una casa colonica, Impruneta, Toscana, 2022
Foto Niccolò Vonci
architettura-m, Ristrutturazione di una casa colonica, Impruneta, Toscana, 2022
Pianta del primo piano.
Una casa colonica con vista sul paesaggio toscano dell’Impruneta, zona nota per la produzione del cotto, è stata trasformata in una residenza versatile e spaziosa. Il corpo di fabbrica originale, un tempo casa del contadino e stalla, era dotato anche di un’aia e di un fienile su due livelli. Architettura-m, che ha firmato il progetto, ha voluto preservare i tratti tipici dell’architettura rurale, intervenendo in particolare negli ambienti interni: lo studio ha puntato a enfatizzare la tradizione locale ma al tempo stesso a eliminare i cliché della casa colonica. Continua a leggere
Un’intuizione scultorea in un appartamento a Milano
View gallery
Articolate attorno ad un dispositivo spaziale che si fonda sulla combinazione di geometrie pure, la tensione tra gli spazi e le sequenze ritmiche sono i tratti che caratterizzano un appartamento nel centro di Milano, recentemente ristutturato da studio Llabb Architettura. Continua a leggere
La luminosa casa di un fotografo, un tempo magazzino industriale
View gallery
Eulalia è la ristrutturazione di un ex magazzino di Madrid, parte della serie di progetti “Elementi per il recupero industriale” curata da Burr Studio con l’obiettivo strategico di riqualificare e valorizzare le strutture industriali del territorio. Ex magazzino ricco di oggetti di diversa tipologia, il progetto di Burr Studio protegge l’edificio dalla demolizione proponendo una ristrutturazione che ben si adatta al suo passato. Continua a leggere
A Verona il nuovo, eclettico volto di un appartamento Liberty
View gallery
Manuel Barbieri e Marco Magalini hanno ristrutturato una residenza di 140 mq preservando gli elementi originali e ispirandosi ai Riad di Marrakech e al razionalismo modernista brasiliano. Continua a leggere
45 metri quadrati flessibili e panoramici: un mini appartamento a Parigi
View gallery
Un mini-appartamento a Parigi è stato ristrutturato dallo studio Hyper Architecture, che ha plasmato uno spazio funzionale e flessibile di 45 mq. L’abitazione si trova al dodicesimo piano della Tour Boucry, denominata Super 18, discreto landmark nello skyline del nord est parigino, progettata nel 1974 da Jean-Robert Delb. L’edificio presenta all’interno una vasta varietà di tipologie abitative, integrandosi perfettamente nella città. Continua a leggere
Una “land of in-between” contemporanea per ampliare una vecchia casa in Belgio
View gallery
Bauclub, BKMN House, Bruxelles, Belgio, 2022.
Elaborato di progetto Stephane De Groef & Bauclub.
Bauclub, BKMN House, Bruxelles, Belgio, 2022.
Elaborato di progetto Stephane De Groef & Bauclub.
Bauclub, BKMN House, Bruxelles, Belgio, 2022.
Elaborato di progetto Stephane De Groef & Bauclub.
Bauclub, BKMN House, Bruxelles, Belgio, 2022.
Elaborato di progetto Stephane De Groef & Bauclub.
Bauclub, BKMN House, Bruxelles, Belgio, 2022.
Elaborato di progetto Stephane De Groef & Bauclub.
Bauclub, BKMN House, Bruxelles, Belgio, 2022.
Elaborato di progetto Stephane De Groef & Bauclub.
Bauclub, BKMN House, Bruxelles, Belgio, 2022.
Elaborato di progetto Stephane De Groef & Bauclub.
Bauclub, BKMN House, Bruxelles, Belgio, 2022.
Elaborato di progetto Stephane De Groef & Bauclub.
Bauclub, BKMN House, Bruxelles, Belgio, 2022.
Elaborato di progetto Stephane De Groef & Bauclub.
Bauclub, BKMN House, Bruxelles, Belgio, 2022.
Elaborato di progetto Stephane De Groef & Bauclub.
La casa Bkmn è l’esito di un progetto di ristrutturazione commissionato allo studio Bauclub con due obiettivi: rafforzare la connessione con il giardino e ottenere spazi più luminosi. L’operazione principale è quindi stata quella di aggiungere una copertura troncopiramidale allo spazio in-between tra interno ed esterno. Continua a leggere
Da vecchia abitazione angusta a spazio versatile che valorizza la sua storia
View gallery
Un appartamento a Barcellona, in un edificio dell’Eixample, è stato ristrutturato valorizzando la pianta stretta che lo caratterizza. La speciale forma super-allungata della casa, data dalla posizione nell’isolato, è stata trasformata attraverso nuove soluzioni e aggiunte mirate che permettono di guadagnare spazio. Continua a leggere
Una casa ripensata da Harquitectes come una foresta di pilastri con una facciata di scale
View gallery
Situata in un quartiere densamente popolato di Barcellona, Casa 1616, la residenza ristrutturata dallo studio catalano Harquitectes guarda verso la strada mantenendo in facciata i suoi caratteri originali, come gli archi e il rivestimento di mattoni. Continua a leggere
Un allestimento di Fosbury Architecture in una chiesa rinascimentale
View gallery
Il progetto temporaneo per il DucatoPrize 2023 ha combinato membrane plastiche e materiali riutilizzabili per volgere un luogo iconico di Piacenza verso una esplorazione più intima delle opere esposte. Continua a leggere
Una ex fabbrica di tessuti in Cina che diventa la sede di un brand di pasticceria
View gallery
Il vecchio edificio in questione era una fabbrica che produceva tessuti di cotone, oggi adattata per inserire gli uffici e il concept store di Lao Ding Feng, noto marchio di pasticceria. Il progetto è stato affidato a Neri&Hu, che ha scelto di fondere passato e presente dando forma a uno spazio poetico ed emozionale. Continua a leggere
Il nuovo flagship di Bershka a Milano firmato da Oma
View gallery
Bershka, Galleria Vittorio Emanuele II
© Photo by Marco Cappelletti, courtesy Bershka and OMA
Bershka, Galleria Vittorio Emanuele II
© Photo by Marco Cappelletti, courtesy Bershka and OMA
Bershka, Galleria Vittorio Emanuele II
© Photo by Marco Cappelletti, courtesy Bershka and OMA
Bershka, Galleria Vittorio Emanuele II
© Photo by Marco Cappelletti, courtesy Bershka and OMA
Bershka, Galleria Vittorio Emanuele II
© Photo by Marco Cappelletti, courtesy Bershka and OMA
Bershka, Galleria Vittorio Emanuele II
© Photo by Marco Cappelletti, courtesy Bershka and OMA
Bershka, Galleria Vittorio Emanuele II
© Photo by Marco Cappelletti, courtesy Bershka and OMA
Bershka, Galleria Vittorio Emanuele II
© Photo by Marco Cappelletti, courtesy Bershka and OMA
Bershka, Galleria Vittorio Emanuele II
© Photo by Marco Cappelletti, courtesy Bershka and OMA
Bershka, Galleria Vittorio Emanuele II
© Photo by Marco Cappelletti, courtesy Bershka and OMA
Bershka, Galleria Vittorio Emanuele II
© Photo by Marco Cappelletti, courtesy Bershka and OMA
Bershka, Galleria Vittorio Emanuele II
© Photo by Marco Cappelletti, courtesy Bershka and OMA
Bershka, Galleria Vittorio Emanuele II
© Photo by Marco Cappelletti, courtesy Bershka and OMA
Bershka, Galleria Vittorio Emanuele II
© Photo by Marco Cappelletti, courtesy Bershka and OMA
Bershka, Galleria Vittorio Emanuele II
© Photo by Marco Cappelletti, courtesy Bershka and OMA
Bershka, Galleria Vittorio Emanuele II
© Photo by Marco Cappelletti, courtesy Bershka and OMA
Bershka, Galleria Vittorio Emanuele II
© Photo by Marco Cappelletti, courtesy Bershka and OMA
Bershka, Galleria Vittorio Emanuele II
© Photo by Marco Cappelletti, courtesy Bershka and OMA
Bershka, Galleria Vittorio Emanuele II
© Photo by Marco Cappelletti, courtesy Bershka and OMA
Bershka, Galleria Vittorio Emanuele II
© Photo by Marco Cappelletti, courtesy Bershka and OMA
Bershka, Galleria Vittorio Emanuele II
© Photo by Marco Cappelletti, courtesy Bershka and OMA
Bershka, Galleria Vittorio Emanuele II
© Photo by Marco Cappelletti, courtesy Bershka and OMA
Lo studio di ricerca Amo, il “centro analitico” dell’Office of Metropolitan Architecture, ha progettato il nuovo negozio del marchio fast fashion nel centro della città. Continua a leggere
