La ristrutturazione di Estudi08014 del piano terra di una struttura costruita nel 1925 nel centro di Terrassa, vicino a Barcellona, è stata condizionata da un budget molto limitato. L'interno, ora trasformato per ospitare un centro per la terapia, è stato trasformato mettendo a nudo la struttura storica, ora spoglia delle stratificazione avvenute nel tempo.
Galleria
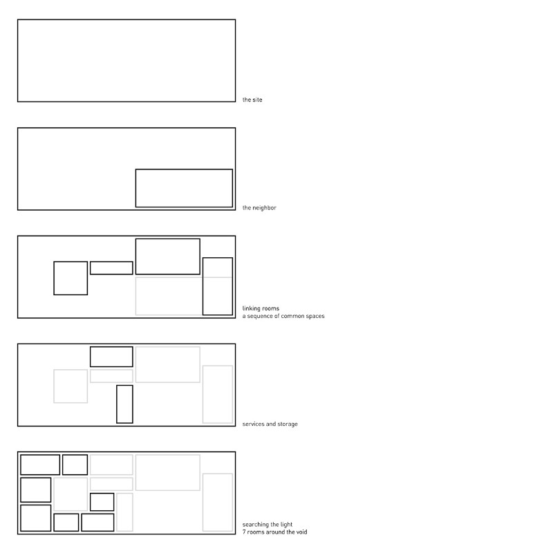
La strategia per la riprogettazione degli interni è consistita nella divisione in quattro spazi concatenati che formano una sequenza. La prima area è concepita come una zona di transizione sul fronte stradale, la seconda è uno spazio aperto utilizzato per attività di gruppo, mentre la terza contiene servizi come cucina abitabile, servizi igienici e deposito. La quarta area è un'aggregazione di sette uffici che guardano verso l'interno, verso uno spazio centrale illuminato da un lucernario. L'intera strategia progettuale risponde alle esigenze funzionali, fornendo luminosità a questo spazio annidato nel tessuto urbano di Terrassa.
- Progetto:
- centro di terapia
- Luogo:
- Ca n'Aurell, Terrassa, Barcellona
- Architetto:
- Estudi08014
- Strutture:
- Xavier Gimferrer
- Consulente per i servizi:
- Silvia Ros
- Programma:
- centro per la terapia
- Completamento:
- 2017
