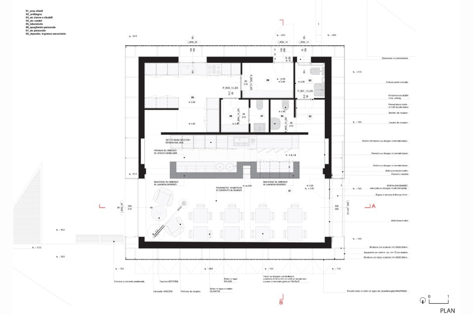
L’involucro funge da parete ventilata e, oltre a schermare gli impianti tecnici (caldaia, macchina esterna del condizionatore, autoclave, antifurto) crea un’intercapedine perimetrale che serve da deposito.
All’interno una quinta smaltata in resina poliuretanica verde divide la zona di lavoro da quella aperta alla clientela. Le travi e i pilastri sono lasciati in calcestruzzo a vista e il pavimento è in battuto di cemento industriale lisciato e trattato con resina trasparente. Il bancone, come un volume pieno, è realizzato in lamiera di ferro mentre tutti gli arredi rimandano a stili vintage retrò.
Galleria
Ecobar, Ragusa
Programma: bar
Architetti: Giuseppe Gurrieri
Collaboratori: Fabrizio Camillieri, Giulia Filetti, Valentina Occhipinti
Completamento: 2015
