Si può dire che il 2023 ci abbia aiutato a dare un contenuto a quell’espressione che altrimenti rischierebbe di suonare abbastanza vaga, che è l’abitare evolutivo. Cos’è? Le case che abbiamo selezionato tra quelle pubblicate lungo il 2023 sono case capaci di trasformarsi lungo il tempo seguendo nuove esigenze e storie, sono progetti di riuso – di nuovo, come per gli interni, ci avviciniamo al concetto ampio di renovation – ma soprattutto sono progetti che instaurano dialoghi di tipo nuovo tra interni ed esterni, tra l’insediamento umano e tutte le altre componenti di quella che chiamiamo natura: il suolo, la vegetazione, la foresta, gli animali. Si sfumano i confini, e scorrendo la selezione il centro della scena si sposta sempre di più dall’umano verso altri attori: di sicuro non un discorso compiuto e chiuso, anzi un tema più che mai da esplorare, come esploreremo le case dei prossimi anni.
Argentina: brutalismo “resistente” tra le montagne
View gallery
Agustín Berzero, Manuel González Veglia (TECTUM), Casa Taller, La Paisanita, Córdoba, Argentina 2021
Foto Federico Cairoli
Agustín Berzero, Manuel González Veglia (TECTUM), Casa Taller, La Paisanita, Córdoba, Argentina 2021
Foto Federico Cairoli
Agustín Berzero, Manuel González Veglia (TECTUM), Casa Taller, La Paisanita, Córdoba, Argentina 2021
Foto Federico Cairoli
Agustín Berzero, Manuel González Veglia (TECTUM), Casa Taller, La Paisanita, Córdoba, Argentina 2021
Foto Federico Cairoli
Agustín Berzero, Manuel González Veglia (TECTUM), Casa Taller, La Paisanita, Córdoba, Argentina 2021
Foto Federico Cairoli
Agustín Berzero, Manuel González Veglia (TECTUM), Casa Taller, La Paisanita, Córdoba, Argentina 2021
Foto Federico Cairoli
Agustín Berzero, Manuel González Veglia (TECTUM), Casa Taller, La Paisanita, Córdoba, Argentina 2021
Foto Federico Cairoli
Agustín Berzero, Manuel González Veglia (TECTUM), Casa Taller, La Paisanita, Córdoba, Argentina 2021
Foto Federico Cairoli
Agustín Berzero, Manuel González Veglia (TECTUM), Casa Taller, La Paisanita, Córdoba, Argentina 2021
Foto Federico Cairoli
Agustín Berzero, Manuel González Veglia (TECTUM), Casa Taller, La Paisanita, Córdoba, Argentina 2021
Foto Federico Cairoli
Agustín Berzero, Manuel González Veglia (TECTUM), Casa Taller, La Paisanita, Córdoba, Argentina 2021
Foto Federico Cairoli
Agustín Berzero, Manuel González Veglia (TECTUM), Casa Taller, La Paisanita, Córdoba, Argentina 2021
Foto Federico Cairoli
Agustín Berzero, Manuel González Veglia (TECTUM), Casa Taller, La Paisanita, Córdoba, Argentina 2021
Foto Federico Cairoli
Agustín Berzero, Manuel González Veglia (TECTUM), Casa Taller, La Paisanita, Córdoba, Argentina 2021
sezione nel paesaggio
Agustín Berzero, Manuel González Veglia (TECTUM), Casa Taller, La Paisanita, Córdoba, Argentina 2021
pianta piano terra
Agustín Berzero, Manuel González Veglia (TECTUM), Casa Taller, La Paisanita, Córdoba, Argentina 2021
pianta piano intermedio
Agustín Berzero, Manuel González Veglia (TECTUM), Casa Taller, La Paisanita, Córdoba, Argentina 2021
pianta copertura
Agustín Berzero, Manuel González Veglia (TECTUM), Casa Taller, La Paisanita, Córdoba, Argentina 2021
sezione trasversale
Agustín Berzero, Manuel González Veglia (TECTUM), Casa Taller, La Paisanita, Córdoba, Argentina 2021
sezione longitudinale
Agustín Berzero, Manuel González Veglia (TECTUM), Casa Taller, La Paisanita, Córdoba, Argentina 2021
Foto Federico Cairoli
Agustín Berzero, Manuel González Veglia (TECTUM), Casa Taller, La Paisanita, Córdoba, Argentina 2021
Foto Federico Cairoli
Agustín Berzero, Manuel González Veglia (TECTUM), Casa Taller, La Paisanita, Córdoba, Argentina 2021
Foto Federico Cairoli
Agustín Berzero, Manuel González Veglia (TECTUM), Casa Taller, La Paisanita, Córdoba, Argentina 2021
Foto Federico Cairoli
Agustín Berzero, Manuel González Veglia (TECTUM), Casa Taller, La Paisanita, Córdoba, Argentina 2021
Foto Federico Cairoli
Agustín Berzero, Manuel González Veglia (TECTUM), Casa Taller, La Paisanita, Córdoba, Argentina 2021
Foto Federico Cairoli
Agustín Berzero, Manuel González Veglia (TECTUM), Casa Taller, La Paisanita, Córdoba, Argentina 2021
Foto Federico Cairoli
Agustín Berzero, Manuel González Veglia (TECTUM), Casa Taller, La Paisanita, Córdoba, Argentina 2021
Foto Federico Cairoli
Agustín Berzero, Manuel González Veglia (TECTUM), Casa Taller, La Paisanita, Córdoba, Argentina 2021
Foto Federico Cairoli
Agustín Berzero, Manuel González Veglia (TECTUM), Casa Taller, La Paisanita, Córdoba, Argentina 2021
Foto Federico Cairoli
Agustín Berzero, Manuel González Veglia (TECTUM), Casa Taller, La Paisanita, Córdoba, Argentina 2021
Foto Federico Cairoli
Agustín Berzero, Manuel González Veglia (TECTUM), Casa Taller, La Paisanita, Córdoba, Argentina 2021
Foto Federico Cairoli
Agustín Berzero, Manuel González Veglia (TECTUM), Casa Taller, La Paisanita, Córdoba, Argentina 2021
Foto Federico Cairoli
Agustín Berzero, Manuel González Veglia (TECTUM), Casa Taller, La Paisanita, Córdoba, Argentina 2021
sezione nel paesaggio
Agustín Berzero, Manuel González Veglia (TECTUM), Casa Taller, La Paisanita, Córdoba, Argentina 2021
pianta piano terra
Agustín Berzero, Manuel González Veglia (TECTUM), Casa Taller, La Paisanita, Córdoba, Argentina 2021
pianta piano intermedio
Agustín Berzero, Manuel González Veglia (TECTUM), Casa Taller, La Paisanita, Córdoba, Argentina 2021
pianta copertura
Agustín Berzero, Manuel González Veglia (TECTUM), Casa Taller, La Paisanita, Córdoba, Argentina 2021
sezione trasversale
Agustín Berzero, Manuel González Veglia (TECTUM), Casa Taller, La Paisanita, Córdoba, Argentina 2021
sezione longitudinale
La casa progettata da Agustín Berzero e Manuel González Veglia nei pressi di Córdoba, in Argentina, è un manifesto di “resistenza” contro una concezione di architettura immateriale ed evanescente figlia della società “liquida” contemporanea, per citare Zygmunt Bauman, e dell’universo virtuale dell’iper-tecnologia e dell’iper-connettività che rimpiazza sempre più spesso la materia con l’immagine, la “cosa” con la sua rappresentazione. Continua a leggere
Una casa incastonata tra le case a Lisbona
View gallery
Bak Gordon Arquitectos, Casa in Rua São Francisco De Borja, Lisbona, Portogallo 2023
Foto Francisco Nogueira
Bak Gordon Arquitectos, Casa in Rua São Francisco De Borja, Lisbona, Portogallo 2023
Foto Francisco Nogueira
Bak Gordon Arquitectos, Casa in Rua São Francisco De Borja, Lisbona, Portogallo 2023
Foto Francisco Nogueira
Bak Gordon Arquitectos, Casa in Rua São Francisco De Borja, Lisbona, Portogallo 2023
Foto Francisco Nogueira
Bak Gordon Arquitectos, Casa in Rua São Francisco De Borja, Lisbona, Portogallo 2023
Foto Francisco Nogueira
Bak Gordon Arquitectos, Casa in Rua São Francisco De Borja, Lisbona, Portogallo 2023
Foto Francisco Nogueira
Bak Gordon Arquitectos, Casa in Rua São Francisco De Borja, Lisbona, Portogallo 2023
Foto Francisco Nogueira
Bak Gordon Arquitectos, Casa in Rua São Francisco De Borja, Lisbona, Portogallo 2023
Foto Francisco Nogueira
Bak Gordon Arquitectos, Casa in Rua São Francisco De Borja, Lisbona, Portogallo 2023
Foto Francisco Nogueira
Bak Gordon Arquitectos, Casa in Rua São Francisco De Borja, Lisbona, Portogallo 2023
Foto Francisco Nogueira
Bak Gordon Arquitectos, Casa in Rua São Francisco De Borja, Lisbona, Portogallo 2023
Foto Francisco Nogueira
Bak Gordon Arquitectos, Casa in Rua São Francisco De Borja, Lisbona, Portogallo 2023
inquadramento urbano
Bak Gordon Arquitectos, Casa in Rua São Francisco De Borja, Lisbona, Portogallo 2023
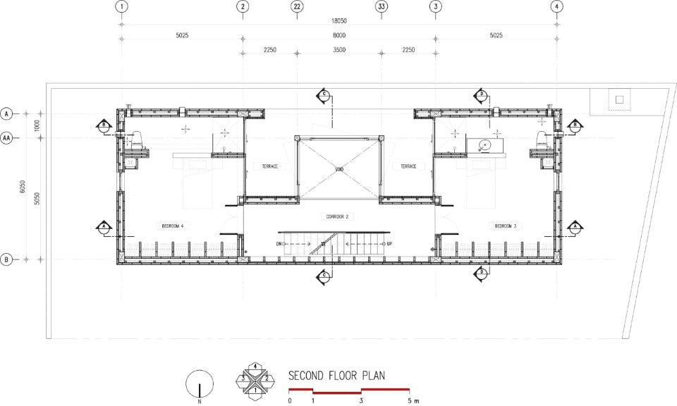
pianta piano terra
Bak Gordon Arquitectos, Casa in Rua São Francisco De Borja, Lisbona, Portogallo 2023
pianta piano primo
Bak Gordon Arquitectos, Casa in Rua São Francisco De Borja, Lisbona, Portogallo 2023
pianta piano secondo
Bak Gordon Arquitectos, Casa in Rua São Francisco De Borja, Lisbona, Portogallo 2023
pianta piano interrato
Bak Gordon Arquitectos, Casa in Rua São Francisco De Borja, Lisbona, Portogallo 2023
sezione trasversale
Bak Gordon Arquitectos, Casa in Rua São Francisco De Borja, Lisbona, Portogallo 2023
Foto Francisco Nogueira
Bak Gordon Arquitectos, Casa in Rua São Francisco De Borja, Lisbona, Portogallo 2023
Foto Francisco Nogueira
Bak Gordon Arquitectos, Casa in Rua São Francisco De Borja, Lisbona, Portogallo 2023
Foto Francisco Nogueira
Bak Gordon Arquitectos, Casa in Rua São Francisco De Borja, Lisbona, Portogallo 2023
Foto Francisco Nogueira
Bak Gordon Arquitectos, Casa in Rua São Francisco De Borja, Lisbona, Portogallo 2023
Foto Francisco Nogueira
Bak Gordon Arquitectos, Casa in Rua São Francisco De Borja, Lisbona, Portogallo 2023
Foto Francisco Nogueira
Bak Gordon Arquitectos, Casa in Rua São Francisco De Borja, Lisbona, Portogallo 2023
Foto Francisco Nogueira
Bak Gordon Arquitectos, Casa in Rua São Francisco De Borja, Lisbona, Portogallo 2023
Foto Francisco Nogueira
Bak Gordon Arquitectos, Casa in Rua São Francisco De Borja, Lisbona, Portogallo 2023
Foto Francisco Nogueira
Bak Gordon Arquitectos, Casa in Rua São Francisco De Borja, Lisbona, Portogallo 2023
Foto Francisco Nogueira
Bak Gordon Arquitectos, Casa in Rua São Francisco De Borja, Lisbona, Portogallo 2023
Foto Francisco Nogueira
Bak Gordon Arquitectos, Casa in Rua São Francisco De Borja, Lisbona, Portogallo 2023
inquadramento urbano
Bak Gordon Arquitectos, Casa in Rua São Francisco De Borja, Lisbona, Portogallo 2023
pianta piano terra
Bak Gordon Arquitectos, Casa in Rua São Francisco De Borja, Lisbona, Portogallo 2023
pianta piano primo
Bak Gordon Arquitectos, Casa in Rua São Francisco De Borja, Lisbona, Portogallo 2023
pianta piano secondo
Bak Gordon Arquitectos, Casa in Rua São Francisco De Borja, Lisbona, Portogallo 2023
pianta piano interrato
Bak Gordon Arquitectos, Casa in Rua São Francisco De Borja, Lisbona, Portogallo 2023
sezione trasversale
Un intervento nel tessuto urbano consolidato si inserisce con garbo nel contesto senza rinunciare ad una sua forte connotazione, grazie ad erosioni materiche e a giochi di riflessi. Continua a leggere
... e una casa incastonata nel terreno di un bosco, in Slovacchia.
View gallery
L’abitazione incastonata nel terreno si apre generosamente verso il paesaggio naturale, inquadrato come protagonista indiscusso della scena. Continua a leggere
Una casa in Canada, a cavallo fra archeologia e paesaggio
View gallery
“Nel complesso, credo che la residenza 75.9 sia il risultato della presa di coscienza della missione del mio studio, ovvero la ricerca della forma nella modalità di manipolazione dei materiali”. Omer Arbel commenta così il suo ultimo lavoro: una costruzione che si fa paesaggio, immersa in un campo di fieno nel Canada nord-occidentale, non distante da Vancouver. Continua a leggere
Un giardino-casa in Ecuador
View gallery
Lo studio ecuadoriano Al Borde progetta l’abitazione di uno studioso di ecologia come un ecosistema che concepisce una nuova relazione tra uomo e natura. Il bagno e la doccia della casa sono collocati in due volumi indipendenti dal corpo principale, rendendo il giardino esterno lo spazio di circolazione. Ma la natura non è solo qui. Continua a leggere
Una casa “imperfetta” a Bangkok
View gallery
Bangkok Project Studio, Back of the House, Bangkok, Thailandia 2023
Foto Spaceshift Studio
Bangkok Project Studio, Back of the House, Bangkok, Thailandia 2023
Foto Spaceshift Studio
Bangkok Project Studio, Back of the House, Bangkok, Thailandia 2023
Foto Spaceshift Studio
Bangkok Project Studio, Back of the House, Bangkok, Thailandia 2023
Foto Spaceshift Studio
Bangkok Project Studio, Back of the House, Bangkok, Thailandia 2023
Foto Spaceshift Studio
Bangkok Project Studio, Back of the House, Bangkok, Thailandia 2023
Foto Spaceshift Studio
Bangkok Project Studio, Back of the House, Bangkok, Thailandia 2023
Foto Spaceshift Studio
Bangkok Project Studio, Back of the House, Bangkok, Thailandia 2023
Foto Spaceshift Studio
Bangkok Project Studio, Back of the House, Bangkok, Thailandia 2023
Foto Spaceshift Studio
Bangkok Project Studio, Back of the House, Bangkok, Thailandia 2023
Foto Spaceshift Studio
Bangkok Project Studio, Back of the House, Bangkok, Thailandia 2023
Foto Spaceshift Studio
Bangkok Project Studio, Back of the House, Bangkok, Thailandia 2023
Foto Spaceshift Studio
Bangkok Project Studio, Back of the House, Bangkok, Thailandia 2023
Foto Spaceshift Studio
Bangkok Project Studio, Back of the House, Bangkok, Thailandia 2023
Foto Spaceshift Studio
Bangkok Project Studio, Back of the House, Bangkok, Thailandia 2023
Foto Spaceshift Studio
Bangkok Project Studio, Back of the House, Bangkok, Thailandia 2023
Foto Spaceshift Studio
Bangkok Project Studio, Back of the House, Bangkok, Thailandia 2023
Foto Spaceshift Studio
Bangkok Project Studio, Back of the House, Bangkok, Thailandia 2023
Foto Spaceshift Studio
Bangkok Project Studio, Back of the House, Bangkok, Thailandia 2023
Foto Spaceshift Studio
Bangkok Project Studio, Back of the House, Bangkok, Thailandia 2023
Foto Spaceshift Studio
Bangkok Project Studio, Back of the House, Bangkok, Thailandia 2023
Foto Spaceshift Studio
Bangkok Project Studio, Back of the House, Bangkok, Thailandia 2023
Foto Spaceshift Studio
Bangkok Project Studio, Back of the House, Bangkok, Thailandia 2023
Foto Spaceshift Studio
Bangkok Project Studio, Back of the House, Bangkok, Thailandia 2023
Foto Spaceshift Studio
Bangkok Project Studio, Back of the House, Bangkok, Thailandia 2023
Foto Spaceshift Studio
Bangkok Project Studio, Back of the House, Bangkok, Thailandia 2023
Foto Spaceshift Studio
Bangkok Project Studio, Back of the House, Bangkok, Thailandia 2023
Foto Spaceshift Studio
Bangkok Project Studio, Back of the House, Bangkok, Thailandia 2023
Foto Spaceshift Studio
Bangkok Project Studio, Back of the House, Bangkok, Thailandia 2023
Foto Spaceshift Studio
Bangkok Project Studio, Back of the House, Bangkok, Thailandia 2023
Foto Spaceshift Studio
Bangkok Project Studio, Back of the House, Bangkok, Thailandia 2023
Foto Spaceshift Studio
Bangkok Project Studio, Back of the House, Bangkok, Thailandia 2023
pianta primo livello
Bangkok Project Studio, Back of the House, Bangkok, Thailandia 2023
pianta secondo livello
Bangkok Project Studio, Back of the House, Bangkok, Thailandia 2023
pianta terzo livello
Bangkok Project Studio, Back of the House, Bangkok, Thailandia 2023
pianta del mezzanino
Bangkok Project Studio, Back of the House, Bangkok, Thailandia 2023
pianta della copertura
Bangkok Project Studio, Back of the House, Bangkok, Thailandia 2023
prospetto sul retro
Bangkok Project Studio, Back of the House, Bangkok, Thailandia 2023
Foto Spaceshift Studio
Bangkok Project Studio, Back of the House, Bangkok, Thailandia 2023
Foto Spaceshift Studio
Bangkok Project Studio, Back of the House, Bangkok, Thailandia 2023
Foto Spaceshift Studio
Bangkok Project Studio, Back of the House, Bangkok, Thailandia 2023
Foto Spaceshift Studio
Bangkok Project Studio, Back of the House, Bangkok, Thailandia 2023
Foto Spaceshift Studio
Bangkok Project Studio, Back of the House, Bangkok, Thailandia 2023
Foto Spaceshift Studio
Bangkok Project Studio, Back of the House, Bangkok, Thailandia 2023
Foto Spaceshift Studio
Bangkok Project Studio, Back of the House, Bangkok, Thailandia 2023
Foto Spaceshift Studio
Bangkok Project Studio, Back of the House, Bangkok, Thailandia 2023
Foto Spaceshift Studio
Bangkok Project Studio, Back of the House, Bangkok, Thailandia 2023
Foto Spaceshift Studio
Bangkok Project Studio, Back of the House, Bangkok, Thailandia 2023
Foto Spaceshift Studio
Bangkok Project Studio, Back of the House, Bangkok, Thailandia 2023
Foto Spaceshift Studio
Bangkok Project Studio, Back of the House, Bangkok, Thailandia 2023
Foto Spaceshift Studio
Bangkok Project Studio, Back of the House, Bangkok, Thailandia 2023
Foto Spaceshift Studio
Bangkok Project Studio, Back of the House, Bangkok, Thailandia 2023
Foto Spaceshift Studio
Bangkok Project Studio, Back of the House, Bangkok, Thailandia 2023
Foto Spaceshift Studio
Bangkok Project Studio, Back of the House, Bangkok, Thailandia 2023
Foto Spaceshift Studio
Bangkok Project Studio, Back of the House, Bangkok, Thailandia 2023
Foto Spaceshift Studio
Bangkok Project Studio, Back of the House, Bangkok, Thailandia 2023
Foto Spaceshift Studio
Bangkok Project Studio, Back of the House, Bangkok, Thailandia 2023
Foto Spaceshift Studio
Bangkok Project Studio, Back of the House, Bangkok, Thailandia 2023
Foto Spaceshift Studio
Bangkok Project Studio, Back of the House, Bangkok, Thailandia 2023
Foto Spaceshift Studio
Bangkok Project Studio, Back of the House, Bangkok, Thailandia 2023
Foto Spaceshift Studio
Bangkok Project Studio, Back of the House, Bangkok, Thailandia 2023
Foto Spaceshift Studio
Bangkok Project Studio, Back of the House, Bangkok, Thailandia 2023
Foto Spaceshift Studio
Bangkok Project Studio, Back of the House, Bangkok, Thailandia 2023
Foto Spaceshift Studio
Bangkok Project Studio, Back of the House, Bangkok, Thailandia 2023
Foto Spaceshift Studio
Bangkok Project Studio, Back of the House, Bangkok, Thailandia 2023
Foto Spaceshift Studio
Bangkok Project Studio, Back of the House, Bangkok, Thailandia 2023
Foto Spaceshift Studio
Bangkok Project Studio, Back of the House, Bangkok, Thailandia 2023
Foto Spaceshift Studio
Bangkok Project Studio, Back of the House, Bangkok, Thailandia 2023
Foto Spaceshift Studio
Bangkok Project Studio, Back of the House, Bangkok, Thailandia 2023
pianta primo livello
Bangkok Project Studio, Back of the House, Bangkok, Thailandia 2023
pianta secondo livello
Bangkok Project Studio, Back of the House, Bangkok, Thailandia 2023
pianta terzo livello
Bangkok Project Studio, Back of the House, Bangkok, Thailandia 2023
pianta del mezzanino
Bangkok Project Studio, Back of the House, Bangkok, Thailandia 2023
pianta della copertura
Bangkok Project Studio, Back of the House, Bangkok, Thailandia 2023
prospetto sul retro
L’architetto Boonserm Premthada si è costruito una casa-manifesto che fa leva sull’inevitabile “errore umano” come requisito implicito di qualsiasi espressione artistica. Continua a leggere
Una casa di mattoni che si sviluppa in altezza, in Catalogna
View gallery
La casa unifamiliare a Granollers, in Catalogna, di cui Harquitectes ha curato il rifacimento totale, si trova incastonata tra due edifici affacciati sulla strada. La struttura, in facciata caratterizzata da mattoni rossi, è alta 14 metri e profonda altrettanti. Il progetto si sviluppa quindi in altezza per fare entrare più luce rispetto all’abitazione originale – l’assetto delle case del quartiere ne impediva infatti l’ingresso – e va a sfruttare al massimo lo spazio disponibile, nei limiti dei regolamenti urbanistici della zona. Continua a leggere
Una casa australiana dove la soluzione tecnica diventa progetto estetico
View gallery
Office MI—JI, AB House, Barwon Heads, Victoria, Wadawurrung Country, Australia, 2022
Foto Ben Hosking
Office MI—JI, AB House, Barwon Heads, Victoria, Wadawurrung Country, Australia, 2022
Foto Ben Hosking
Office MI—JI, AB House, Barwon Heads, Victoria, Wadawurrung Country, Australia, 2022. Elaborato di progetto.
Foto Ben Hosking
Office MI—JI, AB House, Barwon Heads, Victoria, Wadawurrung Country, Australia, 2022. Elaborato di progetto.
Foto Ben Hosking
Office MI—JI, AB House, Barwon Heads, Victoria, Wadawurrung Country, Australia, 2022. Elaborato di progetto.
Foto Ben Hosking
Office MI—JI, AB House, Barwon Heads, Victoria, Wadawurrung Country, Australia, 2022
Foto Ben Hosking
Office MI—JI, AB House, Barwon Heads, Victoria, Wadawurrung Country, Australia, 2022
Foto Ben Hosking
Office MI—JI, AB House, Barwon Heads, Victoria, Wadawurrung Country, Australia, 2022
Foto Ben Hosking
Office MI—JI, AB House, Barwon Heads, Victoria, Wadawurrung Country, Australia, 2022
Foto Ben Hosking
Office MI—JI, AB House, Barwon Heads, Victoria, Wadawurrung Country, Australia, 2022
Foto Ben Hosking
Office MI—JI, AB House, Barwon Heads, Victoria, Wadawurrung Country, Australia, 2022
Foto Ben Hosking
Office MI—JI, AB House, Barwon Heads, Victoria, Wadawurrung Country, Australia, 2022
Foto Ben Hosking
Office MI—JI, AB House, Barwon Heads, Victoria, Wadawurrung Country, Australia, 2022
Foto Ben Hosking
Office MI—JI, AB House, Barwon Heads, Victoria, Wadawurrung Country, Australia, 2022
Foto Ben Hosking
Office MI—JI, AB House, Barwon Heads, Victoria, Wadawurrung Country, Australia, 2022
Foto Ben Hosking
Office MI—JI, AB House, Barwon Heads, Victoria, Wadawurrung Country, Australia, 2022
Foto Ben Hosking
Office MI—JI, AB House, Barwon Heads, Victoria, Wadawurrung Country, Australia, 2022
Foto Ben Hosking
Office MI—JI, AB House, Barwon Heads, Victoria, Wadawurrung Country, Australia, 2022
Foto Ben Hosking
Office MI—JI, AB House, Barwon Heads, Victoria, Wadawurrung Country, Australia, 2022
Foto Ben Hosking
Office MI—JI, AB House, Barwon Heads, Victoria, Wadawurrung Country, Australia, 2022
Foto Ben Hosking
Office MI—JI, AB House, Barwon Heads, Victoria, Wadawurrung Country, Australia, 2022
Foto Ben Hosking
Office MI—JI, AB House, Barwon Heads, Victoria, Wadawurrung Country, Australia, 2022
Foto Ben Hosking
Office MI—JI, AB House, Barwon Heads, Victoria, Wadawurrung Country, Australia, 2022
Foto Ben Hosking
Office MI—JI, AB House, Barwon Heads, Victoria, Wadawurrung Country, Australia, 2022
Foto Ben Hosking
Office MI—JI, AB House, Barwon Heads, Victoria, Wadawurrung Country, Australia, 2022
Foto Ben Hosking
Office MI—JI, AB House, Barwon Heads, Victoria, Wadawurrung Country, Australia, 2022
Foto Ben Hosking
Office MI—JI, AB House, Barwon Heads, Victoria, Wadawurrung Country, Australia, 2022
Foto Ben Hosking
Office MI—JI, AB House, Barwon Heads, Victoria, Wadawurrung Country, Australia, 2022. Elaborato di progetto.
Foto Ben Hosking
Office MI—JI, AB House, Barwon Heads, Victoria, Wadawurrung Country, Australia, 2022. Elaborato di progetto.
Foto Ben Hosking
Office MI—JI, AB House, Barwon Heads, Victoria, Wadawurrung Country, Australia, 2022. Elaborato di progetto.
Foto Ben Hosking
Office MI—JI, AB House, Barwon Heads, Victoria, Wadawurrung Country, Australia, 2022
Foto Ben Hosking
Office MI—JI, AB House, Barwon Heads, Victoria, Wadawurrung Country, Australia, 2022
Foto Ben Hosking
Office MI—JI, AB House, Barwon Heads, Victoria, Wadawurrung Country, Australia, 2022
Foto Ben Hosking
Office MI—JI, AB House, Barwon Heads, Victoria, Wadawurrung Country, Australia, 2022
Foto Ben Hosking
Office MI—JI, AB House, Barwon Heads, Victoria, Wadawurrung Country, Australia, 2022
Foto Ben Hosking
Office MI—JI, AB House, Barwon Heads, Victoria, Wadawurrung Country, Australia, 2022
Foto Ben Hosking
Office MI—JI, AB House, Barwon Heads, Victoria, Wadawurrung Country, Australia, 2022
Foto Ben Hosking
Office MI—JI, AB House, Barwon Heads, Victoria, Wadawurrung Country, Australia, 2022
Foto Ben Hosking
Office MI—JI, AB House, Barwon Heads, Victoria, Wadawurrung Country, Australia, 2022
Foto Ben Hosking
Office MI—JI, AB House, Barwon Heads, Victoria, Wadawurrung Country, Australia, 2022
Foto Ben Hosking
Office MI—JI, AB House, Barwon Heads, Victoria, Wadawurrung Country, Australia, 2022
Foto Ben Hosking
Office MI—JI, AB House, Barwon Heads, Victoria, Wadawurrung Country, Australia, 2022
Foto Ben Hosking
Office MI—JI, AB House, Barwon Heads, Victoria, Wadawurrung Country, Australia, 2022
Foto Ben Hosking
Office MI—JI, AB House, Barwon Heads, Victoria, Wadawurrung Country, Australia, 2022
Foto Ben Hosking
Office MI—JI, AB House, Barwon Heads, Victoria, Wadawurrung Country, Australia, 2022
Foto Ben Hosking
Office MI—JI, AB House, Barwon Heads, Victoria, Wadawurrung Country, Australia, 2022
Foto Ben Hosking
Office MI—JI, AB House, Barwon Heads, Victoria, Wadawurrung Country, Australia, 2022
Foto Ben Hosking
Office MI—JI, AB House, Barwon Heads, Victoria, Wadawurrung Country, Australia, 2022
Foto Ben Hosking
Office MI—JI, AB House, Barwon Heads, Victoria, Wadawurrung Country, Australia, 2022
Foto Ben Hosking
Office MI—JI, AB House, Barwon Heads, Victoria, Wadawurrung Country, Australia, 2022
Foto Ben Hosking
Non lontano dalla città di Melbourne, lo studio MI-JI ha completato il progetto per una residenza, in cui l’uso del materiale e la disposizione dei volumi generano rapporti inattesi dello spazio domestico. Trovandosi in un’area soggetta ad allagamenti, AB House si solleva dal terreno, definendo un rapporto di leggerezza con il suolo, costruendo una serie di pedane rialzate che lavorano sulla mediazione tra spazio esterno e spazio interno. Continua a leggere
La villa di Mecanoo che diventa un oggetto di design immerso nel paesaggio olandese
View gallery
Lo studio Mecanoo ha recentemente completato Villa BW, una casa costruita in quella campagna ondulata che caratterizza i polder olandesi. Questo paesaggio instabile, che alterna dune e bacini d’acqua e macchie arboree ed è caratterizzato da un particolare gioco di luci, ombre e riflessi, è reinterpretato nello sviluppo del rivestimento. Continua a leggere
In Argentina, una griglia di pilastri come base di una casa mutante
View gallery
Si trova a Villa Elisa, a Buenos Aires, la casa progettata da Iñaki Harosteguy di Supra Order & Hargar studio. House with Columns sembra essere il risultato di un gioco in cui si possono sperimentare molteplici configurazioni garantendo tuttavia l'ordine logico di una matrice strutturale. Continua a leggere
Un cottage In Irlanda che risorge dalle rovine
View gallery
Pasparakis Friel, Saltpans Cottage, Rathmullan, Co. Donegal, Irlanda 2022. Foto Peter Molloy
Foto di Peter Molloy
Pasparakis Friel, Saltpans Cottage, Rathmullan, Co. Donegal, Irlanda 2022. Foto Peter Molloy
Foto di Peter Molloy
Pasparakis Friel, Saltpans Cottage, Rathmullan, Co. Donegal, Irlanda 2022. Foto Peter Molloy
Foto di Peter Molloy
Pasparakis Friel, Saltpans Cottage, Rathmullan, Co. Donegal, Irlanda 2022. Foto Peter Molloy
Foto di Peter Molloy
Pasparakis Friel, Saltpans Cottage, Rathmullan, Co. Donegal, Irlanda 2022. Foto Peter Molloy
Foto di Peter Molloy
Pasparakis Friel, Saltpans Cottage, Rathmullan, Co. Donegal, Irlanda 2022. Foto Peter Molloy
Foto di Peter Molloy
Pasparakis Friel, Saltpans Cottage, Rathmullan, Co. Donegal, Irlanda 2022. Foto Peter Molloy
Foto di Peter Molloy
Pasparakis Friel, Saltpans Cottage, Rathmullan, Co. Donegal, Irlanda 2022. Foto Peter Molloy
Foto di Peter Molloy
Pasparakis Friel, Saltpans Cottage, Rathmullan, Co. Donegal, Irlanda 2022. Foto Peter Molloy
Foto di Peter Molloy
Pasparakis Friel, Saltpans Cottage, Rathmullan, Co. Donegal, Irlanda 2022. Foto Peter Molloy
Foto di Peter Molloy
Pasparakis Friel, Saltpans Cottage, Rathmullan, Co. Donegal, Irlanda 2022. Foto Peter Molloy
Foto di Peter Molloy
Pasparakis Friel, Saltpans Cottage, Rathmullan, Co. Donegal, Irlanda 2022
inquadramento
Pasparakis Friel, Saltpans Cottage, Rathmullan, Co. Donegal, Irlanda 2022
piano terra - esistente
Pasparakis Friel, Saltpans Cottage, Rathmullan, Co. Donegal, Irlanda 2022
piano terra - proposta progettuale
Pasparakis Friel, Saltpans Cottage, Rathmullan, Co. Donegal, Irlanda 2022
sezione trasversale a-a - proposta progettuale
Pasparakis Friel, Saltpans Cottage, Rathmullan, Co. Donegal, Irlanda 2022
sezione trasversale b-b - proposta progettuale
Pasparakis Friel, Saltpans Cottage, Rathmullan, Co. Donegal, Irlanda 2022
sezione longitudinale - proposta progettuale
Pasparakis Friel, Saltpans Cottage, Rathmullan, Co. Donegal, Irlanda 2022
prospetto nord est - esistente
Pasparakis Friel, Saltpans Cottage, Rathmullan, Co. Donegal, Irlanda 2022
prospetto nord est - proposta progettuale
Pasparakis Friel, Saltpans Cottage, Rathmullan, Co. Donegal, Irlanda 2022
prospetto nord ovest - esistente
Pasparakis Friel, Saltpans Cottage, Rathmullan, Co. Donegal, Irlanda 2022
prospetto nord ovest - proposta progettuale
Pasparakis Friel, Saltpans Cottage, Rathmullan, Co. Donegal, Irlanda 2022
prospetto sud est - esistente
Pasparakis Friel, Saltpans Cottage, Rathmullan, Co. Donegal, Irlanda 2022
prospetto sud est - proposta progettuale
Pasparakis Friel, Saltpans Cottage, Rathmullan, Co. Donegal, Irlanda 2022
prospetti sud ovest - esistente
Pasparakis Friel, Saltpans Cottage, Rathmullan, Co. Donegal, Irlanda 2022. Foto Peter Molloy
Foto di Peter Molloy
Pasparakis Friel, Saltpans Cottage, Rathmullan, Co. Donegal, Irlanda 2022. Foto Peter Molloy
Foto di Peter Molloy
Pasparakis Friel, Saltpans Cottage, Rathmullan, Co. Donegal, Irlanda 2022. Foto Peter Molloy
Foto di Peter Molloy
Pasparakis Friel, Saltpans Cottage, Rathmullan, Co. Donegal, Irlanda 2022. Foto Peter Molloy
Foto di Peter Molloy
Pasparakis Friel, Saltpans Cottage, Rathmullan, Co. Donegal, Irlanda 2022. Foto Peter Molloy
Foto di Peter Molloy
Pasparakis Friel, Saltpans Cottage, Rathmullan, Co. Donegal, Irlanda 2022. Foto Peter Molloy
Foto di Peter Molloy
Pasparakis Friel, Saltpans Cottage, Rathmullan, Co. Donegal, Irlanda 2022. Foto Peter Molloy
Foto di Peter Molloy
Pasparakis Friel, Saltpans Cottage, Rathmullan, Co. Donegal, Irlanda 2022. Foto Peter Molloy
Foto di Peter Molloy
Pasparakis Friel, Saltpans Cottage, Rathmullan, Co. Donegal, Irlanda 2022. Foto Peter Molloy
Foto di Peter Molloy
Pasparakis Friel, Saltpans Cottage, Rathmullan, Co. Donegal, Irlanda 2022. Foto Peter Molloy
Foto di Peter Molloy
Pasparakis Friel, Saltpans Cottage, Rathmullan, Co. Donegal, Irlanda 2022. Foto Peter Molloy
Foto di Peter Molloy
Pasparakis Friel, Saltpans Cottage, Rathmullan, Co. Donegal, Irlanda 2022
inquadramento
Pasparakis Friel, Saltpans Cottage, Rathmullan, Co. Donegal, Irlanda 2022
piano terra - esistente
Pasparakis Friel, Saltpans Cottage, Rathmullan, Co. Donegal, Irlanda 2022
piano terra - proposta progettuale
Pasparakis Friel, Saltpans Cottage, Rathmullan, Co. Donegal, Irlanda 2022
sezione trasversale a-a - proposta progettuale
Pasparakis Friel, Saltpans Cottage, Rathmullan, Co. Donegal, Irlanda 2022
sezione trasversale b-b - proposta progettuale
Pasparakis Friel, Saltpans Cottage, Rathmullan, Co. Donegal, Irlanda 2022
sezione longitudinale - proposta progettuale
Pasparakis Friel, Saltpans Cottage, Rathmullan, Co. Donegal, Irlanda 2022
prospetto nord est - esistente
Pasparakis Friel, Saltpans Cottage, Rathmullan, Co. Donegal, Irlanda 2022
prospetto nord est - proposta progettuale
Pasparakis Friel, Saltpans Cottage, Rathmullan, Co. Donegal, Irlanda 2022
prospetto nord ovest - esistente
Pasparakis Friel, Saltpans Cottage, Rathmullan, Co. Donegal, Irlanda 2022
prospetto nord ovest - proposta progettuale
Pasparakis Friel, Saltpans Cottage, Rathmullan, Co. Donegal, Irlanda 2022
prospetto sud est - esistente
Pasparakis Friel, Saltpans Cottage, Rathmullan, Co. Donegal, Irlanda 2022
prospetto sud est - proposta progettuale
Pasparakis Friel, Saltpans Cottage, Rathmullan, Co. Donegal, Irlanda 2022
prospetti sud ovest - esistente
Un restauro scrupoloso e delicato è un omaggio all’architettura vernacolare e ai caratteri cromatici e materici del paesaggio irlandese. Continua a leggere
Trasformare gli anni ’80 con la geometria pura: una casa in Olanda
View gallery
Space Encounters Amsterdam, AB House
Piante del piano terra e del primo piano
Foto Lorenzo Zandri
Space Encounters Amsterdam, AB House
Piante del piano terra e del primo piano
Foto Lorenzo Zandri
Space Encounters Amsterdam ha ristrutturato e trasformato una casa del 1980 a Broek op Langedijk, in Olanda. Fino alla ricomposizione fondiaria dei primi anni ‘70, i villaggi nei pressi della diga, erano divisi in centinaia di piccole isole accessibili solo in barca. Alcune di queste sono diventate nel tempo riserva naturale mentre alcune hanno assunto carattere residenziale ospitando edifici caratterizzati principalmente da tetto inclinato. Continua a leggere
In Brasile, un ampliamento aperto all’arte per una casa degli anni ‘60
View gallery
Un semplice telaio metallico reso dinamico da un sistema di tende completa la ristrutturazione di un edificio esistente, sfidando la nozione tradizionale di spazio abitativo e spazio performativo. Continua a leggere
Una casa spagnola che abbraccia un noce
View gallery
Raúl Almenara ha disegnato Casa Nogal, un’abitazione di campagna ad Avila, come una grande pietra nel paesaggio rurale che flette uno dei suoi lati per lasciare spazio al maestoso albero di noce nel cortile. La geometria legge le trame poderali dei terreni agricoli circostanti, andando ad attestarsi su entrambe le strade che lambiscono il lotto. Continua a leggere
La casa che un architetto giapponese ha progettato per sé e i suoi gatti
View gallery
Tra salti di quota, nascondigli e punti di vista privilegiati, la casa-studio di un architetto è concepita su misura di “committenti” che comunicano con la coda piuttosto che con le parole. Continua a leggere
La casa smart per abitanti inconsueti: un pollaio tecnologico, connesso e sostenibile
View gallery
Sviluppato dall'omonima startup di Austin e progettato da Bould Design, questo pollaio applica le tecnologie IoT a un prodotto inusuale.
Photos credits: COOP & Bould Design
Sviluppato dall'omonima startup di Austin e progettato da Bould Design, questo pollaio applica le tecnologie IoT a un prodotto inusuale.
Photos credits: COOP & Bould Design
Sviluppato dall'omonima startup di Austin e progettato da Bould Design, questo pollaio applica le tecnologie IoT a un prodotto inusuale.
Photos credits: COOP & Bould Design
Sviluppato dall'omonima startup di Austin e progettato da Bould Design, questo pollaio applica le tecnologie IoT a un prodotto inusuale.
Photos credits: COOP & Bould Design
Sviluppato dall'omonima startup di Austin e progettato da Bould Design, questo pollaio applica le tecnologie IoT a un prodotto inusuale.
Photos credits: COOP & Bould Design
Sviluppato dall'omonima startup di Austin e progettato da Bould Design, questo pollaio applica le tecnologie IoT a un prodotto inusuale.
Photos credits: COOP & Bould Design
Sviluppato dall'omonima startup di Austin e progettato da Bould Design, questo pollaio applica le tecnologie IoT a un prodotto inusuale.
Photos credits: COOP & Bould Design
Sviluppato dall'omonima startup di Austin e progettato da Bould Design, questo pollaio applica le tecnologie IoT a un prodotto inusuale.
Photos credits: COOP & Bould Design
Sviluppato dall'omonima startup di Austin e progettato da Bould Design, questo pollaio applica le tecnologie IoT a un prodotto inusuale.
Photos credits: COOP & Bould Design
Sviluppato dall'omonima startup di Austin e progettato da Bould Design, questo pollaio applica le tecnologie IoT a un prodotto inusuale.
Photos credits: COOP & Bould Design
La startup Coop, con sede ad Austin, ha sviluppato un pollaio connesso che offre “comfort e comodità” sia ai proprietari che ai polli che lo abitano. Il progetto è stato sviluppato in collaborazione con Bould Design, studio noto per aver lavorato al termostato Nest e ai router WiFi di Eero. Continua a leggere
