Raúl Sánchez ha aggiunto ricchezza spaziale a un appartamento nel quartiere Eixample, a Barcellona. La casa originale aveva una distribuzione poco stimolante e per niente funzionale. Il progetto di interni ha dato vita a diversi strati di complessità, creando ambiguità tra le classiche funzioni di ogni stanza e al modo in cui si relazionano.
Galleria
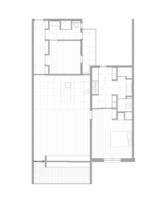
Il progetto propone tre macro gruppi funzionali: il primo legato all’accesso, con ingresso, stanza per gli ospiti e bagno con lavanderia; il secondo con camera da letto matrimoniale, una cabina armadio e il bagno. Il terzo, che unisce gli altri due, ospita un unica area grande con cucina, sala da pranzo e salotto.
Galleria
Le zone di circolazione suggeriscono dei percorsi, ma non li definiscono. Il balcone e l’ingresso sono collegati in forma visiva da un’asse tradotta in un grande armadio nero all’ingresso che si smaterializza in prossimità della cucina. La relazione tra salotto e cucina è data da due grandi finestre scorrevoli nere. Vetrate con trame e trasparenze diverse sfumano la vista verso l’esterno.
- Progetto:
- Apartamento Villarroel
- Tipologia:
- appartamento
- Architetto:
- Raúl Sánchez – raulsanchezarchitects.com
- Team di progetto:
- Pau Just, Cayetano de la Torre
- Ingegneria:
- Marés Ingenieros
- Area:
- 90 mq
- Completamento:
- 2017
