Galleria
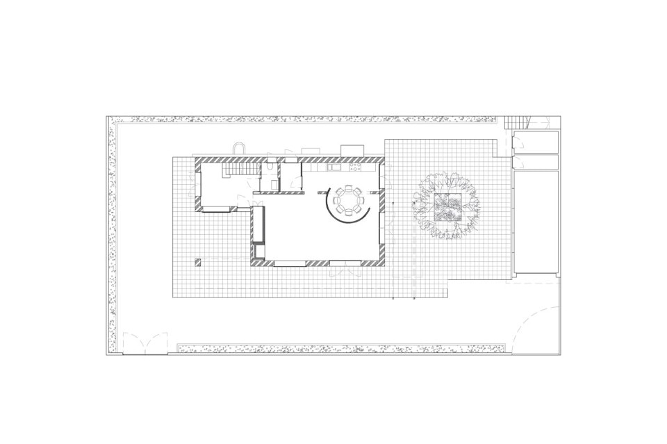
Al piano terra, la cucina precedente era molto piccola, e separata dagli altri spazi. Il nuovo progetto ne conserva la posizione per sfruttare i sistemi idraulici, ma la apre verso il salotto grazie a un’apertura nella parete che separa le due aree. Inoltre, è stata inserita una nuova parete curva, alta 180 cm che crea una sala da pranzo senza dividere lo spazio. Un nuovo pavimento in ceramica nera a spina di pesce unifica tutte le zone.
Galleria
Casa 1016, Castelldefels, Barcellona, Spagna
Tipologia: casa unifamiliare
Architetto: Raúl Sánchez – Raúl Sánchez Architects
Ingegneria: Marés ingenieros
Strutture: Diagonal Estructuras
Area costruita: 170 mq
Completamento: 2017
