Archivio Digitale Domus PRO in offerta

Appartamento Tamarit

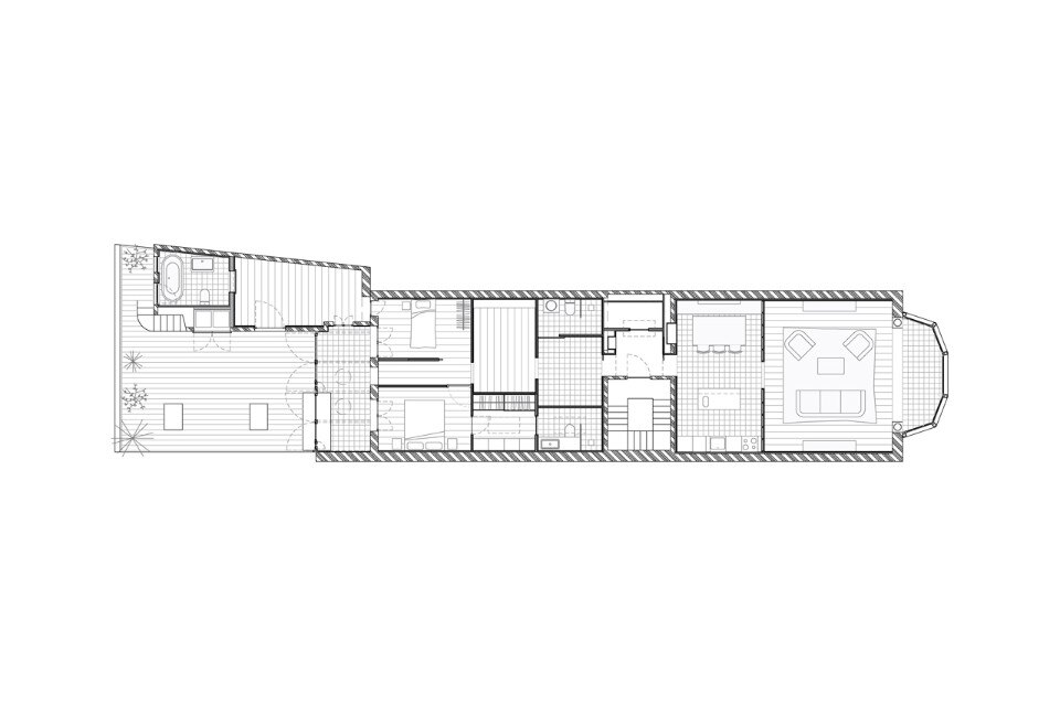
Progettata da RAS Arquitectura a Barcellona, questa abitazione lunga e stretta presenta una maestosa bow-window sul fronte principale e un’ampia corte interna.

RAS Arquitectura, Appartamento Tamarit, Barcellona, 2015
Il progetto è la ristrutturazione di un appartamento lungo e stretto con una maestosa bow-window sul fronte principale e un’ampia corte interna. Nel mezzo uno spazio di 140 mq per risolvere esigenze abitative più o meno tradizionali.
RAS Arquitectura, Appartamento Tamarit, Barcellona, 2015
RAS Arquitectura, Appartamento Tamarit, Barcellona, 2015
Sono due le strategie chiave adottate dagli architetti: la prima è che non ci sono corridoi tra le camere, che sono collegate tra loro e in successione. Ciò dà luogo a una serie di spazi intermedi che mancano di funzione definita. Questi spazi che sono la spina dorsale dell’abitazione non dispongono nemmeno di porte, e la loro partizioni non arrivano al soffitto.
RAS Arquitectura, Appartamento Tamarit, Barcellona, 2015
RAS Arquitectura, Appartamento Tamarit, Barcellona, 2015
La seconda scelta progettuale struttura tutte le camere su tre fasce. Il livello superiore è continuo in tutta la casa ed è verniciato di grigio. Nulla interrompe questo livello, dal momento che le partizioni non raggiungono il soffitto. Il livello più basso invece va dal pavimento fino a un’altezza di 60 cm, caratterizza i pavimenti e le partizioni e differenzia e distingue ogni spazio.
RAS Arquitectura, Appartamento Tamarit, Barcellona, 2015
RAS Arquitectura, Appartamento Tamarit, Barcellona, 2015
L’intero spazio interno è pertanto organizzato come una serie di camere distinte ma collegate e connesse all’esterno, da cui penetra la luce, creando diverse gradazioni di illuminazione. In tal modo si generano anche gradi diversi di privacy a seconda della posizione della stanza.

Appartamento Tamarit, Barcellona
Tipologia: appartamento
Architetti: RAS Arquitectura
Ingegneria: Mares Ingenieros
Strutture: Diagonal Estructuras
Superficie: 140 mq (interni) + 60 mq (esterni)
Completamento: 2015

Ultime News

Altri articoli di Domus

China Germany India Mexico, Central America and Caribbean Sri Lanka Korea icon-camera close icon-comments icon-down-sm icon-download icon-facebook icon-heart icon-heart icon-next-sm icon-next icon-pinterest icon-play icon-plus icon-prev-sm icon-prev Search icon-twitter icon-views icon-instagram