L’ultimo progetto di H Arquitectes ha tre punti di partenza: comprendere il valore storico di Lleialtat Santsenca, una vecchia cooperativa operaia nel quartiere di Sants; conoscere nel dettaglio lo stato (fisico) dell’edificio per mantenerne il più possibile; essere sensibile al processo collaborativo iniziato nel 2009 dalle organizzazioni di quartiere per recuperare lo stabile.
Galleria
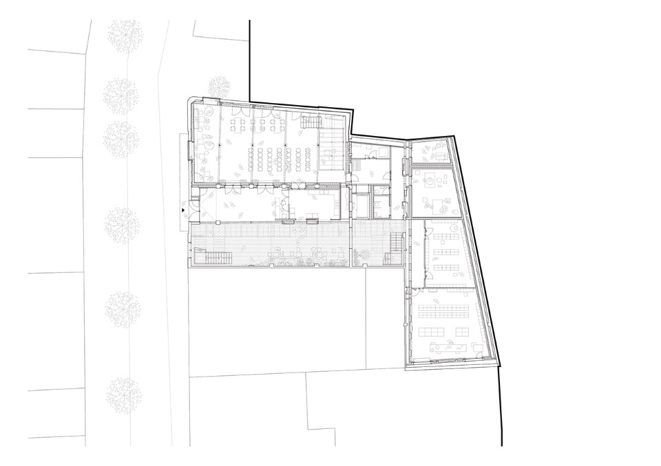
L’edificio è formato da tre corpi strutturali. Le condizioni igieniche precarie delle costruzioni adiacenti, che sono anche mal collegate, hanno spinto a proporre un grande vuoto longitudinale, che unisce i volumi – nuovi e vecchi – con una progressione di spazi, gradualmente sempre più privati. Il susseguirsi di questi vuoti configura un atrio limitato da facciate “nuove” che si contrappongono ai muri esistenti, che mostrano le tracce della storia dell’edificio. L’atrio porta luce e aria a tutti gli spazi e diventa l’asse di circolazione orizzontale e verticale. Offre un nuovo potenziale di utilizzo per funzioni anche impreviste.
I tetti esistenti erano in cattive condizioni. Sono state quindi mantenute solo le capriate della sala principale. È stata quindi realizzata una nuova copertura, associata ai tre corpi strutturali: tre tetti a falda, di policarbonato a sud e lamiera metallica a nord, sorretti da una struttura metallica. Le nuove coperture favoriscono l’illuminazione e la ventilazione dell’atrio.
- Progetto:
- Centro civico Lleialtat Santsenca
- Luogo:
- Barcellona
- Architetto:
- H Arquitectes – David Lorente, Josep Ricart, Xavier Ros, Roger Tudó
- Collaboratori:
- Montse Fornés, Jordi Mitjans, Berta Romeo, Carla Piñol, Blai Cabrero Bosch, Toni Jiménez, Jorge Suárez-Kilzi
- Strutture:
- DSM arquitectes
- Ingegneria ambientale:
- Societat Orgànica
- Impianti:
- VIDAL enginyeria i consultoria
- Acustica:
- i2A
- Superficie:
- 1.750 mq
- Completamento:
- 2017
