results
No results
Please enter a long search term
The 12 most beautiful tea houses
Tea room, chashitsu, cháguăn: tea houses are a centuries-old tradition widely spread from East to West. Domus has selected the 12 projects that best pay homage to the customs and architecture dedicated to the world’s most popular drink.
Sihan Tea House, AIR Architects
View gallery
AIR Architects, Sihan Tea House
Photo Chenhao
SHARE
PIN IT
AIR Architects, Sihan Tea House
Photo Chenhao
SHARE
PIN IT
AIR Architects, Sihan Tea House
Photo Chenhao
SHARE
PIN IT
AIR Architects, Sihan Tea House
Photo Chenhao
SHARE
PIN IT
AIR Architects, Sihan Tea House
Photo Chenhao
SHARE
PIN IT
AIR Architects, Sihan Tea House
Photo Chenhao
SHARE
PIN IT
AIR Architects, Sihan Tea House
Photo Chenhao
SHARE
PIN IT
AIR Architects, Sihan Tea House
Photo Chenhao
SHARE
PIN IT
AIR Architects, Sihan Tea House
Photo Chenhao
SHARE
PIN IT
AIR Architects, Sihan Tea House
Photo Chenhao
SHARE
PIN IT
AIR Architects, Sihan Tea House
Photo Chenhao
SHARE
PIN IT
AIR Architects, Sihan Tea House
Photo Chenhao
SHARE
PIN IT
AIR Architects, Sihan Tea House
Photo Chenhao
SHARE
PIN IT
AIR Architects, Sihan Tea House
Photo Chenhao
SHARE
PIN IT
AIR Architects, Sihan Tea House
Photo Chenhao
SHARE
PIN IT
AIR Architects, Sihan Tea House
Photo Chenhao
SHARE
PIN IT
AIR Architects, Sihan Tea House
Concept.
Photo Chenhao
SHARE
PIN IT
AIR Architects, Sihan Tea House
Concept.
Photo Chenhao
SHARE
PIN IT
AIR Architects, Sihan Tea House
Exploded Axonometric.
Photo Chenhao
SHARE
PIN IT
AIR Architects, Sihan Tea House
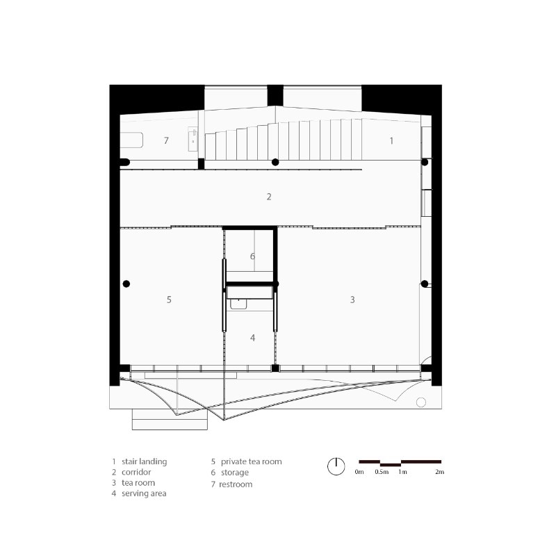
Ground floor plan.
Photo Chenhao
SHARE
PIN IT
AIR Architects, Sihan Tea House
First floor plan.
Photo Chenhao
SHARE
PIN IT
AIR Architects, Sihan Tea House
West section.
Photo Chenhao
SHARE
PIN IT
AIR Architects, Sihan Tea House
East section.
Photo Chenhao
SHARE
PIN IT
AIR Architects, Sihan Tea House
North section.
Photo Chenhao
SHARE
PIN IT
AIR Architects, Sihan Tea House
Front elevation.
Photo Chenhao
SHARE
PIN IT
AIR Architects, Sihan Tea House
Photo Chenhao
SHARE
PIN IT
AIR Architects, Sihan Tea House
Photo Chenhao
SHARE
PIN IT
AIR Architects, Sihan Tea House
Photo Chenhao
SHARE
PIN IT
AIR Architects, Sihan Tea House
Photo Chenhao
SHARE
PIN IT
AIR Architects, Sihan Tea House
Photo Chenhao
SHARE
PIN IT
AIR Architects, Sihan Tea House
Photo Chenhao
SHARE
PIN IT
AIR Architects, Sihan Tea House
Photo Chenhao
SHARE
PIN IT
AIR Architects, Sihan Tea House
Photo Chenhao
SHARE
PIN IT
AIR Architects, Sihan Tea House
Photo Chenhao
SHARE
PIN IT
AIR Architects, Sihan Tea House
Photo Chenhao
SHARE
PIN IT
AIR Architects, Sihan Tea House
Photo Chenhao
SHARE
PIN IT
AIR Architects, Sihan Tea House
Photo Chenhao
SHARE
PIN IT
AIR Architects, Sihan Tea House
Photo Chenhao
SHARE
PIN IT
AIR Architects, Sihan Tea House
Photo Chenhao
SHARE
PIN IT
AIR Architects, Sihan Tea House
Photo Chenhao
SHARE
PIN IT
AIR Architects, Sihan Tea House
Photo Chenhao
SHARE
PIN IT
AIR Architects, Sihan Tea House
Concept.
Photo Chenhao
SHARE
PIN IT
AIR Architects, Sihan Tea House
Concept.
Photo Chenhao
SHARE
PIN IT
AIR Architects, Sihan Tea House
Exploded Axonometric.
Photo Chenhao
SHARE
PIN IT
AIR Architects, Sihan Tea House
Ground floor plan.
Photo Chenhao
SHARE
PIN IT
AIR Architects, Sihan Tea House
First floor plan.
Photo Chenhao
SHARE
PIN IT
AIR Architects, Sihan Tea House
West section.
Photo Chenhao
SHARE
PIN IT
AIR Architects, Sihan Tea House
East section.
Photo Chenhao
SHARE
PIN IT
AIR Architects, Sihan Tea House
North section.
Photo Chenhao
SHARE
PIN IT
AIR Architects, Sihan Tea House
Front elevation.
Photo Chenhao
SHARE
PIN IT
Semi-transparencies and luminous spaces: AIR Architects designed Sihan Tea House, a two-level building conceived for retail and tea ceremony.
In contemporary China, a precious architectural relic finds an unusual home inside a new building designed to preserve it and to rekindle the bond with the local culture.
Shio Architect Design Office conceives Sokkon, a Japanese tea house where movable elements become traditional seats or western-style tables, according to the needs.
We can find a little bit of Japan in Athens visiting the Tea House designed by Georges Batzios Architects: an introverted space punctuated by a sequence of wooden framework.
A Work of Substance collective designed Mother Pearl, a 32 square metre space selling bubble tea and overlooking the street: a city niche defined by pastel colours and a strong material texture.
The design of the tea house by Lin Kaixin combines symmetrical patterns and architectural gray spaces to present a free, open, natural and humane spiritual space.
Mix Architecture has slotted a glass box beneath the roof of an aging stone building to create a contemporary tea house for a fishing village on the edge of Gucheng Lake.
Amidst tech corporations in Shenzhen Industrial Base, a pentagon shape defies the grid layout of the surrounding towers and simulates a relaxing stroll through tea fields.
In balance between the need to preserve the historical and art values and the need to include new features Archstudio intervened in a traditional Hutong district in Beijing to transform it into a tea house with a glass “curvy corridor” that creates a smooth transition from the past to the present.
For the renovation of an ancient tea house in the heart of Beijing, Kengo Kuma chose four types of polyethylene blocks, like a modern version of masonry.