La scuola degli anni ’70 conserva intatto l’impianto e la forza di una organizzazione razionale e di uno spazio centrale inespresso, che è stato liberato dalle vetrate industriali, per consentire alla luce di conquistare gli spazi interni.
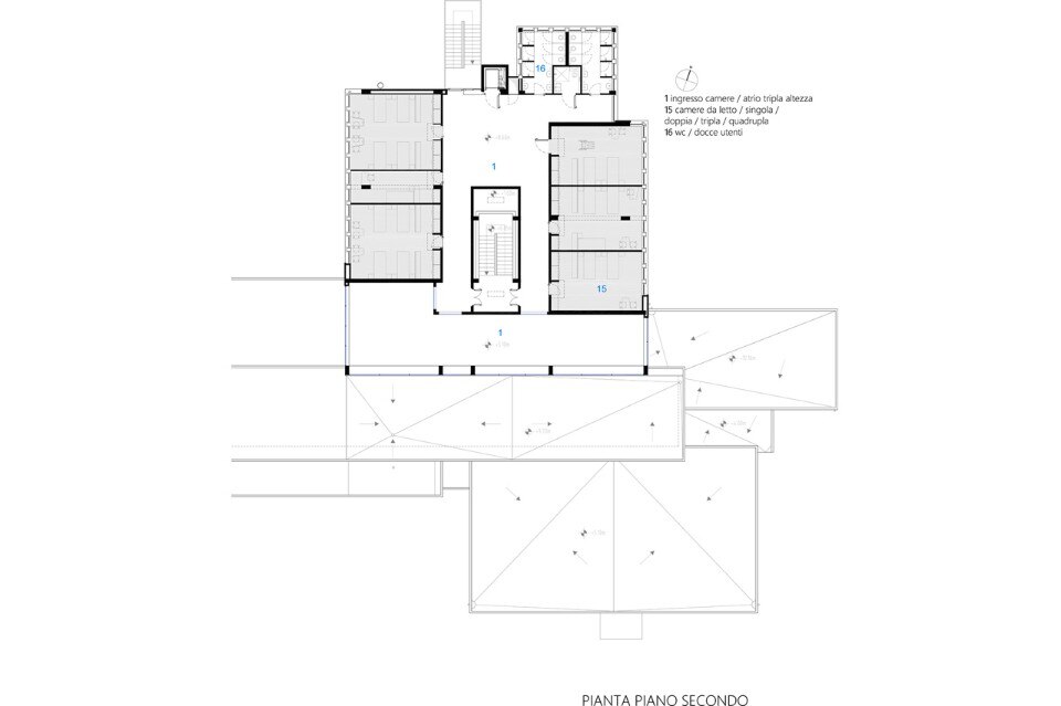
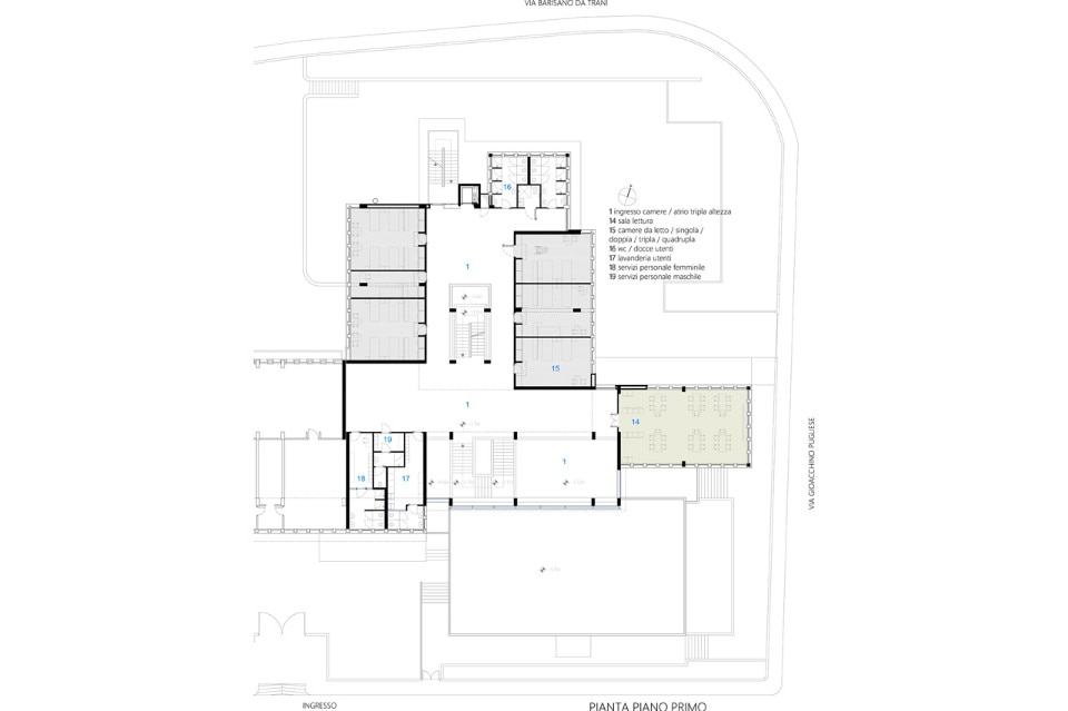
Dove erano le aule didattiche oggi trovano posto, uffici, mensa, cucina e camere da letto. L’atrio a tripla altezza è diventato un luogo cerniera, d’incontro tra chi vi abita e il quartiere; intorno a questo spazio sono localizzate le attività culturali, di divulgazione e comunitarie, la sala conferenze, l’aula di formazione e, al primo piano, la sala lettura.
Due scale e un sistema di rampe collegano e raccordano i vari dislivelli interni. Ai piani primo e secondo si trovano sedici camere da letto che possono ospitare 32 persone, i bagni e la lavanderia.
L’intonaco bianco, il pavimento in gres fine porcellanato e la pietra di Trani, queste le superfici dure. Il legno per le pavimentazioni della sala conferenze e dell’aula di formazione, con i rivestimenti acustici in legno, le superfici morbide. Gli arredi delle camere, disegnati da RTPS, in multistrato di betulla, contribuiscono a rendere questo luogo meno di transito e più accogliente.
L’intervento ha previsto un adeguamento impiantistico radicale basato su fonti energetiche rinnovabili, che ha migliorato le prestazioni termiche dell’involucro edilizio anche con i nuovi serramenti a taglio termico altamente performanti.
Al fine di contenere al massimo i consumi energetici è stato realizzato un impianto centralizzato sia per il riscaldamento che per il raffrescamento, oltre che per la produzione di acqua calda sanitaria.
Galleria
C:\Users\Marco\Desktop\DOMUS WEB\DOMUS WEB A4 (1)
C:\Users\Marco\Desktop\DOMUS WEB\DOMUS WEB A4 (1)
Ferrhotel, Bari
Programma: riconversione di edificio pubblico
Team di progetto: RTPS Costructura consulting s.c., Marco Mazzella, Francesco Aurelio Loiacono
Direzione lavori: Costructura consulting s.c., Marco Mazzella
Coordinamento della sicurezza in fase di esecuzione: Francesco Aurelio Loiacono
Committente: Comune di Bari – Ministero dell’Interno
Impresa: Nec s.r.l. Geom. Giovanni Troccoli
Costo: € 1.203.137,31
Area: 2.400 mq
Completamento: 2015
