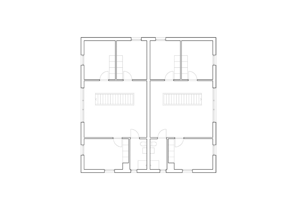
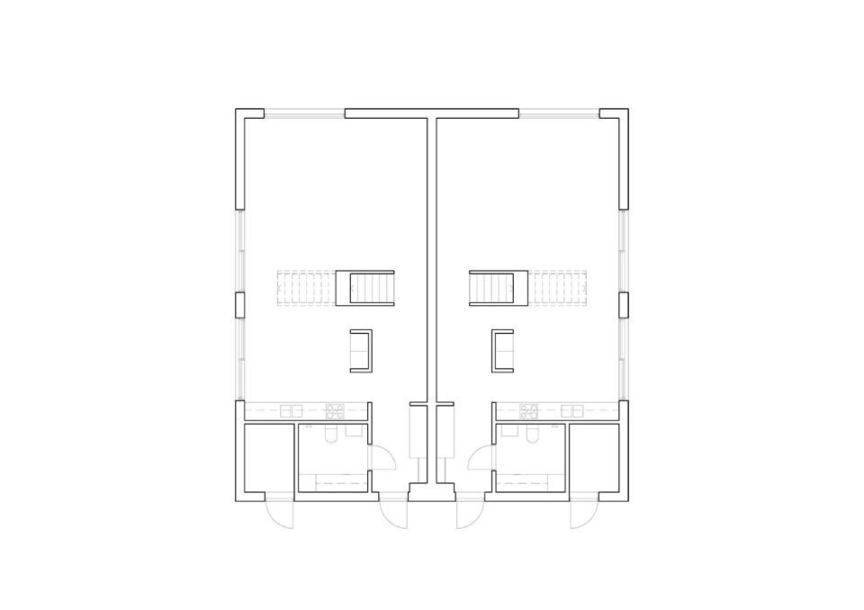
Sunnersta è un progetto che consiste di tre edifici, costruito su un sito roccioso nei dintorni di Uppsala, Svezia. I tre edifici sono distribuiti a diverse altezze ed emergono dalla topografia del sito come volumi semplici, sostituendo una villa esistente.
View gallery
Three houses standing out of steep rocks and tall trees in a Swedish landscape
Hermansson Hiller Lundberg, Sunnersta, Uppsala, Svezia, 2017. Foto Mikael Olsson
Three houses standing out of steep rocks and tall trees in a Swedish landscape
Hermansson Hiller Lundberg, Sunnersta, Uppsala, Svezia, 2017. Foto Mikael Olsson
Gli edifici sono avvolti da un rivestimento di abete con finitura neutra, suddiviso in quattro porzioni che si differenziano per l’orientamento dei pannelli.
Nelle due porzioni che determinano l’altezza delle aperture, i pannelli sono disposti verticalmente, mentre le cornici marcapiano che segnano i due livelli di ciascun edificio sono caratterizzate da un orientamento orizzontale.
Questo motivo esalta la simmetria delle facciate, mentre profili metallici sottili affilano la silhouette degli edifici. Come risultato, le linee nette delle tre case si stagliano drammaticamente sullo sfondo delle rocce ripide e degli alberi ad alto fusto che caratterizzano il sito.
Nel corso della sua storia, lo studio ha lavorato a edifici di scala diversa; la sua attività si radica strettamente alla disciplina dell’architettura e ai suoi strumenti.
Samuel Lundberg, uno dei partner dello studio, ha spiegato questo aspetto del lavoro di Hermansson Hiller Lundberg come un processo condiviso che plasma l’immaginario del team:
“Fin dall’inizio, ci siamo concentrati molto sull’architettura, sugli edifici: spesso viaggiamo e li visitiamo insieme. Quando progettiamo, ci riferiamo all’architettura e alla sua storia, evitando citazioni letterali; anche se siamo interessati a molte espressioni della cultura, come la letteratura e l’arte, il nostro studio si ispira all’architettura stessa”.
Sebbene Sunnersta possa apparire come il risultato di un approccio progettuale risoluto, Hermansson Hiller Lundberg spiega che la genesi parte da un dialogo continuo tra i partner dello studio:
“Condividiamo una continua riflessione sui progetti e proprio perchè siamo tre non riusciamo a trovare una soluzione facilmente. Ciò che accade è imprevedibile, spesso complesso: discutiamo e disegniamo i nostri progetti insieme, poi quando il progetto è definito, uno dei partner diventa responsabile del progetto. Non siamo gelosi delle nostre idee e lavoriamo affinché il progetto non ci soddisfa”.
Lo studio è stato fondato nel 2006 dagli architetti Andreas Hermansson, Andreas Hiller e Samuel Lundberg, che si sono incontrati durante i loro studi al KTH Royal Institute of Technology di Stoccolma.
- Progetto:
- Sunnersta
- Luogo:
- Uppsala, Svezia
- Architetto:
- Hermansson Hiller Lundberg
- Area:
- 1080 mq
- Completamento:
- 2017
