
Questa villa incornicia la natura come un’opera d’arte
Il contesto naturale diventa parte integrante del progetto in questa casa, dove le ampie finestre firmate ERCO lasciano entrare luce e vegetazione, creando un dialogo continuo tra interno ed esterno.
La villa realizzata da Russell Jones è caratterizzata da cemento bianco puro e una tettonica semplice, a Waalre, tra un bosco di abeti e dune antiche di sabbia. Il sito era precedentemente occupato dalla villa di Louis Christian Kalff per Frans Otten, genero di Anton Philips, presidente della società tecnologica olandese Philips. All’epoca, la società desiderava attrarre un’elite di manager Philips nell’area di Eindhoven, e Kalff (1897-1976) – che lavorò come architetto, designer e direttore artistico per l’azienda – progettò diverse ville a Waalre, dove Philips aveva comprato grandi appezzamenti di bosco fuori dalla città.


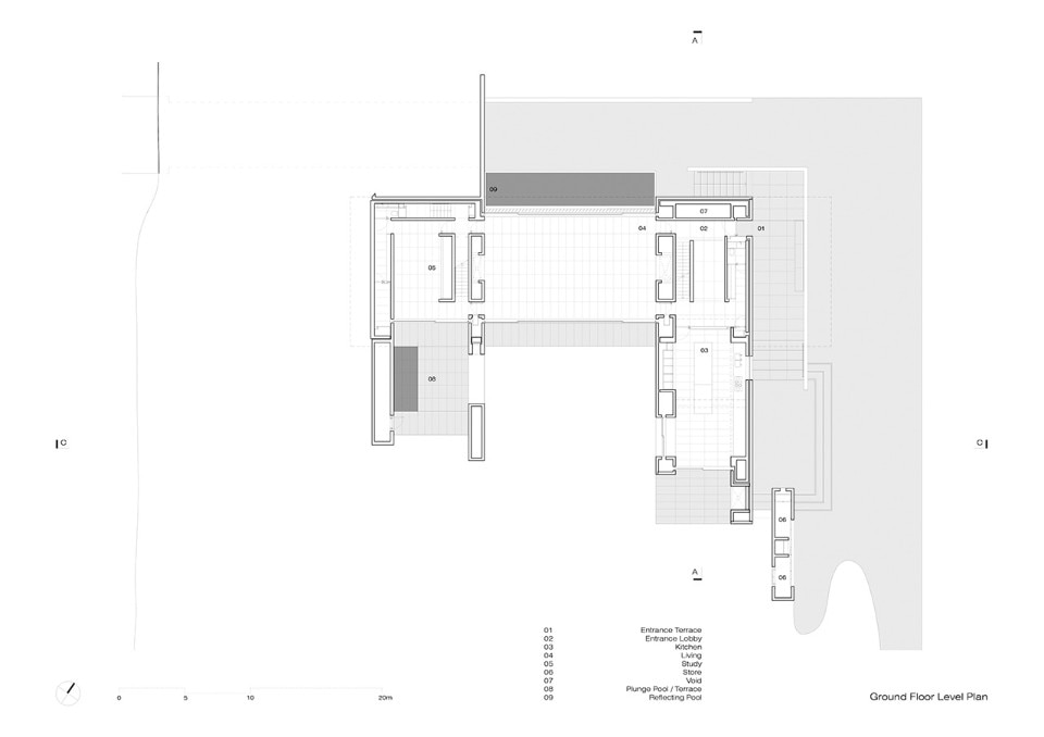
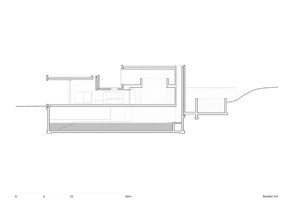
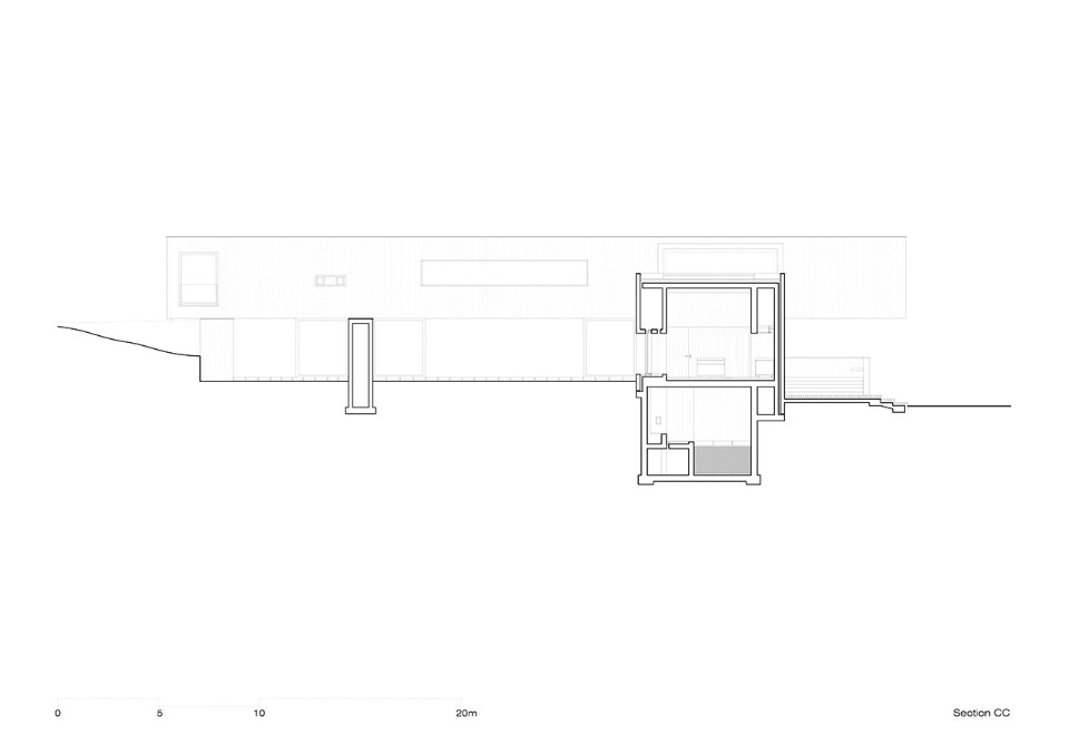
Villa Waalre, nel progetto di Russell Jones, è un ampio edificio di 1.200 mq in un lotto di 7.000 mq; essa è orientata verso sud e sfrutta le principali caratteristiche naturali del sito per stabilire un rapporto esterno-interno con l’ambiente circostante. Il diossido di titanio è stato aggiunto al cemento esaltando la purezza del bianco; il fluido è stato colato utilizzando tavole di abete in moduli, che hanno lasciato una traccia distintiva sulla superficie dell’intero edificio. L’efficienza dell'edificio si basa sulla separazione termica di muro interno ed esterno, tutti realizzati in calcestruzzo strutturale.


Il piano terra dell’edificio ospita la zona giorno per la vita dei membri della famiglia, organizzati attorno ad un ampio soggiorno, mentre il primo piano ospita cinque camere da letto. Il soggiorno e la maggior parte delle camere sono esposte a sud e sono fornite di ampie aperture vetrate. Una piscina sotterranea di 25 metri di lunghezza copre la maggior parte della superficie del piano seminterrato. L’acqua ritorna negli esterni, dove diverse piscine rettangolari completano la composizione della planimetria
- Progetto:
- Villa Waalre
- Luogo:
- Waalre, area di Eindhoven, Paesi Bassi
- Programma:
- casa unifamiliare
- Architetto:
- Russell Jones
- Team di progetto:
- Eleni Makri, Melissa Beasley, Malcolm Thorpe, Nicholas Ierodiaconou, Ross Tredget, Nick Vullings, Hannah Guy
- Management del progetto:
- Royal Haskoning
- Costruttore:
- BurgtBouw
- Ingegneria strutturale:
- Arup Amsterdam
- Consulente per il calcestruzzo:
- Henk Oude Kempers
- Servizi idraulici e ambientali:
- Gebr. Van Hout
- Servizi elettrici:
- Mansveld
- Serramenti:
- TGM
- Piscine e specchi d'acqua:
- LoTec
- Falegnameria, mobili e complementi:
- Retera
- Strategia del paesaggio:
- Studio Diekema
- Piantumazione:
- Jacques van Leuken
- Area:
- 1200 mq
- Completamento:
- 2015

Oltre la decorazione: Porcelanosa e il linguaggio di Fitwall
Materiali e superfici danno personalità agli spazi, e Fitwall può essere applicato non solo su pareti verticali, ma anche soffitti, arredi ed elementi decorativi, diventando l’elemento identitario dell’ambiente.