Galleria
/Users/FilipiOliveira/Dropbox/PRESS RELEASE OBRAS/CASA MCNY/PLANTAS | CORTES/MCINERNEY LAYOUT REVISTA 01-09-2016.dwg
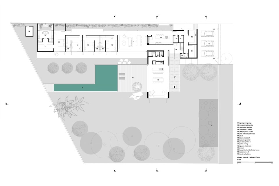
Mf+arquitetos, Casa MCNY, pianta
/Users/FilipiOliveira/Dropbox/PRESS RELEASE OBRAS/CASA MCNY/PLANTAS | CORTES/MCINERNEY LAYOUT REVISTA 01-09-2016.dwg
Mf+arquitetos, Casa MCNY, sezione
/Users/FilipiOliveira/Dropbox/PRESS RELEASE OBRAS/CASA MCNY/PLANTAS | CORTES/MCINERNEY LAYOUT REVISTA 01-09-2016.dwg
Mf+arquitetos, Casa MCNY, sezione
/Users/FilipiOliveira/Dropbox/PRESS RELEASE OBRAS/CASA MCNY/PLANTAS | CORTES/MCINERNEY LAYOUT REVISTA 01-09-2016.dwg
Mf+arquitetos, Casa MCNY, sezione
Casa MCNY, Franca, Brazil
Tipologia: casa unifamiliare
Architetti: mf+arquitetos
Paesaggio: Vivian Viana
Costruzione: Roman Villa Engineering
Superficie: 516 mq
Completamento: 2016
