Nel quartiere di Jardim América, a San Paolo, lo Studio brasiliano mk27 ha progettato un padiglione multiuso per Micasa, un’azienda di mobili, che si aggiunge a Vol.A e Vol.B, ovvero il primo negozio e l’edificio di supporto progettato nel 2007 sempre da Studio mk27. Mentre Vol.B è una solida struttura in cemento, il nuovo padiglione è compatto ma appare come un volume leggero e opalino. L’edificio, pulito e dalla struttura ritmata, è risultato della recente ricerca dello studio sulla costruzione veloce.
Galleria
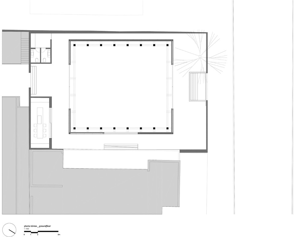
La pianta quadrata di Vol.C, di 15x15 m, offre uno spazio flessibile per ospitare funzioni eterogenee: il suo uso nel tempo varierà da negozio, a spazio espositivo, a residenza temporanea per gli artisti invitati. I prospetti sono divisa in due strisce orizzontali, dove la più bassa è caratterizzata da metallo bianco, mentre lastre in policarbonato traslucido avvolgono quella superiore. La scelta dei materiali conferisce leggerezza e valorizza il gioco di ombre e luci. Questa divisione è presente anche negli interni, dove viene mostrata la struttura in legno del padiglione, che di dispiega nelle variazioni dei giunti. Una sottostruttura in legno supporta l’involucro dell’edificio. L’altezza del soffitto di 7,5 m è esaltata da lampade a sospensione di Isamu Noguchi.
Galleria
- Progetto:
- Micasa Vol.C
- Luogo:
- San Paolo, Brasile
- Programma:
- edificio multiuso
- Architetto:
- Studio mk27
- Architetti responsabili:
- Marcio Kogan, Marcio Tanaka (co-architetto)
- Team di progetto:
- carlos costa, diana radomysler, laura guedes, mariana ruzante, mariana simas, oswaldo pessano, raquel reznicek, renata furlanetto, samanta cafardo, tamara lichtenstein
- Area:
- 230 mq
- Completamento:
- 2018
