Nella zona di Rives de la Haute Deûle a Lille, Atelier Tarabusi ha completato un edificio per uffici per start-up, le cui facciate sono realizzate con 1500 mattoni forati autoportanti.
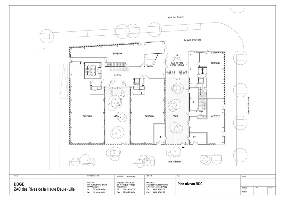
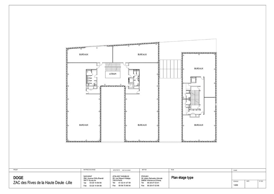
Doge è una struttura di 5,100 mq situata nel cuore del distretto Eura-Technologies, dove il tratto comune di gran parte degli edifici esistenti - grandi edifici industriali, strisce di alloggi per lavoratori dalla scala più minuta e strutture di dimensioni intermedie di nuova costruzione - è l'uso della terracotta.
Galleria
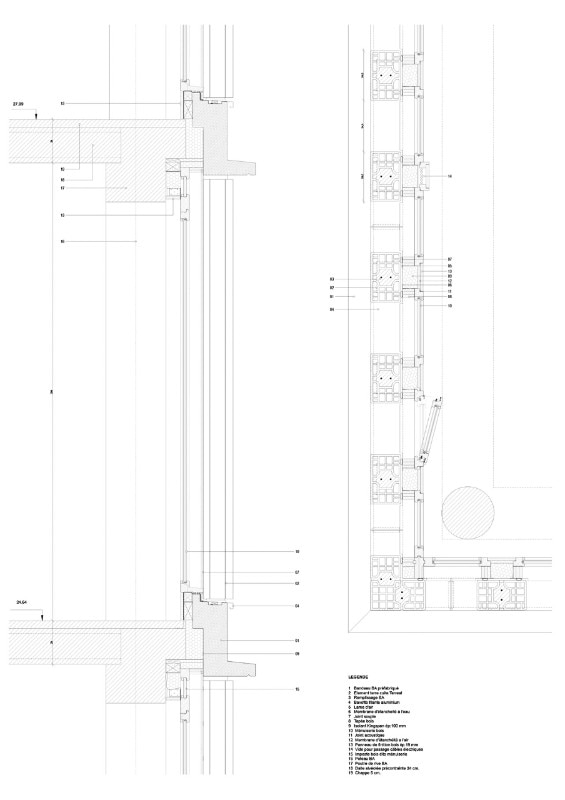
Per evitare l'uso del materiale come rivestimento, la scelta dello studio è ricaduta su giganteschi mattoni autosufficienti in combinazione con lastre di vetro. I mattoni sono stati progettati specificamente per questo progetto in modo che corrisponda all'altezza del pavimento dell'edificio: 33x20x280 cm. I pezzi sono stati installati meccanicamente consentendo un processo di costruzione rapido e asciutto, senza necessità di malta e strutture di supporto. Il design generale delle facciate evoca l'uso tradizionale del materiale in cui la matrice ritmica di giganteschi mattoni cavi viene completata con lastre prefabbricate di cemento bianco.
- Progetto:
- Doge
- Programma:
- edificio per uffici
- Luogo:
- Lille, Francia
- Architetti:
- Atelier Tarabusi
- Team di progetto:
- M. Del Gaudio, A. Benarroche, I. Feltrin, M. Kopecky, A. Raffaelli
- Strutture e impianti tecnici:
- Projex
- Area:
- 5100 mq
- Completamento:
- 2017
asas das dasd
asdasdasd
asdasdasd
asdasd
