Lo studio Egide Merteens Plus Architects ha completato una residenza unifamiliare di mattoni a De Haan, in Belgio. Il progetto si trova in un lotto ad angolo tra due strade rurale. Un muro di mattoni chiuso e impenetrabile racchiude l’edificio e il giardino, garantendo sicurezza e privacy. Una grande finestra apre la struttura altrimenti completamente introversa e crea un ponte visivo tra la casa e il contesto rurale.
Galleria
14.595.33 presentatie 2017.11.08 (PT)
14.595.33 presentatie 2017.11.08 (PT)
14.595.33 presentatie 2017.11.08 (PT)
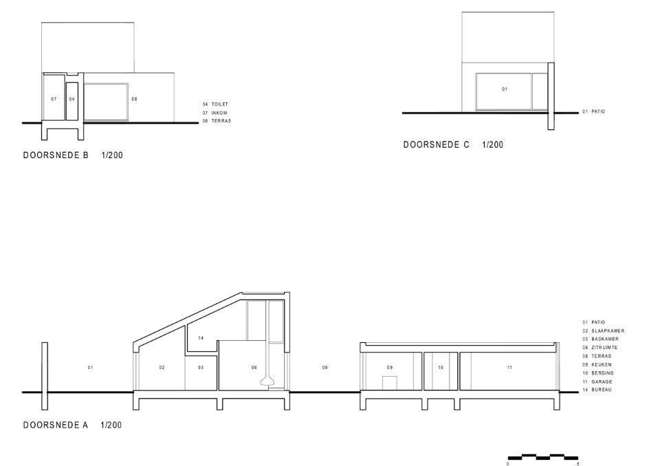
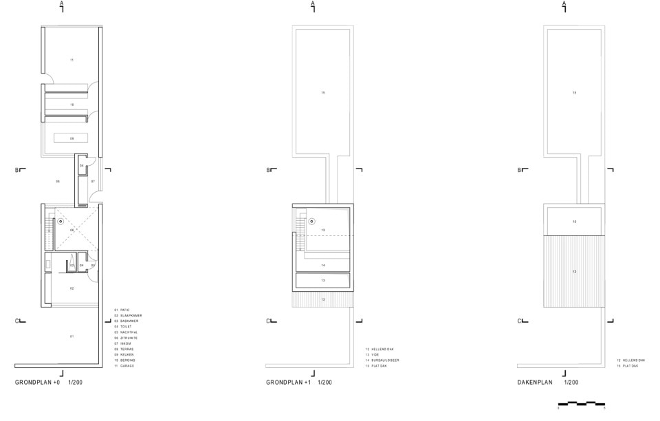
Dietro il muro compatto si nasconde un’abitazione aperta. Le grandi vetrate offrono una vista sui giardini privati. Ogni stanza ha un rapporto visivo con questi intimi ambienti esterni. L’architettura dei due volumi esterna le diverse funzioni: la zona giorno si trova sotto un tetto piano, mentre le camere da letto hanno un tetto a falda. Una grande finestra nella parte laterale di questo blocco rende gli ambienti molto luminosi.
- Progetto:
- Casa unifamiliare aperta
- Luogo:
- De Haan
- Architetto:
- Egide Merteens Plus Architects
- Completamento:
- 2017
