Garcés de Seta Bonet completa la ristrutturazione e l’ampliamento dell’edificio storico del Palais de Justice di Strasburgo. L’intervento consiste principalmente nella riarrangiamento degli interni e nel nuovo volume sul tetto dell’edificio.
Galleria
P:\1102_concurs strasbourg\1102-30_concurs\1102-30_panneaux 02 02_V (1)
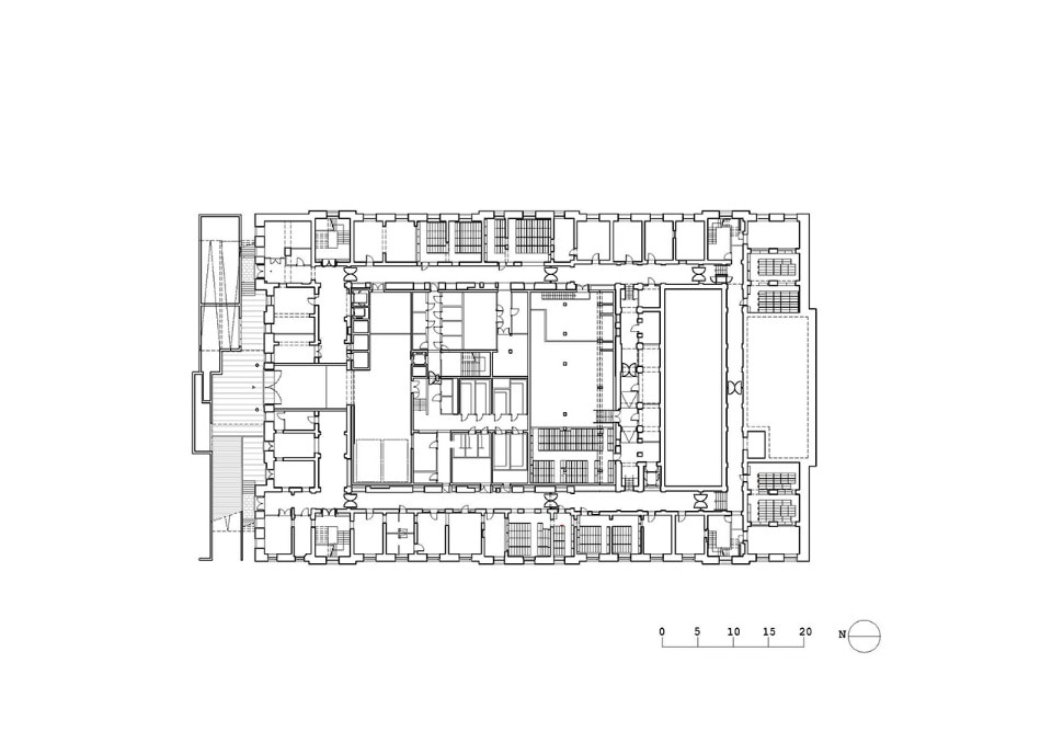
La sequenza della Salle des Pas Perdus, il cortile interno e lo spazio dell’aula di tribunale è il nucleo centrale. La qualità funzionale e spaziale raggiunta attraverso questa operazione porta i flussi dei visitatori direttamente nel cuore dell’edificio e garantisce la necessaria indipendenza dei percorsi dedicati allo staff e ai lavoratori del tribunale. L’inserimento del cortile interno ha inoltre permesso una maggiore illuminazione naturale.
L’innesto di pannelli metallici installati sulla facciata principale anticipa la presenza del nuovo volume del tetto. La composizione dei tetti a falda dell’estensione interagisce con gli edifici storici circostanti, consentendo al Palais de Justice di riconquistare il suo ruolo di landmark della città di Strasburgo.
- Progetto:
- ristrutturazione e estensione del Palais de Justice
- Progamma:
- edificio pubblico
- Architetti:
- Garcés de Seta Bonet architects
- Team di progetto:
- SVC architects – co-contractors, AVA – acoustic, BET – Setec Building, GV – Engineering, HQE – Elithis, Graphic Design – Teschner-Sturacci
- Area:
- 14.920 mq
- Completamento:
- 2016
