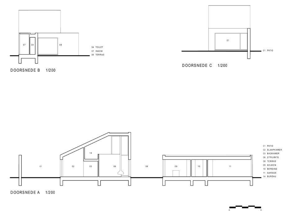
Egide Meertens Plus Architects has completed a brick single family resindence in De Haan, Belgium. The design of this house is implanted onto the location of a building plot: a corner plot at the junction of two rural roads. A closed brick wall embraces the building and its front garden, creating the necessary security with respect to these two streets. A big window breaks through the closed structure, allowing a visual bridge between the house and its surroundings.
View gallery
14.595.33 presentatie 2017.11.08 (PT)
14.595.33 presentatie 2017.11.08 (PT)
14.595.33 presentatie 2017.11.08 (PT)
Behind this wall lurks an open ground-floor dwelling. Big windows offer a view of an indoor garden and the back garden. Each room has a visual relationship with this intimate outdoor environment. The architecture of the two volumes externalises the different functions: The living rooms are located under a flat roof, whilst the bedrooms have a pitched roof. A big window in the side wall of this upstairs floor draws in plenty of daylight. The roof slope reverberates via the void deep into the room.
- Project:
- Open family home
- Location:
- De Haan, Belgium
- Architect:
- Egide Meertens Plus Architecten
- Completion:
- 2017
