In un quartiere vivace e dinamico della città catalana, gli architetti Manu Pagès e Victor Lacima hanno realizzato la ristrutturazione di un appartamento al secondo piano di un edificio tradizionale che dimostra come sia possibile, anche in pochi metri quadrati, godere della massima libertà spaziale e flessibilità funzionale.
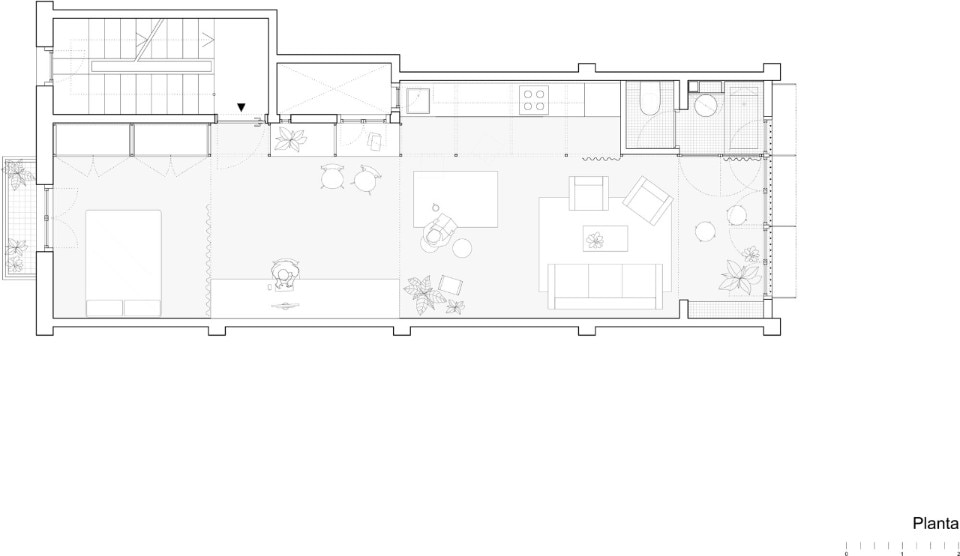
Al passo con le esigenze sempre più variabili dell’utenza metropolitana, l’appartamento è concepito per ospitare una molteplicità di attività intercambiabili. Nella pianta ad andamento longitudinale, a parte gli arredi fissi di servizi e cucina attestati lungo la parete laterale, lo spazio centrale è privo di qualsiasi elemento specificamente connotato e si presta ad ospitare diverse funzioni a seconda del mood del momento: da una tradizionale zona giorno con adiacente camera da letto, ad un deposito, ad un allestimento per proiezioni o con ampie tavolate per momenti di convivialità.
La ristrutturazione rimarca chiaramente l’opera contemporanea rispetto al contesto preesistente, senza alcuna pretesa di sovrapposizione ma anzi enfatizzando la natura ruvida e accogliente dell’involucro storico caratterizzato da murature portanti con tessitura dei laterizi a vista e travi lignee. Una leggera struttura metallica, discosta dalla muratura originaria, dichiara il processo di stratificazione dell’intervento. I rivestimenti in legno naturale dei mobili cucina, della parete dei servizi e la pavimentazione in cemento liscio esaltano il carattere essenziale ma caldo e confortevole dell’abitazione.
La palette cromatica dai toni chiari di pareti e soffitto accentua l’atmosfera luminosa e spaziosa dell’ambiente dove le finestre situate sulle testate opposte lasciano penetrare una diffusa luce naturale.
Un concetto di abitare informale che prevede una libera e mutevole appropriazione dello spazio da parte di chi lo vive e che trasforma un appartamento in un “contenitore” pronto ad essere costantemente e facilmente “riprogrammato”.
- Progetto:
- Casa Caño
- Progetto architettonico:
- Manu Pagès (Manu Pagès Taller d’Arquitectura) + Victor Lacima (Victor Lacima Arquitectura)
- Luogo:
- Barcellona
- Costruzione:
- OAW
- Committente:
- privato
