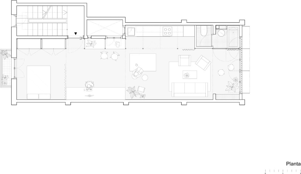
In a lively and dynamic district of the Catalan city, architects Manu Pagès and Victor Lacima have renovated a flat on the second floor of a traditional building, demonstrating how it is possible to enjoy maximum spatial freedom and functional flexibility even in a few square metres.
Keeping pace with the increasingly variable needs of metropolitan users, the flat is designed to host a variety of interchangeable activities. In the longitudinal plan, apart from the fixed bathroom and kitchen furnishings along the side wall, the central space is devoid of any specifically characterised elements and lends itself to hosting different functions depending on the mood of the moment: from a traditional living area with adjacent bedroom, to a storage room, a projection room or a large table for convivial moments.
The renovation clearly emphasises the contemporary work in relation to the existing context, without any pretense of superimposition but rather emphasising the rough, welcoming nature of the historic shell characterised by load-bearing walls with exposed brickwork and wooden beams. A light metal structure, detached from the original masonry, declares the stratification process of the intervention. The natural wood cladding of the kitchen units, the service wall and the smooth concrete floor enhance the essential but warm and welcoming character of the home.
The light colour palette of the walls and ceiling accentuates the bright and spacious atmosphere of the room, where the windows at the opposite ends let in diffuse natural light.
A concept of living that envisages a free and changeable appropriation of space by those who live in it and that transforms a flat into a “container” ready to be constantly and easily “reprogrammed”.
- Project:
- Casa Caño
- Architects:
- Manu Pagès (Manu Pagès Taller d’Arquitectura) + Victor Lacima (Victor Lacima Arquitectura)
- Location:
- Barcelona
- Construction:
- OAW
- Client:
- private
