Galleria
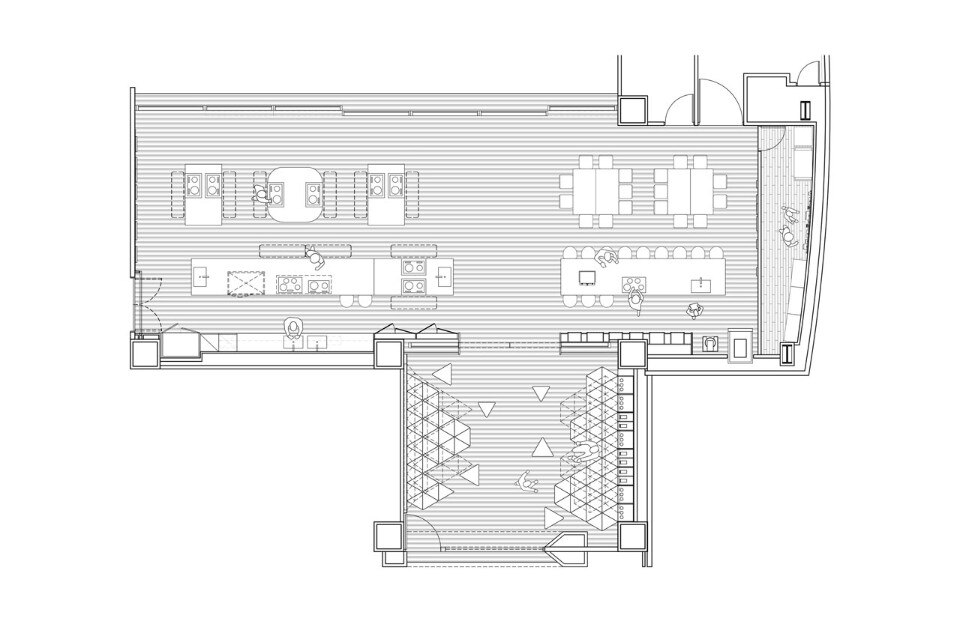
In pianta la cucina ha una forma a “T” ed è divisa in tre zone: una cucina, una tavola fredda e uno spazio per lo svago e il relax. Le prime due zone sono separate da uno spazio rettangolare, in modo da mantenere i bambini piccoli lontani dai fuochi delle cucine. La cucina è formata da una serie di credenze, un bancone per l’insegnante e quattro cucine mobili. La tavola fredda fornisce invece prodotti scaldati al forno e le bevande.
Kitchen of Science, Taipei
Tipologia: cucina – laboratorio
Architetto: K-Architect
Completamento: 2017
