Amazebowls

Il progetto di 64North a Los Angeles è caratterizzato da una copertura scultorea che forma una serie di cupole e si estende all’esterno del perimetro del negozio.

64North, Amazebowls, Los Angeles, 2016
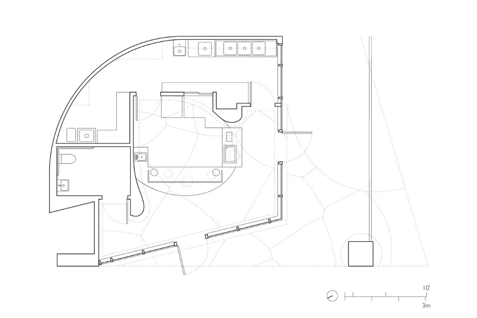
Il negozio si trova al capolinea sud della metropolitana di One Santa Fe, a Los Angeles. Caratteristica principale del progetto è il soffitto, scolpito e scavato, che forma una serie di cupole. Le forme classiche sono astratte, aggregate, scalate – formando un unico e complesso elemento contemporaneo.
64North, Amazebowls, Los Angeles, 2016
64North, Amazebowls, Los Angeles, 2016
La copertura del negozio si estende anche fuori dal suo perimetro, arrivando a coprire anche un pezzo del marciapiede vicino. In questo modo diviene meno netta la separazione tra interno ed esterno e si invitano i passanti a entrare nel locale. La strada è estensione all’aperto del negozio, che avrebbe altrimenti un ingombro ridotto.
64North, Amazebowls, Los Angeles, 2016
64North, Amazebowls, Los Angeles, 2016
Pareti curve di acero modellano l’ingresso e il bancone di pietra dalla forma ellittica e creano un ambiente caldo e domestico, in constrapposizione con l’astratta topografia della copertura. La configurazione e la materialità, assieme al gioco di luci appese al soffitto, crea una coreografia di volumi, luci e superfici.

Amazebowls, Los Angeles
Tipologia: negozio
Architetti: 64North
Illuminazione: Sean O’Connor
Costruzione: DLD
Produzione a controllo numerico: MXT-MTHD
Completamento: 2016

Ultime News

Altri articoli di Domus

China Germany India Mexico, Central America and Caribbean Sri Lanka Korea icon-camera close icon-comments icon-down-sm icon-download icon-facebook icon-heart icon-heart icon-next-sm icon-next icon-pinterest icon-play icon-plus icon-prev-sm icon-prev Search icon-twitter icon-views icon-instagram