Amazebowls

Designed by 64North in Los Angeles, this shop features a scooped ceiling overhead, sculpted from a series of domes that expands its presence beyond the store’s perimeter.

64North, Amazebowls, Los Angeles, 2016
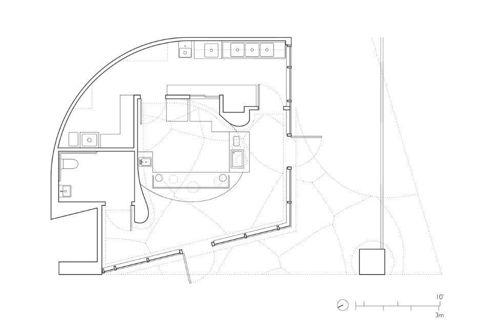
Located at the southern terminus of One Santa Fe, the iconography of the store is defined by a scooped ceiling overhead, sculpted from a series of domes. These classical forms are abstracted, aggregated, and scaled 
into a contemporary, complex, non-uniform whole.
64North, Amazebowls, Los Angeles, 2016
64North, Amazebowls, Los Angeles, 2016
Extending beyond the store’s perimeter to encompass the surrounding sidewalk, the breadth of this canopy blurs interior and exterior and is a welcoming invitation to passersby. It expands the store’s presence along the street, shelters outdoor seating beneath, and extends the store’s otherwise modest interior footprint.
64North, Amazebowls, Los Angeles, 2016
64North, Amazebowls, Los Angeles, 2016
Within the store, curvilinear maple walls embrace the entry and an elliptical stone counter, creating a warm, haptic counterpoint to the abstract topography overhead. This interplay of materiality and configuration, further animated by the pendants dotting the space, creates an ever-changing choreography of volume, surface, and light.

Amazebowls, Los Angeles
Program: cafè
Architects: 64North
Lighting: Sean O’Connor
Contractor: DLD
CNC Fabrication: MXT-MTHD
Completion: 2016

Latest on News

Latest on Domus

China Germany India Mexico, Central America and Caribbean Sri Lanka Korea icon-camera close icon-comments icon-down-sm icon-download icon-facebook icon-heart icon-heart icon-next-sm icon-next icon-pinterest icon-play icon-plus icon-prev-sm icon-prev Search icon-twitter icon-views icon-instagram