Galleria
/Users/dagmars/Dropbox/Havlicek_byt Na Hrebenkach/projekt/Hrebenky_press_vycistene vykresyI.dwg
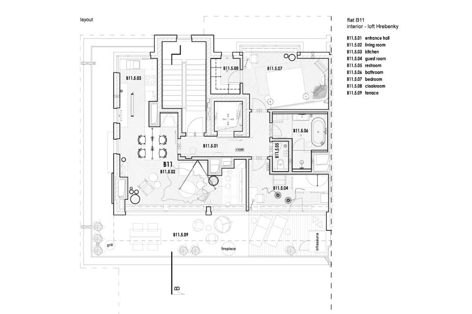
Formafatal, Loft Hřebenky, pianta
/Users/dagmars/Dropbox/Havlicek_byt Na Hrebenkach/projekt/Hrebenky_press_vycistene vykresyI.dwg
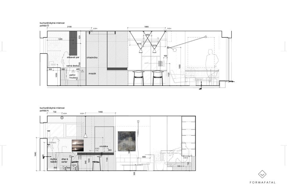
Formafatal, Loft Hřebenky, alzati
/Users/dagmars/Dropbox/Havlicek_byt Na Hrebenkach/projekt/Hrebenky_press_vycistene vykresyI.dwg
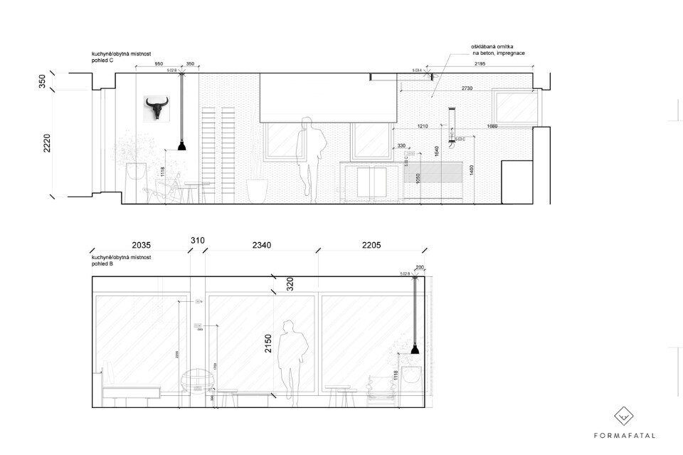
Formafatal, Loft Hřebenky, alzati
Loft Hřebenky, Ptaga, Repubblica Ceca
Tipologia: appartamento
Architetto: Dagmar Štěpánová / Formafatal
Area: 85 sqm
Completamento: 2016
