The glass doors with steel frame were atypically made according to architects original design. In contrast to them are the solid door with the hidden doorframe, which are not charging the attention. They almost disappear.
All the furniture, 44 pieces, were designed and realized to measure with great attention to details. Some iconic 50s pieces were bought on the market.
View gallery
/Users/dagmars/Dropbox/Havlicek_byt Na Hrebenkach/projekt/Hrebenky_press_vycistene vykresyI.dwg
Formafatal, Loft Hřebenky, plan
/Users/dagmars/Dropbox/Havlicek_byt Na Hrebenkach/projekt/Hrebenky_press_vycistene vykresyI.dwg
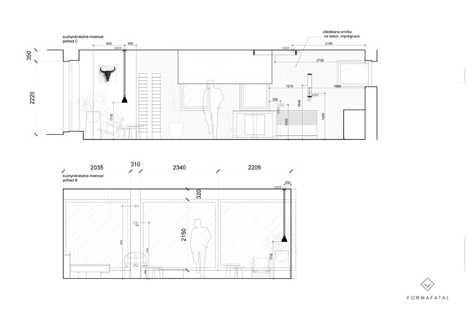
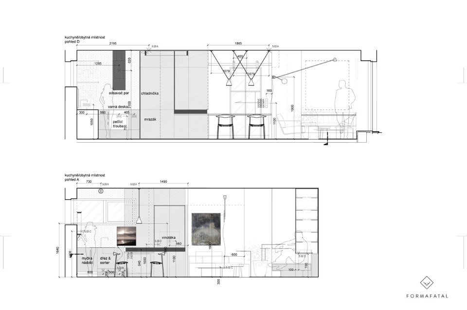
Formafatal, Loft Hřebenky, elevations
/Users/dagmars/Dropbox/Havlicek_byt Na Hrebenkach/projekt/Hrebenky_press_vycistene vykresyI.dwg
Formafatal, Loft Hřebenky, elevations
Loft Hřebenky, Prague, Czech republic
Program: apartment
Architect: Dagmar Štěpánová / Formafatal
Area: 85 sqm
Completion: 2016
