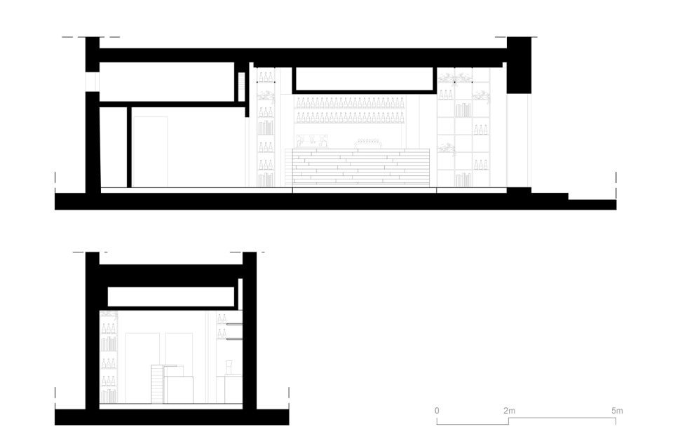
L’ingresso del locale, piano unico a livello strada, si apre sulla zona caffetteria, dove gli arredi in legno – sedute, banchi e tavoli, oltre ad elementi contenitori, fioriere sulle pareti e corpi illuminanti pensili – sono concepiti come moduli innestati su una struttura a griglia in ferro, che dal pavimento sale su pareti e soffitto, marcando tridimensionalmente lo spazio.
Nell’area centrale del locale, dove si concentra l’attività serale, irrompe un volume sbieco in ferro trattato color ruggine che abbraccia pavimento, pareti e soffitto e include il bancone bar, illuminato da luci soffuse a sospensione.
Galleria
Ai Giudici, Palermo
Programma: bar
Architetti: Studio DiDea (Nicola Giuseppe Andò, Emanuela di Gaetano, Alfonso Riccio, Giuseppe De Lisi)
Committente: Dipoli snc
Impresa: Senatore Carmelo - S.G Mettalica di Sciortino Giuseppe
Area: 50 mq
Completamento: 2015
