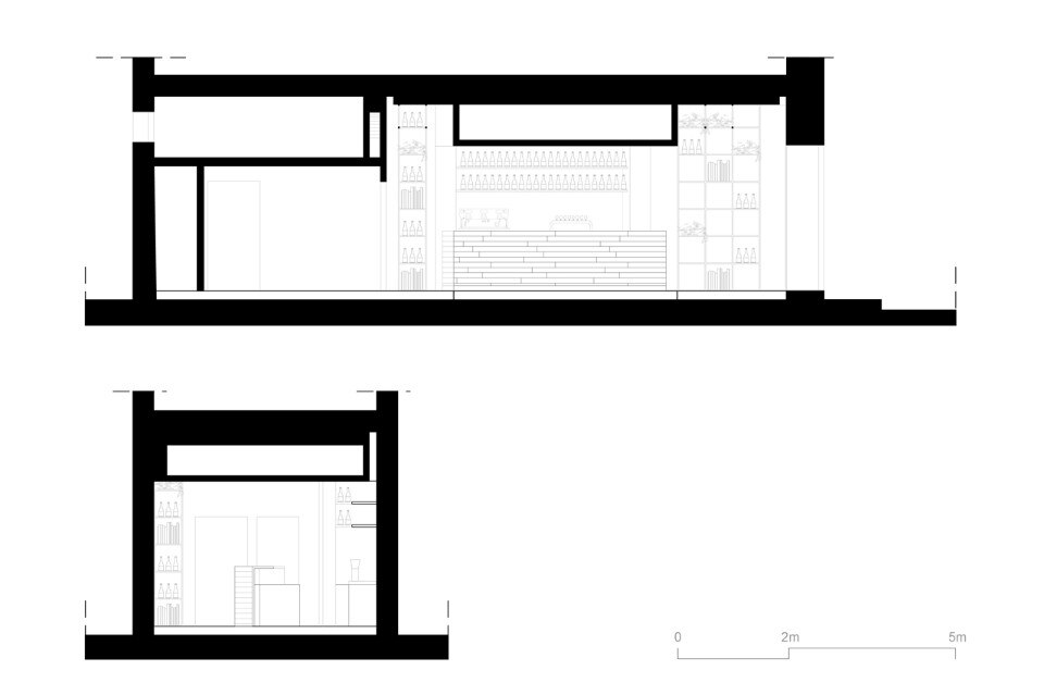
From the main entrance, you get inside the cafeteria area, where wooden furnitures – tables and chairs, flower boxes, lighting bodies from the ceiling – are conceived as modular elements and inserted onto a gridded metal framework running from walls to ceiling. Going forward, you meet the lounge bar area, where a rust colored iron leering volume wraps the floor, the walls and the ceiling.
The extremely flexible furniture guarantees numbers of settings, as the seats can be used as vertical (stools) or orizontal (benches) elements. The choice of a glass-raised floor has enabled to save and admire the original marble flooring – emphasized by led lights – and easily reach the entrance level.
View gallery
Ai Giudici, Palermo, Italy
Program: bar
Architects: Studio DiDea (Nicola Giuseppe Andò, Emanuela di Gaetano, Alfonso Riccio, Giuseppe De Lisi)
Client: Dipoli snc
Contractor: Senatore Carmelo – S.G Mettalica di Sciortino Giuseppe
Area: 50 sqm
Completion: 2015
