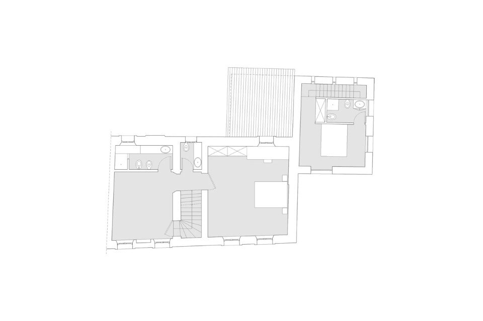
Dal punto di vista tipologico l’edificio presenta un unico piano abitabile rialzato, caratteristica che contraddistingue il tipo di destinazione d’uso per il quale l’edificio originariamente è stato costruito (casino di caccia), poiché veniva utilizzato solo saltuariamente per poche ore al giorno.
Lo stato di conservazione della casa richiedeva un intervento importante prima di comprometterne la funzionalità. Interventi puramente conservativi sono stati affiancati alla realizzazione ex novo di elementi architettonici. Sia al piano terra che al piano primo c’è stata una lieve ma sensibile ridistribuzione dello spazio per rendere abitabile e confortevole l’uso abitativo dell’edificio. Una recente e indelicata superfetazione è stata recuperata trasformandola nella nuova cucina, mentre due bagni sono stati realizzati al piano terra e piano primo.
Tutto il materiale fittile e lapideo recuperato durante il restauro è stato ripulito e riutilizzato. Il restauro che verrà concluso in più step prevede anche il recupero della torretta di pietra adiacente all’edificio e il ridisegno di un pergolato esterno ad uso garage e deposito.
Galleria
Casa Crotta, Arfanta, Treviso
Programma: casa unifamiliare
Architetti: Massimo Galeotti Architetto
Collaboratrice: Elisa Rizzato
Completamento: 2015
