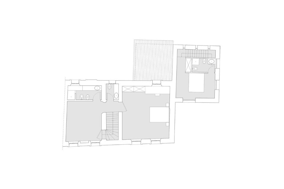
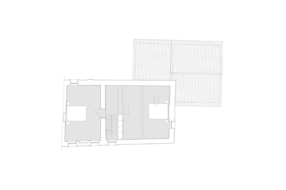
From a typological perspective, two distinctive floors compose the house but the habitative one is at the top. This is a characteristic that well explain the type of use for which the building was originally built (hunting lodge), because the house used to be exploited occasionally for few hours a day.
The conservation status of the house required a major intervention before compromising its functionality. Specific maintaining interventions have been complemented by the realization of entirely new architectural elements. In order to make the building’s use habitable and comfortable on both the ground floor and the first floor there was a slight but significant redistribution of space. An indelicate and superfluous volume recently added, has been recovered by transforming it into the new kitchen, while two bathrooms have been created, one on the ground floor and one on the first floor.
During the restoration all the terracotta and stone materials have been recovered, entirely cleaned and subsequently reutilised. The restoration will take several stages and it provides the recovery of the stone tower adjacent to the building and the redesign of an outdoor pergola used as a garage and storage too.
View gallery
Casa Crotta, Arfanta, Treviso, Italy
Program: single-family house
Architects: Massimo Galeotti Architetto
Collaborator: Elisa Rizzato
Completion: 2015
