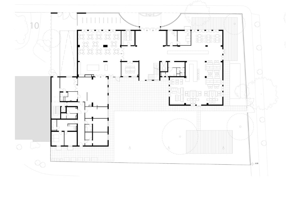
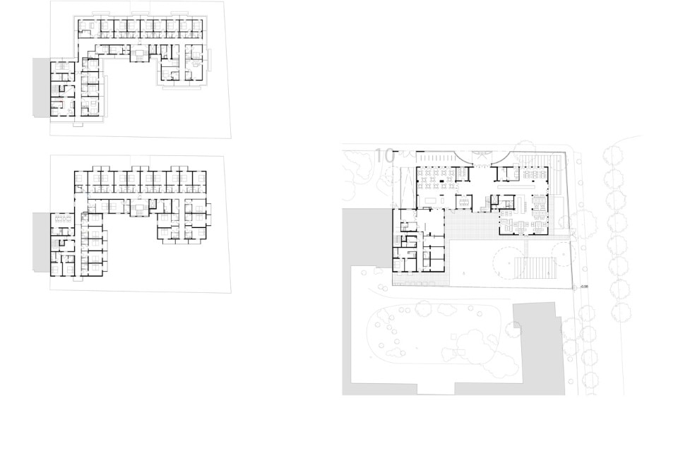
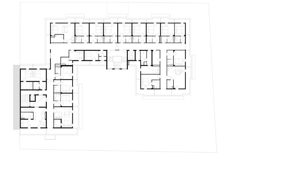
Nella progettazione degli spazi interni – hall, ristorante e bar, camere d’albergo e appartamenti – AllesWirdGut ha utilizzato pezzi esistenti, oggetti trovati, e un mix ingegnoso di elementi diversi.
Il colore ridotto, ben assortito ed elegante che riveste le superfici a vista è esaltato da arredi unici, pezzi originali recuperati dal passato, molti dei quali provenienti dal negozio dell’usato della Caritas, altri lasciati dai precedenti proprietari o donati dalla popolazione locale.
Galleria
AllesWirdGut, magdas hotel, Vienna. Photo © AllesWirdGut Architektur / Guilherme Silva Da Rosa
AllesWirdGut, magdas hotel, Vienna. Photo © AllesWirdGut Architektur / Guilherme Silva Da Rosa
AllesWirdGut, magdas hotel, Vienna. Photo © AllesWirdGut Architektur / Guilherme Silva Da Rosa
AllesWirdGut, magdas hotel, Vienna. Photo © AllesWirdGut Architektur / Guilherme Silva Da Rosa
AllesWirdGut, magdas hotel, Vienna. Photo © AllesWirdGut Architektur / Guilherme Silva Da Rosa
AllesWirdGut, magdas hotel, Vienna. Photo © AllesWirdGut Architektur / Guilherme Silva Da Rosa
AllesWirdGut, magdas hotel, Vienna. Photo © AllesWirdGut Architektur / Guilherme Silva Da Rosa
AllesWirdGut, magdas hotel, Vienna. Photo © AllesWirdGut Architektur / Guilherme Silva Da Rosa
AllesWirdGut, magdas hotel, Vienna. Photo © AllesWirdGut Architektur / Guilherme Silva Da Rosa
AllesWirdGut, magdas hotel, Vienna. Photo © AllesWirdGut Architektur / Guilherme Silva Da Rosa
AllesWirdGut, magdas hotel, Vienna. Photo © AllesWirdGut Architektur / Guilherme Silva Da Rosa
AllesWirdGut, magdas hotel, Vienna. Photo © AllesWirdGut Architektur / Guilherme Silva Da Rosa
HOP
AllesWirdGut, magdas hotel, Vienna. Photo © AllesWirdGut Architektur / Guilherme Silva Da Rosa
magdas hotel, Vienna
Tipologia: hotel
Architetti: AllesWirdGut
Responsabile di progetto: Johanna Aufner
Collaboratori: Andrea Zuniga Espinoza, Simon Höbel
Ingegneri: 3:0 Landschaftsarchitektur
Committente: magdas
Costo: 1,5 M €
Area: 6.460 mq
Completamento: febbraio 2015
