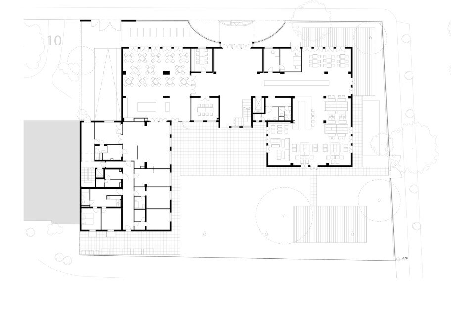
In the design the interior spaces – lobby, restaurant and bar, hotel rooms, and apartments – AllesWirdGut used existing pieces, found objects, and an ingenious mix of elements.
The reduced, well-matched and elegant color concept that informs the visible surfaces is accentuated with distinctive individual furnishings, pieces with a past and finds with a history. Caritas’ own carla thrift store was a rich source here, as was furniture left behind by former residents or donated to the project by the local population.
What once had been pretty conservative built-in closets was remodeled under the supervision of Daniel Büchel into tables, nightstands, and wall coat racks. Uneven walls were revamped using the proven technique of pattern roller painting.
Work tables with “tags” from students of the St. Pölten New Design University were adapted for the hotel lobby and the restaurant.
View gallery
HOP
magdas hotel, Vienna
Program: hotel
Architects: AllesWirdGut
Project architect: Johanna Aufner
Collaborators: Andrea Zuniga Espinoza, Simon Höbel
Engineers: 3:0 Landschaftsarchitektur
Client: magdas
Cost: 1,5 M €
Area: 6,460 sqm
Completion: February 2015
