Dispositivi ombreggianti esterni vengono utilizzati per filtrare la radiazione solare in estate e possono essere ripiegati in inverno per mantenere la casa più calda. La ventilazione a flusso trasversale è incentivata da tubi freddi a terra che attirano l’aria dal pavimento nel lato sud della casa e la eliminano attraverso i lucernari a nord.
Le porte scorrevoli in vetro a tutta altezza creano non solo un’interazione visiva tra interno ed esterno, ma permettono anche la piena penetrazione del sole in inverno. Durante i mesi estivi queste aperture saranno chiuse facendo scorrere le pareti verdi. Il verde presegue in copertura con un tetto giardino che andrà ad aggiungersi alla coibentazione in lana di vetro installata nelle cavità.
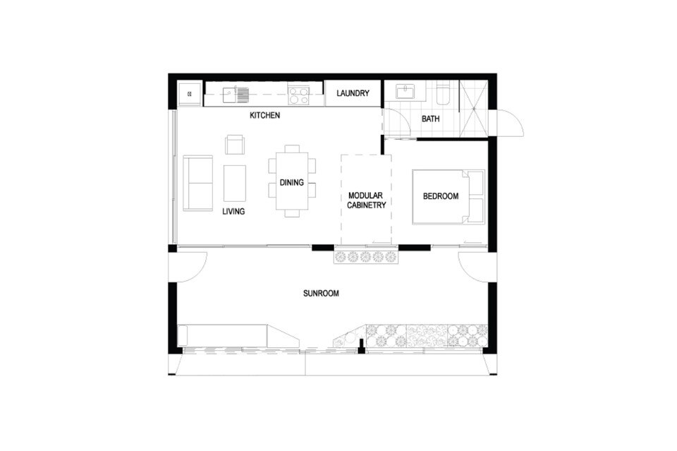
Una zona cuscinetto separa l’ambiente esterno da quello interno, dando ai suoi occupanti un maggiore controllo del comfort. Questo “cuscinetto”, progettato per affacciare verso nord, blocca il sole estivo prima che la radiazione raggiunga l’interno. In inverno cattura invece il calore solare, scaldando l’aria come fosse un radiatore e riportandola nella casa.
La casa è realizzata con materiali provenienti da fonti sostenibili e finiture prive di formaldeide e VOC. Le finestre sono realizzate con doppi vetri e taglio termico, gli elettrodomestici e gli accessori utilizzano energia sostenibile e gli armadi per asciugare il bucato sfruttano l’energia solare per ridurre al minimo l’energia e il riciclo dell’acqua.
La dimensione complessiva della casa è ridotto al minimo per controllare il consumo energetico senza compormettere lo spazio funzionale grazie all’uso di aperture a tutta altezza che creano uno spazio fluido e flessibile.
La progettazione è stata guidata dalla valutazione del ciclo di vita, calcolando le emissioni di carbonio dovute alle operazioni di produzione dei materiali e di costruzione. La valutazione comprende fondazioni, pavimenti, pareti, tetto, finitura interna, finitura esterna, servizi e accessori di base. I risultati misurati dimostrano che il progetto consente di risparmiare 37 kgCO2e all’anno per occupante.
Carbon Positive Prefabricated House, Melbourne
Produzione: ArchiBlox
