External shading devices are used to filter the harsh solar radiation in summer and then can be retracted in winter to keep the house warmer. Cross flow ventilation is enhanced with in-ground cool tubes that will pull air in from the floor in the south side of the house and purge through the clerestory (high) windows to the north.
Floor to ceiling glass sliding doors are installed to create not only a clean visual interaction between internal and external but also allowing full sun penetration in wintertime. During the summer months these openings will be blocked off by sliding edible garden walls. This green feature will wrap up over the roof of the house to create a green roof, which will add to the R6 wool insulation within the roofs cavities.
A buffer zone within the house separates the external environment from the internal, giving its occupants more control. This space, designed to face north, blocks the harsh summer sun before the radiation enters into the interior. It captures, though, the winter sun warming up the air, similar to a radiator, and drawing it back within the house.
The home becomes healthier by sourcing only high grade sustainably sourced building materials and formaldehyde and VOC-free finishes. Further to this the windows are double glazed and thermally broken, high draught proof seals, the appliances fixtures and fittings are of high sustainable and green energy ratings, drying cupboards for laundry use, solar power for energy minimisation and water recycling.
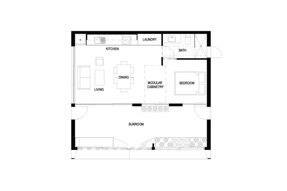
The overall size of house is kept to a minimum. This small volume house guarantees the usage of less electricity and power. This does not mean that the functionally of the space had been compromised, clever uses of joinery and the use of full height openings allows a free flowing space and generous area.
A Life Cycle Assessment has been carried out on the design, calculating the carbon emissions due to materials manufacture and building operations. The boundary of the assessment includes the building foundations, floors, walls, roof, internal finish, external finish, services and basic fittings. The results measured against a benchmark provides us with a Platinum rating. The total design equates to – 37 kgCO2e per year per occupant.
Carbon Positive Prefabricated House, Melbourne
Producer: ArchiBlox
