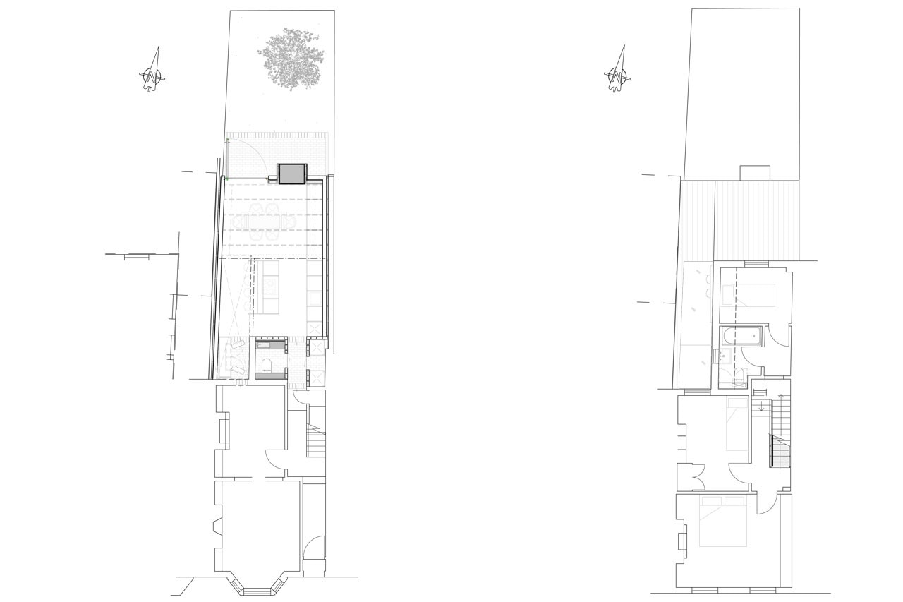
Sul retro del piano terra, una grande cucina con zona pranzo è delimitata da pareti strutturali in cemento grezzo a vista, spesse 15 centimetri. La copertura di questa nuova porzione del piano terra è stata creata comuna struttra dall’aspetto caldo, in legno multistrato a vista.
La struttura del multistrato è costituita da tre strati di compensato uniti a formare una piccola struttura di legno lamellare, sostenuta da piedi a T in metallo posati sulla parte superiore delle pareti di cemento.
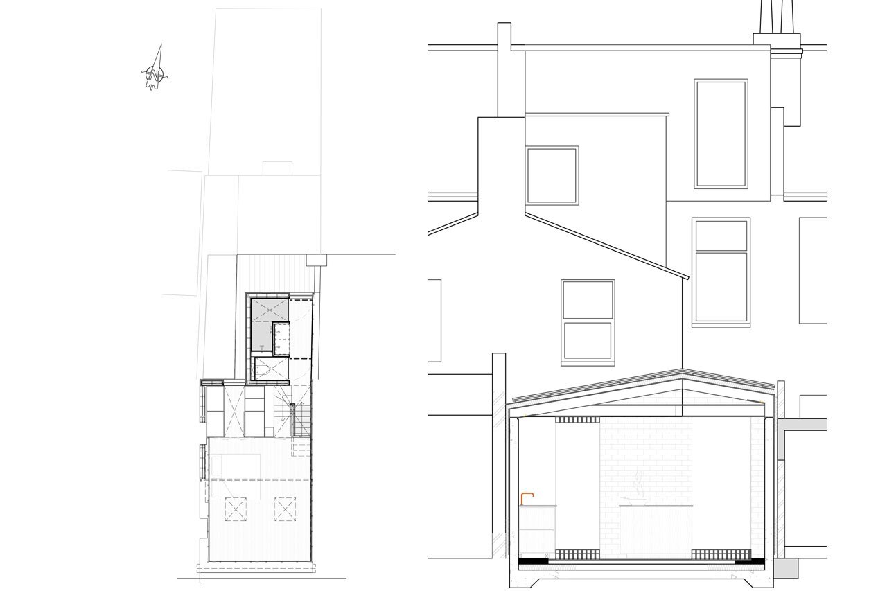
Un elemento in compensato si avvolge intorno e sopra la scalinata vittoriana esistente e il corridoio, delineando il nuovo layout. Le gronde della camera da letto sono state lasciate volutamente a vista per dare l’impressione di uno spazio più grande: l’occhio a leggere lo spazio in relazione al pavimento, facendo apparire l’ambiente molto più ampio rispetto alla soppalcatura tradizionale.
Il vetro sopra la scala permette alla luce del sole di penetrare in profondità nella casa. Subito dopo che ha finito di piovere, quando esce il sole e la luce filtra tra le gocce di pioggia, le pareti di compensato sembrano luccicare.
Galleria
12007_TENDER_v2014
12007_TENDER_v2014
12007_TENDER_v2014
Plywood House, Londra
Tipologia: casa unifamiliare
Architetti: Simon Astridge Architecture Workshop
Area: 134 mq
Completamento: 2014
