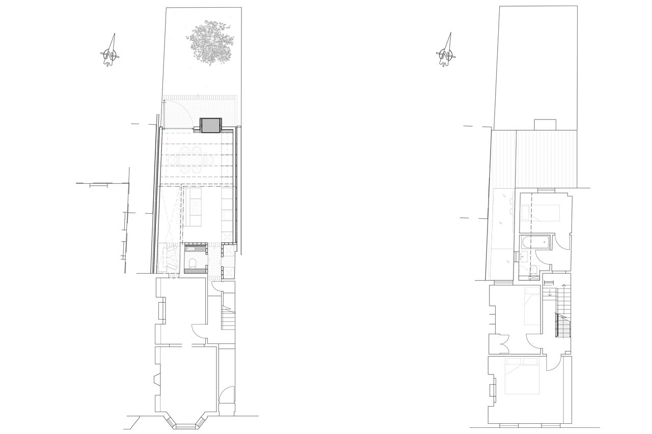
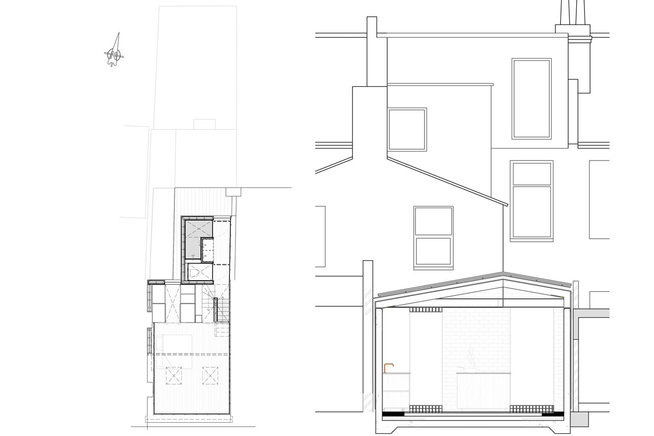
In the rear ground floor extended open plan kitchen and dining area, raw exposed internal 15cm wide structural concrete walls, were cast onto foundations. These act as the internal finish of the room along the side party walls. The new ground floor roof was created as a warm deck roof with exposed plywood structure.
The plywood structure consists of three layers of plywood laminated together to form a miniature timber glulam structure. This was supported on metal T feet that were secured into the top of the concrete walls.
A plywood staircase item wraps around and above the existing Victorian staircase and hallway and delineates the new contemporary parts from the original layout and finishes. The bedroom loft eaves were purposefully exposed to give the impression of a larger space with your eye reading the room as the total floor space, it feels a lot bigger than a traditional loft conversion.
Above the plywood staircase is another frameless glazed roof light that allows the sunlight and daylight to penetrate deep into the house. The magical part of this roof light is just after it has finished raining and the sun comes out and the sunlight pierces through temporary pooled parts of rain water that shimmer and reflect below onto the plywood wall finishes. It wasn’t planned for, but it is magical.
View gallery
12007_TENDER_v2014
12007_TENDER_v2014
12007_TENDER_v2014
Plywood House, London
Program: single-family house
Architects: Simon Astridge Architecture Workshop
Area: 134 sqm
Completion: 2014
