Galleria
Arquitectura en Movimiento Workshop
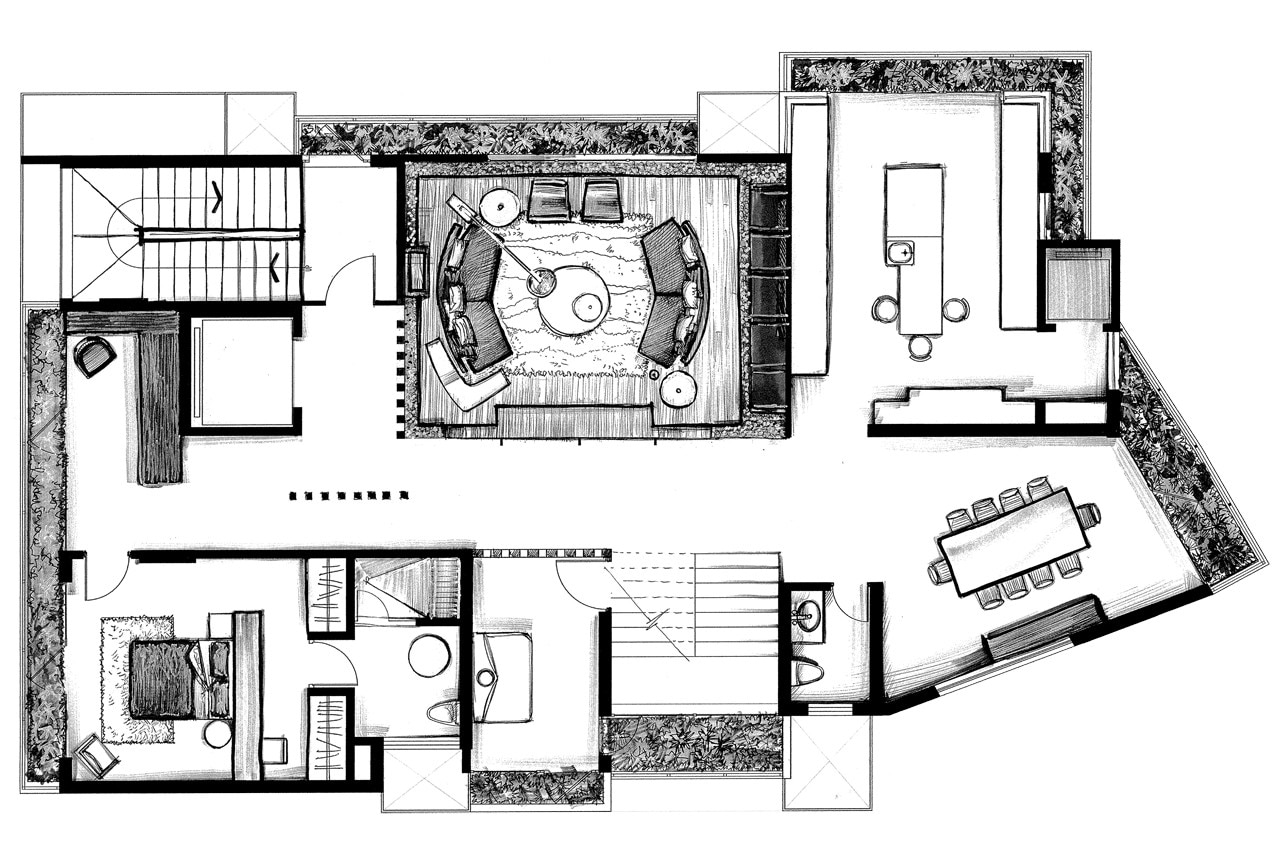
, Sdm Apartment, Mumbai, India. Pianta del primo piano
Sdm Apartment, Mumbai, India
Tipologia: appartamento
Architetti: Arquitectura en Movimiento Workshop
Completamento: 2014
