results
No results
Please enter a long search term
Sdm Apartment
In Mumbai the Sdm Apartment has been designed by Arquitectura en Movimiento Workshop with a wooden stair standing as a sculpture in the centre of the space.
Located in central Mumbai, the SDM apartment is characterized by the staircase located at the centre of the apartment.
It was designed as a sculpture in the space that can be seen almost from anywhere in the public areas, it becomes the articulator of spaces and its lines are replicated in other architectural elements such as blinds and ceiling.
Arquitectura en Movimiento Workshop , Sdm Apartment, Mumbai, India
The pooja room or prayer room was the subject of a major investigation that is expressed in each element, color and lighting, the carving work for the board is a real craft, integrating these elements in a contemporary way was the way to achieve a space for contemplation, spiritual communion, peace and harmony.
The living is a place where the ceiling is an important element and which subtly illuminates the area, the movement generated in it responds to the frame beams that form the structure: taking advantage of the space between beams was possible to gain the maximum height.
The kitchen as space for family reunion has been designed on simple lines which together with the materials create a serene and elegant atmosphere.
View gallery
SHARE
PIN IT
SHARE
PIN IT
SHARE
PIN IT
SHARE
PIN IT
SHARE
PIN IT
SHARE
PIN IT
SHARE
PIN IT
SHARE
PIN IT
Arquitectura en Movimiento Workshop , Sdm Apartment, Mumbai, India
SHARE
PIN IT
Arquitectura en Movimiento Workshop , Sdm Apartment, Mumbai, India
SHARE
PIN IT
Arquitectura en Movimiento Workshop , Sdm Apartment, Mumbai, India
SHARE
PIN IT
Arquitectura en Movimiento Workshop , Sdm Apartment, Mumbai, India
SHARE
PIN IT
Arquitectura en Movimiento Workshop , Sdm Apartment, Mumbai, India
SHARE
PIN IT
Arquitectura en Movimiento Workshop , Sdm Apartment, Mumbai, India
SHARE
PIN IT
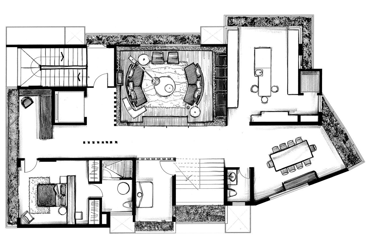
Arquitectura en Movimiento Workshop , Sdm Apartment, Mumbai, India. First floor plan
SHARE
PIN IT
Arquitectura en Movimiento Workshop , Sdm Apartment, Mumbai, India. Second floor plan