Ristorante a Nun’s Island

Nel nuovo ristorante a Nun’s Island l’interior designer Jean de Lessard, ispirato dalla teoria dei frattali, esplora la dimensione nascosta dello spazio.

Restaurant in Nun’s Island
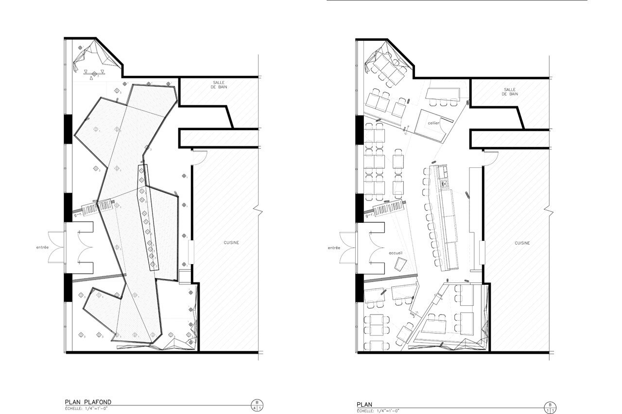
Ispirato dalla teoria frattale, Jean de Lessard offre con il progetto per il ristorante Chez Carl Tapas & BBQ un’interpretazione della geometria della natura e delle sue meravigliose irregolarità.
L’ingresso, uno dei punti principali del progetto, è chiaramente definito da motivi geometrici colorati nei toni del rosso e del rosa. Esso agisce come elemento di transizione dall’esterno verso lo spazio modulato attraverso strutture in acciaio tridimensionali. La profondità della piattaforma aerea ancorata a terra ora dà ritmo allo spazio.
Restaurant in Nun’s Island
Jean de Lessard, Ristorante Chez Carl tapas & BBQ, Nun’s Island, Canada
Questo progetto minimalista rappresenta una continuazione del pensiero del progettista sugli individui e sulla società. Le variazioni di quota di pavimenti e soffitti fanno in modo che lo spazio non sia mai percepito alla stessa maniera. Con le sue linee spezzate, lo spazio frammentato si suddivide in aree con un’atmosfera ancora più intima, senza però dare l’impressione di luoghi isolati. Jean de Lessard utilizza questo principio anche nella cantina (ovviamente asimmetrica) rivestita con lastre di rame, un metallo nobile del quale lo spazio sfrutta le proprietà riflettenti.
Jean de Lessard,  Restaurant Chez Carl tapas & BBQ, Nun’s Island, Canada
Jean de Lessard, Ristorante Chez Carl tapas & BBQ, Nun’s Island, Canada
L’abbondante uso del legno di acero strizza l’occhio al Quebec: un materiale nobile e rustico che ha qualità isolanti dal punto di vista termico e acustico e che esalta la luminosità dei colori e la morbidezza dei tessuti.


Ristorante Chez Carl tapas & BBQ, Nun’s Island, Canada
Tipologia: riqualificazione degli interni
Design: Jean de Lessard
Impresa: Castle Reno (Paul Cantwell)
Area: 114 mq
Completamento: 2014

 

Ultime News

Altri articoli di Domus

China Germany India Mexico, Central America and Caribbean Sri Lanka Korea icon-camera close icon-comments icon-down-sm icon-download icon-facebook icon-heart icon-heart icon-next-sm icon-next icon-pinterest icon-play icon-plus icon-prev-sm icon-prev Search icon-twitter icon-views icon-instagram