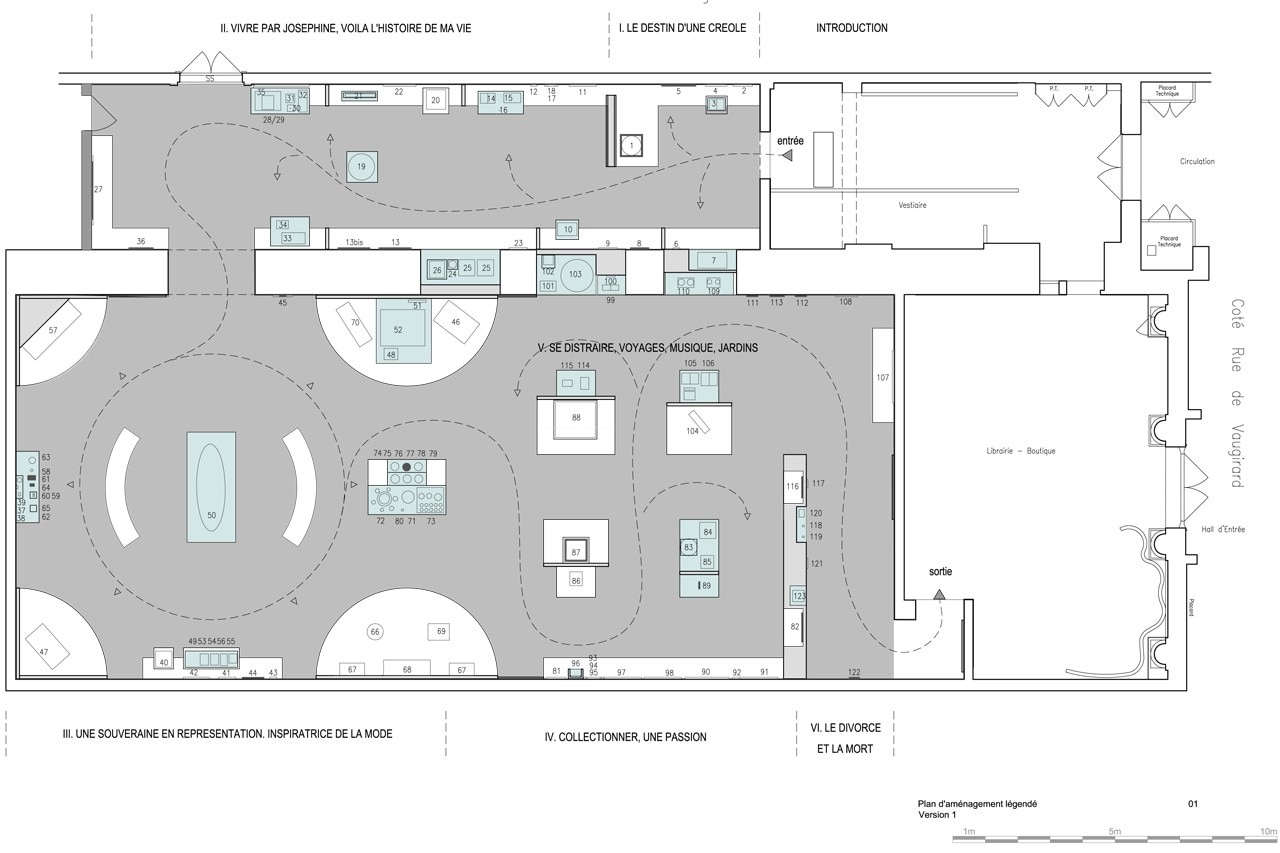
Come lei, icona senza tempo, il progetto della mostra include riferimenti al Settecento-Ottocento, reinterpretati in chiave contemporanea attraverso l’uso dell’oro e dei colori pastello.
Il percorso di visita temporale, fluido e sequenziale, guida il visitatore attraverso dei sottili cambiamenti di tono, dei binari per i quadri e degli elementi dell’allestimento.
Galleria
Allestimento della mostra “Josephine”, Musée du Luxembourg, Parigi
Design: Olivier Palatre Architects
Illuminazione: ABRAXAS Concept
Grafica: Voyou
Area: 530 mq
Completamento: 2014
