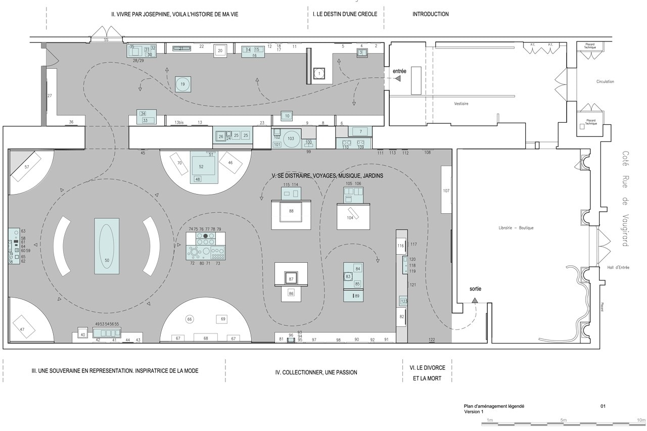
Just like Josephine, a timeless icon, the design of the exhibition includes references to the era; gilt and pastel colours given contemporary expression.
The visit is temporal, fluid, sequential and the visitor is guided using subtle changes of colour, picture rails and the exhibition furniture.
View gallery
Staging of the “Josephine” exhibition, Musée du Luxembourg, Paris
Design: Olivier Palatre Architects
Lighting: ABRAXAS Concept
Graphic Artist: Voyou
Area: 530 sqm
Completion: 2014
