Risultati
Nessun elemento trovato
Ricerca troppo corta
Plazma: Kukumuku
Plazma Architecture Studio ha progettato a Vilnius Kukumuku, un ristorante-teatro per famiglie con bambini disegnato per creare l’atmosfera di una domenica mattina di sole.
Kukumuku è un ristorante-teatro dedicato alle famiglie con bambini e situato nel centro di Vilnius.
L’idea è nata osservando che i luoghi pubblici sono raramente adattati per rispondere alle esigenze dei membri più giovani delle famiglie. Questo è il motivo per cui, durante l’intero processo di progettazione del ristorante Kukumuku, l’obiettivo principale è stato quello di prestare la massima attenzione a ciò che desiderano i bambini.
Plazma Architecture Studio, Kukumuku, Vilnius, Lituania
Si è convenuto che in un interno progettato per i bambini uno dei fattori più importanti è la luce, indispensabile per creare un’atmosfera calda e positiva. L’illuminazione si compone di due elementi: i corpi illuminanti decorativi – piccole sagome di case che pendono dal soffitto, disegnate appositamente per questo progetto, e fari funzionali accuratamente predisposti. Inoltre, la palette cromatica è stata scelta in modo che l’ambiente del ristorante diventasse un teatro neutro dove la presenza dei bambini e delle loro attività fosse l’elemento dominante. Le pareti, oltre che dalle case luminose, sono decorate da segni grafici che stimolano la curiosità e il pensiero creativo sia nei bambini sia negli adulti. Tutte queste caratteristiche hanno contribuito a creare l’atmosfera di una domenica mattina soleggiata, nonostante il ristorante occupi il piano terra di un antico palazzo in uno dei vicoli della città vecchia e nonostante il clima cupo di Vilnius.
Plazma Architecture Studio, Kukumuku, Vilnius, Lituania
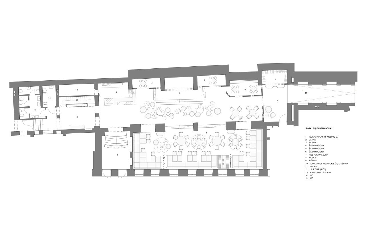
Un ristorante-teatro per i bambini non è una tipologia comune per un progetto di interni e quindi non era possibile avere un programma funzionale predeterminato e fisso. I bambini possono essere definiti ‘clienti creativi’, costantemente impegnati in nuove attività. È stato deciso che, all’interno del ristorante, la creatività dei bambini dovesse essere incoraggiata anziché vietata. Questa decisione ha dettato l’approccio multifunzionale allo spazio, che permettesse ai dipendenti del ristorante di svolgere le loro attività consentendo allo stesso tempo ai bambini di essere liberi di improvvisare i loro giochi. Le principali aree funzionali di Kukumuku sono quelle tradizionali di un ristorante, con un bar pasticceria, un teatro e aree gioco. Quando non sono previsti spettacoli teatrali il palco viene utilizzato per attività interattive con il personaggio olografico di Kukumuku, per la mini-discoteca e per altre attività di apprendimento. C'è anche un sistema mobile che permette di dividere lo spazio per ospitare feste e compleanni.
Plazma Architecture Studio, Kukumuku, Vilnius, Lituania
Nonostante lo spazio interno sia prevalentemente omogeneo, sono state previste alcune aree dedicate a specifiche attività. Questo permette ai bambini di giocare liberamente in tutto lo spazio principale, mentre gli adulti possono godere di un ristorante informale seduti ai loro tavoli e tenere sotto controllo i figli. Arredi e giochi sono stati scelti per le loro caratteristiche di sicurezza ed ergonomia.
Galleria
SHARE
PIN IT
SHARE
PIN IT
SHARE
PIN IT
SHARE
PIN IT
SHARE
PIN IT
SHARE
PIN IT
Plazma Architecture Studio, Kukumuku, Vilnius, Lituania
SHARE
PIN IT
Plazma Architecture Studio, Kukumuku, Vilnius, Lituania
SHARE
PIN IT
Plazma Architecture Studio, Kukumuku, Vilnius, Lituania
SHARE
PIN IT
Plazma Architecture Studio, Kukumuku, Vilnius, Lituania
SHARE
PIN IT
Plazma Architecture Studio, Kukumuku, Vilnius, Lituania
SHARE
PIN IT
C:\Users\plazmukai\Desktop\DOKAI\Kuku Muku Model (1)
Plazma Architecture Studio, Kukumuku, Vilnius, Lituania. Pianta del piano terra
SHARE
PIN IT
Kukumuku, Vilnius, Lituania Tipologia: ristorante e teatro per bambini Architetti: Plazma Architecture Studio Area: 300 mq Completamento: 2014