results
No results
Please enter a long search term
Plazma: Kukumuku
Plazma Architecture Studio designed in Vilnius Kukumuku, a restaurant-theatre for families with kids to create the constant mood of a sunny Sunday morning.
Kukumuku is a restaurant-theatre designed for families with kids and located in the heart of Vilnius city centre.
The idea came up due to the fact that public places are rarely adapted to accomodate the needs of the youngest members of the families. This is why, during the whole process of designing the Kukumuku restaurant, the main goal was to pay full attention to what is it that the kids want.
Plazma Architecture Studio, Kukumuku, Vilnius, Lithuania
It was agreed that in the interior designed for kids one of the most important factors is a light, warm and positive atmosphere. The lighting designed in order to accommodate this purpose is composed of two elements: the decorative luminaires – small house figures hanging from the ceiling, that were desiged exclusively for this project, and also the carefully-balanced functional lighting. In addition, a moderate colour palette was chosen so that the environment of the restaurant would become a background for the kids who are meant to dominate the space with their very own temperament and activities. Another atmospheric element to Kukumuku is the unique artwork on the back wall that features some abstract graphic design as well as lighting elements. It brings out curiosity and creative thinking for both kids and adults alike. All these features helped to create a constant delightful mood of a sunny Sunday morning in the restaurant despite not only the site being located in an ancient building in one of the narrow lanes of the old-town, but also the time of day or even the common gloomy weather of Vilnius.
Plazma Architecture Studio, Kukumuku, Vilnius, Lithuania
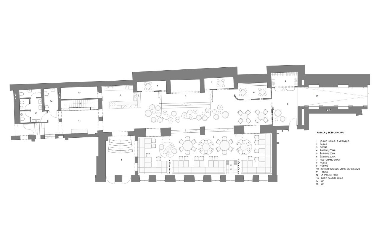
A restaurant-theatre for children is not a common typology for an interior project and thus it is impossible for it to have a pre-planned, fixed and clear programme. Children could perhaps be called creative clients, who are constantly coming up with some new activities. It has been decided that the creativity of kids should be encouraged rather than prohibited. This decision dictated the multi-funcional attitude towards the space, which, upon the finished design, helps the employees of the restaurant to successfully carry out various activities, while at the same time it doesn’t keep either them or the kids from being free to improvise all they want. The main function zones of the Kukumuku restaurant are those of a restaurant, a cupcake bar, a theatre and playing areas. When the theatre plays are not in action, the scene is being used for interactive activities with the holographic Kukumuku character, the mini-disco and other learning activities. There is also a pre-arranged scheme to divide the space for individual celebrations, i.e. birthday parties.
Plazma Architecture Studio, Kukumuku, Vilnius, Lithuania
Even though the Kukumuku restaurant is spatially homogenous, in order to achieve a certain amount of emotional comfort, certain unimposing functional zones for the kids and their family members have been installed. This allows kids playing freely all around the main space, while adults can enjoy a casual restaurant experience at their tables and also watch their kids in the meantime. Safe and ergonomic furniture and toys have been carefully picked so that parents would feel confident about their kids’ safety.
View gallery
SHARE
PIN IT
SHARE
PIN IT
SHARE
PIN IT
SHARE
PIN IT
SHARE
PIN IT
SHARE
PIN IT
Plazma Architecture Studio, Kukumuku, Vilnius, Lithuania
SHARE
PIN IT
Plazma Architecture Studio, Kukumuku, Vilnius, Lithuania
SHARE
PIN IT
Plazma Architecture Studio, Kukumuku, Vilnius, Lithuania
SHARE
PIN IT
Plazma Architecture Studio, Kukumuku, Vilnius, Lithuania
SHARE
PIN IT
Plazma Architecture Studio, Kukumuku, Vilnius, Lithuania
SHARE
PIN IT
C:\Users\plazmukai\Desktop\DOKAI\Kuku Muku Model (1)
Plazma Architecture Studio, Kukumuku, Vilnius, Lithuania. Ground floor plan
SHARE
PIN IT
Kukumuku, Vilnius, Lithuania Program: Restaurant and theater for kids Architects: Plazma Architecture Studio Area: 300 sqm Completion: 2014