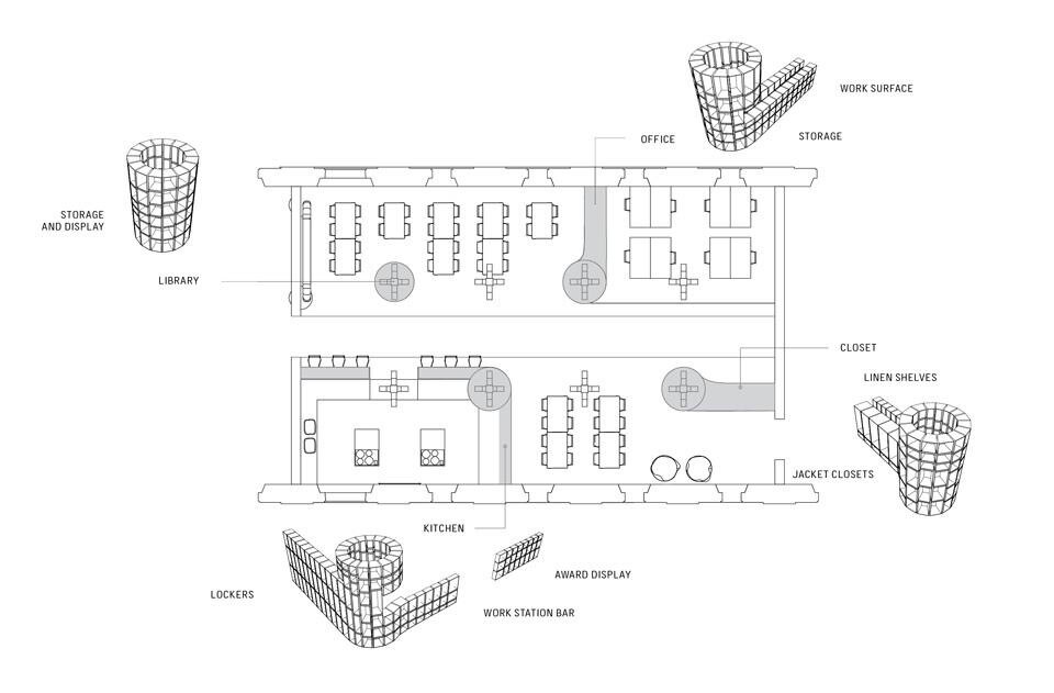
Le severe restrizioni che derivano dall'importanza storica dell'edificio ha definito un approccio non-intrusivo. GXN ha disegnato quattro contenitori centrali multi-funzione, ciascuno composto da oltre 500 cubetti di legno. Curvandosi nei 200 metri quadrati dello spazio, queste unità suddividono lo spazio in aree più piccole che ospitano il laboratorio della cucina, l'orto botanico, le aree per lo staff e gli uffici. Le forme organiche dei mobili si distinguono per l'utilizzo di funzionalità integrate—come la luce per esempio—che danno anche agli interni un tocco più leggero. "Per il progetto, abbiamo sviluppato un 'software vivente', che ha permesso di inviare disegni direttamente al computer", ha spiegato 3XN riguardo al processo di progettazione. "È un po' come stampare un testo appena scritto. Ma in realtà stiamo stampando mobili". L'interno è stato consegnato come un puzzle tridimensionale di oltre 5.000 pezzi, che sono stati assemblati senza l'aiuto di alcun falegname.
