via Scarpa De Masellis 2
Vallo della Lucania (SA)
Museo Arti Femminili è un museo basato su una collezione di oggetti artigianali, artistici, industriali e comunicativi legati all’universo femminile dei passati tre secoli. Il suo fascino sta in parte negli oggetti raccolti, e in parte nella sua natura di sorprendente carotaggio culturale attraverso gli strati della storia materiale secondo un angolo molto specifico e poco esplorato.
È un museo di oggetti che, in passato, si definivano arti minori, arti femminili o arti decorative. Gli oggetti che il visitatore vede sono mostrati all’interno della loro rete di relazioni e nel loro pieno valore di uso, simbolico, economico e culturale.
Il MAF conosce le tradizioniali categorie di organizzazione della cultura, ma parla al grande pubblico attraverso le emozioni mediate dalle cose. I dispositivi interattivi presenti permettono di apprezzare gli oggetti preziosi e i libri rari della collezione. Essi trasportano il visitatore dal suo mondo industriale e postindustriale in un mondo passato, nel quale il rapporto tra produzione industriale e artigianale è invertito.
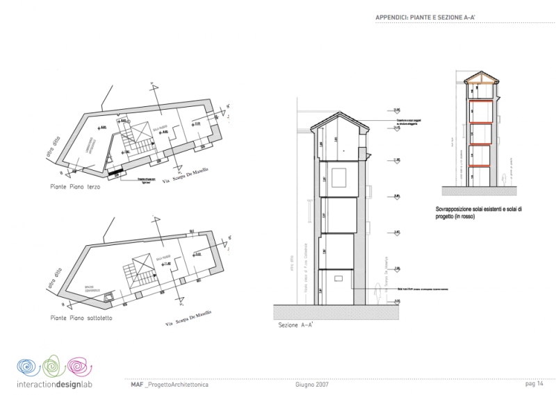
L’antico edificio dove ci troviamo viene modificato e reso unitario negli interni, e trasformato all’esterno in una facciata che racconta il passato e comunica con la città e I passanti.
Project leader: Line Ulrika Christiansen
Project manager: Ileana Pistoni
Progetto curatoriale: Id-Lab con Nunzia di Giacomo
Progetto architettonico: Ghigos Ideas, Gerardo Del Gaudio (ARC Studio), Id-Lab
Progetto dell’allestimento: Ghigos Ideas, Id-Lab
Installazioni interattive: Id-Lab
Direzione lavori: Gerardo Del Gaudio (ARC Studio)
Realizzazione: Geoappalti Srl
Immagine coordinata, sito web e comunicazione: Id-Lab
Testi e immagini: Walter Aprile, Nunzio, Rosaria, Fortunata e Nunzia Di Giacomo
Musiche e suoni: Luigi Mogrovejo e Gianfranco Marra
Suoni tradizionali: Giuseppe Palladino. Collezioni: Nunzio, Nunzia e Fortunata Di Giacomo
