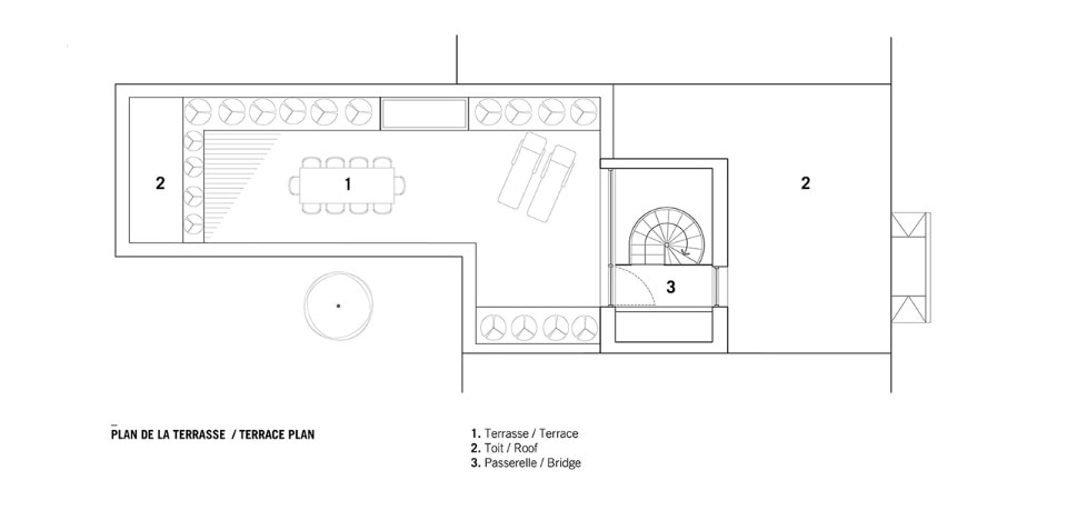
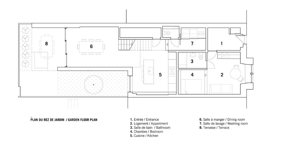
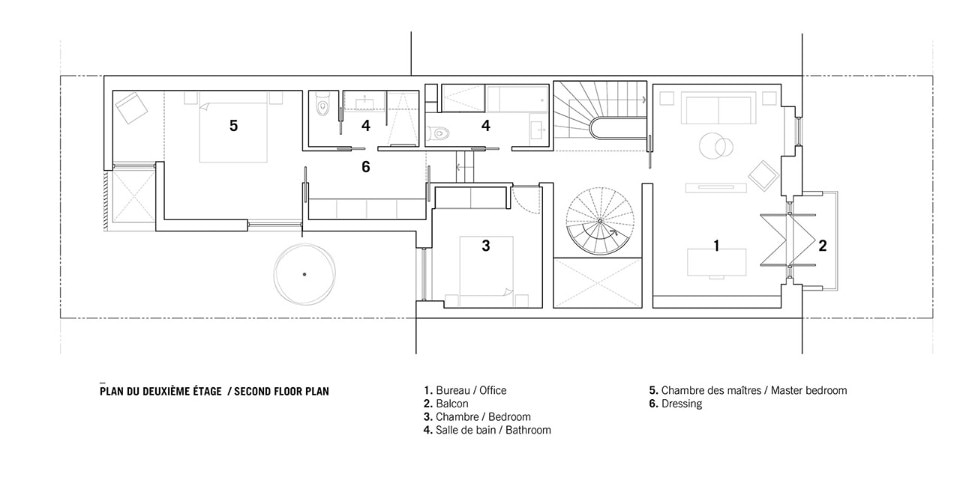
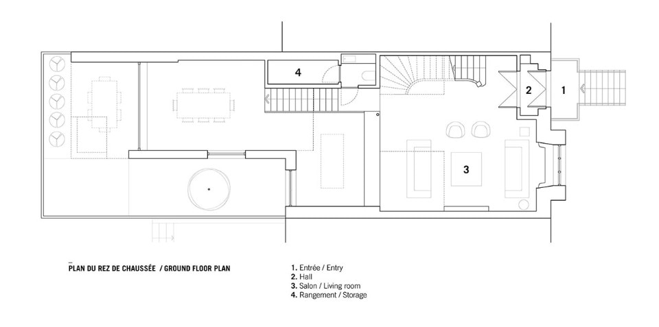
Nel quartiere di Plateau Mont Royal a Montréal, la ristrutturazione di una casa vittoriana di fine Ottocento si esprime all’insegna di un linguaggio asciutto e contemporaneo. Nella grande zona giorno, lo sfalsamento tra il piano rialzato dell’entrata e il pian terreno dell’accesso al giardino permette di ravvivare non solo la relazione tra i livelli, ma anche la verticalità del doppio volume di cucina e sala da pranzo. Lo slancio in altezza è inoltre sottolineato dall’inserimento di un’ulteriore scala elicoidale, che prolunga idealmente la preesistente scala vittoriana offrendo un collegamento con la terrazza ricavata sul tetto.
All’esterno, il nuovo volume è rivestito in lastre d’acciaio giustapposte che creano un piacevole contrasto con la trama dei mattoni rossi e permettono di coniugare il passaggio della luce con la riduzione delle viste laterali, proteggendo la privacy dei residenti. Lo stesso rapporto tra texture e materiali caldi e freddi viene giocato all’interno, dove i mattoni, il rovere dei pavimenti e la boiserie minimalista creano un dialogo rigoroso ma non spento con il cemento e l’inox di cucina e bagni.
- Location:
- Montréal
- Programma:
- Residenza unifamiliare
- Architetti:
- NatureHumaine
- Area:
- 290 mq
- Anno:
- 2020
