Oltre alle teorie di Robert Venturi e Denise Scott Brown – tra analisi di Las Vegas e edifici-manifesto – e quelle della Strada Novissima in Biennale a Venezia, col fluire degli anni ‘70 e l’arrivo degli ‘80 il postmoderno diventava regola di stile architettonico in tutto il mondo di influenza occidentale: anche quegli Stati Uniti che lo avevano cullato iniziano ad esprimersi con una certa voce indipendenza dentro questa tendenza, ridefinendo l’idea stessa di certe tipologie di edificio storicamente legate al moderno. È quel che succede quando un architetto e designer come Michael Graves vince nel 1983 il concorso per la sede di una società assicurativa a Louisville, Kentucky, con un grattacielo che non solo si trova ad essere vicino di casa di uno degli ultimi progetti di Mies van der Rohe, ma che ridiscute la sua stessa natura di grattacielo avvicinandola più a quella di un monumento, della stilizzazione di uno o meglio diversi palazzi, templi e piramidi di diverse epoche e provenienze, non necessariamente passate. Domus segue la storia di questa icona dell’architettura postmoderna dai primi disegni, pubblicati nel febbraio 1983 sul numero 636, fino alla presentazione dell’opera completata nel dicembre del 1985, sul numero 667, da cui proviene questo saggio firmato Sylvia Lavin.
Michael Graves: Humana Builidng
Credo che solo pochissime persone siano a suo tempo rimaste insensibili al fascino dei bellissimi disegni presentati da Michael Graves al concorso per il progetto della nuova sede della Humana Corporation: l’essersi aggiudicato l’incarico conferma, in un certo senso, la sua posizione come uno dei più importanti architetti americani di quella generazione. Ora che l’edificio è terminato, si può d’altra parte, tentare di esplorarne la realtà al di là della immaginazione poetica del suo mondo disegnato. Realtà che forse potrà anche contribuire a tranquillizzare quanti si sono criticamente espressi a proposito della sua recente proposta d’ampliamento dello storico edificio del Whitney Museum of American Art di New York.
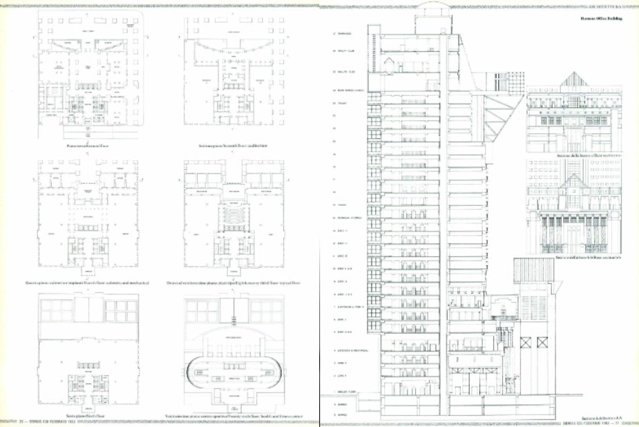
L’Humana Building è forse la più matura espressione delle idee di Graves a proposito del problema del “contesto”; tema, d’altra parte, che un critico non preconcetto non avrebbe difficoltà a riconoscere come determinante nell'impostazione progettuale dell’ampliamento dell’opera di Marcel Breuer. L’Humana si sviluppa su un lotto compreso tra una schiera di storici edifici in ghisa da un lato e la torre di vetro dell’American Life Building di Ludwig Mies van der Rohe dall’altro: lo sforzo di Graves sembra dunque essere stato quello di mediare tra la diversa scala di queste due costruzioni e tra le loro contrastanti espressioni formali. Ne è risultato un ingegnoso intreccio di due edifici diversi, risposta adeguata alla natura schizofrenica del contesto urbano.
Il corpo d'ingresso – uno spazio pubblico porticato – si protende in avanti per allinearsi sul filo stradale delle case adiacenti, da cui pure riprende il netto profilo del profondo cornicione. Osservando attentamente, però, non può sfuggire come questo profilo non giri attorno all’intero edificio, ma si arresti sui tre lati, quasi ad esplicitare la sua funzione simbolica di segno di differenziazione tra le varie parti del complesso. In posizione arretrata rispetto a questo blocco d’entrata, si sviluppa la vera e propria torre, la cui altezza sfiora quella del grattacielo adiacente, facendone quasi il perno di una composizione tripartita. L’intervento di Graves contribuisce, dunque, a trasformare in un unitario schema urbano la casualità storica di tutte queste presenze.
La conformazione dell’Humana e le sue proporzioni, inoltre, sono rivelatori di una completa mancanza di interesse dell’architetto per quello che può essere considerato il tradizionale problema del grattacielo: vale a dire, come dare espressione architettonica al concetto di “altezza”. La scultoreità dell’edificio ci pone infatti il problema della liceità di considerare questo di Graves come un vero e proprio grattacielo. Sebbene l’espressione della verticalità non sembra essere stata sottovalutata nello schema generale (come stanno a testimoniare le fasce vetrate che segnano il centro di ogni facciata), quello dell’ “altezza” non è il principale motivo compositivo dell’edificio. Così, ad esempio, la grande terrazza a sbalzo sul drammatico panorama del fiume Ohio, usata come ambiente pubblico all’aperto, dà un brusco alt a ogni visione verticalmente infinita dello spazio: il tetto giardino di lecorbusieriana memoria non si limita a sfruttare un’area residua sul tetto, ma diventa elemento protagonista e focale dell’intero progetto.
L’Humana Building fa sfoggio di un ben visibile tetto, facendo appello alle sue tradizionali caratteristiche denotative di elemento di chiusura, di protezione e di terminale. Molti grattacieli, com’è noto, sono sormontati da pinnacoli e guglie o, al contrario, terminano con un tetto piano: il che si equivale per chi li guardi dal basso, nel senso, appunto, che non offrono un vero e proprio elemento di chiusura. Il tetto dell’Humana invece descrive una doppia curva, costringendo lo sguardo a rimbalzare lungo la struttura dell’edificio, senza dunque sforzarsi di creare – come ad esempio accade nell’Empire State Building – una illusione di potenziale verticalità infinita. Rifiutando di accondiscendere alla natura tradizionalmente competitiva della tipologia del grattacielo (vale a dire: qual è l’edificio più alto del mondo?), Graves sembra essere stato condizionato dal desiderio di relativizzare l’enorme scala di questo genere di edificio.
Graves non ha esercitato un controllo sull’arredo interno dei vari uffici: nondimeno è possibile farsi un’idea delle sue intenzioni dai grandi spazi pubblici eseguiti su suo disegno. Una certa generosità finanziaria del programma gli ha consentito, infatti, di sviluppare alcune innovazioni rispetto ai tratti caratteristici dei suoi primi lavori. Nonostante Graves non abbia del tutto abbandonato l’uso intensivo di intonaci colorati come principale strumento espressivo, troviamo in questi interni un ricorso a pietre di varie tonalità e a dorature di taglio tradizionale. Gli interni dell’Humana Building, dunque, confermano l’interesse determinante di Graves per il colore in se stesso e per le rispondenze che riesce a creare in relazione alla specificità dei luoghi. Così, le tonalità del rivestimento esterno di granito sono graduate in relazione alla quantità di luce naturale che ciascuna facciata riceve: sperimentando le potenzialità tonali del colore, Graves ne fa un uso architettonico più che decorativo.
Il principale sforzo di Graves nel progettare l'Humana sembra essere stato quello di trasformare una tipologia essenzialmente commerciale in un monumento civico: la sua comprensione dei modi di percezione di un’architettura si accompagna alla preoccupazione di controllare gli effetti che una struttura può arrivare ad esercitare sul contesto urbano. La ricerca di un equilibrio tra espressione monumentale e rispetto delle preesistenze ambientali contraddice alla base l’immagine tradizionale del grattacielo moderno. Graves, infatti, vi appare impegnato a cambiare le nostre relazioni con l’ambiente non attraverso il ricorso all’utopia delle rivoluzioni, bensì mediante sottili innovazioni. Così, semplicemente sottolineando un “sopra” e un “sotto” dell’edificio, egli è riuscito in sostanza a reinserire l’Humana Building nel filone della migliore tradizione dell’architettura occidentale.
