Beyond the theories of Robert Venturi and Denise Scott Brown – between analyses of Las Vegas and manifesto buildings – and those of Strada Novissima at the Venice Biennale, as the 1970s flowed into the 1980s, postmodernism became the rule of architectural style throughout the Western-influenced world: even United States that had cradled it began to express itself with a certain independent voice within this trend, redefining the very idea of certain building types historically linked to modern. This is what happened when an architect and designer like Michael Graves won the competition for Humana insurance company headquarters in Louisville, Kentucky, in 1983, by designing a skyscraper that not only happened to be the neighbor to one of Mies van der Rohe's last projects, but that redefined its very nature as a skyscraper by bringing it closer to a monument, to the stylization of one or rather several palaces, temples and pyramids joined together from different eras and origins, not necessarily past. Domus followed the story of this icon of postmodern architecture from the earliest drawings, published in February 1983 on issue 636, to the presentation of the completed work in December 1985 on issue 667, from which we propose this essay by Sylvia Lavin.
Michael Graves: Humana Builidng
There were few people who were not amazed and seduced by the exquisite drawings Michael Graves produced for the winning entry of the Humana Building competition. The commission confirmed his position, even more than the Portland Building had, as one of the most important architects America has recently produced. Now that the Humana Building is complete one can begin to assess the reality of this accomplished building rather than just its poetic imagery. Perhaps it will even quiet those critics of the recently unveiled Whitney project whose vitriolic and acerbic comments are nothing more than an embarrassment to the profession.
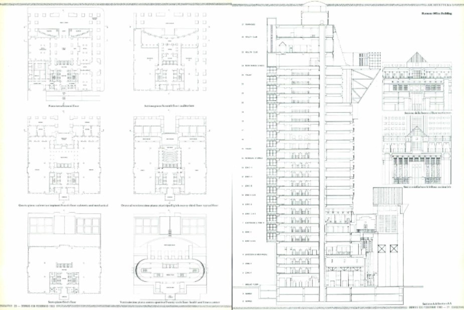
The problematic nature of that program, an addition to a noteworthy building by Marcel Breuer, ought not to be confused with the nature of Graves’s design, which seems to frighten people with its profound novelty. The Humana Building is Graves’s most mature expression of his ideas about contextuality, a theme that an open-minded viewer may even recognize as the basis of the Whitney project. Humana’s site in Louisville Kentucky is between a row of low scale, landmark cast-iron buildings and an International Style glass tower, and Graves has attempted to mediate between the vastly different sizes of these buildings as well as their contrasting formal expressions. In essence, Humana is an ingenious interweaving of two different buildings, a response to the split nature of its urban context.
The entrance block, a porticoed public space, steps forward to meet the street line established by the row-houses and carries a sharply defined cornice borrowed from the adjacent structures. An oblique view of Humana reveals the fact that this cornice does not continue around to join the tower itself, thus stressing the symbolic distinction between the two zones. The 417-foot elevation of the rear portion of the building rises to just below the height of the adjacent tower and thus becomes the pivotal feature of a tripartite and diagonally aligned composition consisting in the tower, the Humana Building and the row houses. By virtue of Graves’s contribution, this part of the city has been transformed into a coherent urban design.
The generous proportions and setting of the Humana Building reveal the architect’s lack of interest in the traditional problem of the skyscraper, how to give architectural expression to the concept of “tallness”. In fact, this sculptoral building leaves one wondering whether it would be appropriate to call it a skyscraper at all, as if Graves himself questioned the merits of this building type. Verticality is not omitted in the design, however, as can be seen by the bands of windows that run up the center of each facade and open into lounge areas for the office workers. However, height is most definitely not the main theme of the building. For example, the dramatically cantilevered terrace, commanding an expansive view of the Ohio River and used as an elevated outdoor public space, curtails any infinitely vertical vistas. Le Corbusier’s ideal roof terrace no longer simply takes advantage of left over space at the top of a building but becomes the design’s generating focal point.
Similarly, Humana has a visible roof, traditional symbol of enclosure, protection and termination. Most real skyscrapers are surmounted by some type of pinnacle or are flat-topped which from the ground is like having no recognizable roof at all. Moreover, Humana’s roof is curved, which sends the eye back down towards the building itself in contrast to classic monuments such as the Empire State Building, which attempts perspectivally to create an increased illusion of height. By refusing to participate in the traditionally competitive nature of skyscraper design (i.e. what is the tallest building in the world?), Graves has attempted to humanize the enormity of this building type.
Although Graves did not control the interior office planning, the major public spaces were executed according to his designs. The most significant departure from his earlier work lies in the opportunities created by a handsome budget. Colored stoned and gilded details are interwoven in the tradition of the High Renaissance. However, Graves has not abandoned the use of colorful paint as a major design tool. Although critics have suggested that this was only an inexpensive way to evoke architectonic materials, as was required by the relatively smaller budget at Portland, the Humana Building proves that Graves’s primary interest is in color itself and the way in which it molds responses to the environment. For example, the color of the exterior granite cladding is graduated according to the amount of natural light each facade receives, certainly a sensitive use of material but most exploitative of the effects of shifting tonalities and hues. To understand Graves one must learn to read color as an architectural rather than a decorative element.
Graves’s central ambition in designing the Humana Building seems to have been the transformation of a traditionally commercial and industrial building type into a monument of civic importance. In realizing this intention he certainly was assisted by enlightened clients, but one wonders whether they created his opportunity, or he theirs. His understanding of how one experiences architecture is accompanied by a concern for how a building effects and contributes to its urban context. Like Schinkel, he seeks a balance between monumental expression and a generosity towards the preexisting urban fabric. This intention undermines and contradicts the traditional image of the Modern skyscraper. Unlike the masters of the International Style, Graves attempts to change our relationship with the city not by utopian revolution but by subtle innovation. Simply by giving his building a top and a bottom and distinguishing the front from the sides, Graves has managed to reinsert the Humana Building into the larger tradition of Western architecture.
